ケントパレス宮崎 中古マンション 宮崎市大島町笹原の中古マンション
掲載情報更新日:2026年02月16日 次回更新予定日:2026年03月02日
- 990万円
-
- 借入ご希望金額
万円 - 借入期間
年 - 借入金利
% - 月々のお支払い金額
円
- 借入ご希望金額
※ 月々のお支払例は目安の試算となりますので、実際の金額とは異なる場合がございます。詳しくは店舗までお問合わせください。
- 宮崎市大島町笹原
-
JR日豊本線『宮崎神宮』 徒歩10分 (約730m)
JR日豊本線『蓮ケ池』 徒歩37分 (約2910m)
JR日豊本線『宮崎』 徒歩44分 (約3460m)
宮崎市大島町笹原マンション | 物件情報
外観がきれいなマンション。階下を気にせず暮らせる2階住戸で、子育て世帯にも使いやすい間取りです。
◆ 2024年大規模修繕工事完了
外観がきれいで、共用部の維持状況も良好です。
◆ 階下を気にせず過ごせる住戸位置
下階がエントランスのため、足音を気にしにくい点が魅力です。
◆ 一部リフォーム履歴あり
ガスコンロ・レンジフード、トイレ便座交換など、設備面に手入れがされています。
◆ 小学校まで徒歩6分の便利な立地
日々の通学も安心できる距離で、生活に便利な環境です。
◆ 使いやすい間取りでファミリーにも対応
住み心地や生活動線に配慮された造りです。
物件の設備
- 公営水道
- 下水道
- 給湯
- コンロ三口
- ガスコンロ付
- バス
- 追焚機能
- トイレ
- 室内洗濯機置場
- 洗面所独立
- オートロック
- モニタ付インターホン
- 防犯カメラ
- フローリング
- 全居室収納
- シューズボックス
- バルコニー
- 宅配BOX
- エレベーター2基
- 駐輪場
- バイク置場
物件の特徴
- 管理人日勤
- 小学校徒歩10分以内
- 外観タイル張
物件詳細情報
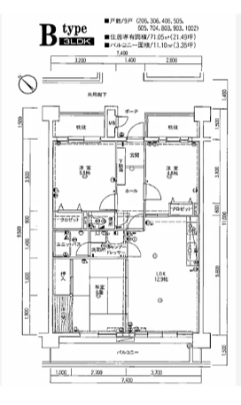
| 価格 | 990万円 | 間取り | 3LDK |
|---|---|---|---|
| 物件種別 | 中古マンション | ||
| 所在地 | 宮崎県宮崎市大島町笹原 | ||
| アクセス |
|
||
| 専有面積 | 71.05㎡ | 所在階 | 10階建/2階部分 |
| 主要採光 | 南西向 | バルコニー | |
| その他 | |||
| 権利 | 所有権 |
||
| 保証・評価 | |||
| リフォーム | |||
| 総戸数 | 95戸 | 面積 | 敷地:3937.00㎡ |
| 築年月 | 1991年(平成3年)09月築 | 建物構造 | SRC |
| 施工会社 | |||
| 管理会社 | 穴吹コミュニティ | 管理方式 | 全部委託 日勤管理 管理組合あり |
| 駐車場 | 【バイク置き場】あり 【駐輪場】あり |
||
| 都市計画 | 市街化区域 |
用途地域 | 2種住居 |
| 建ぺい/容積率 | 60% / 200% | 土地国土法 | |
| 法令制限 | |||
| 小学区 | 東大宮小学校 徒歩6分 (約410m) | 中学区 | 東大宮中学校 徒歩21分 (約1670m) |
| 現況 | 居住中 | 引渡 | 相談 |
| 管理費 | 7,390円/月 | 修繕積立金 | 21,300円/月 |
| その他費用 | |||
| 周辺環境 | 東大宮小学校 徒歩6分 (約410m) 宮崎太陽銀行 花ケ島支店 徒歩8分 (約580m) セブンイレブン 宮崎南花ヶ島町 徒歩12分 (約940m) 宮崎神宮駅 徒歩10分 (約730m) セブンイレブン 宮崎大島町 徒歩11分 (約810m) 宮崎銀行 神宮支店 徒歩11分 (約880m) 大宮小学校 徒歩12分 (約920m) セブンイレブン 宮崎神宮東3丁目 徒歩12分 (約960m) ローソン 宮崎下北方町店 徒歩15分 (約1160m) コスモス 大島店 徒歩14分 (約1070m) |
||
| 備考 | 修繕工事をしていますので、外観はキレイです☆ 階下がエントランスのため、足音を気にせずに生活できます。子育て世帯にオススメ! ☆一部リフォーム済み 4年前に、ガスコンロ・レンジフード交換、トイレ便座交換 10年前に、クロス交換 |
||
| 物件番号 | 4494547 | 取引態様 | 媒介 |
取扱店舗情報
| 電話番号 | 0985-86-7336 |
|---|---|
| 所在地 | 〒889-1607 宮崎県宮崎市清武町加納3丁目16 メモワールII101号室 |
| 営業時間 | 9:00~20:00 |
| 定休日 | 不定休 |
| 宅建免許番号 | 宮崎県知事(1)第4995号 |
| アクセス | 店舗への地図はこちら |

来店ご予約
宮崎県宮崎市で価格が似ている物件はこちら
- 宮崎県
マイページ物件数 - 1,584件
最近見た物件
宮崎県中古マンション新着物件
-
-

-
- 中古マンション
- 4,850万円
-
宮崎市高千穂通1丁目
-
JR日豊本線宮崎駅
-
-
-

-
- 中古マンション
- 4,550万円
-
宮崎市高千穂通1丁目
-
JR日豊本線宮崎駅
-
-
-

-
- 中古マンション
- 1,498万円
-
宮崎市鶴島1丁目
-
JR日豊本線宮崎駅
-
-
-

-
- 中古マンション
- 1,180万円
-
宮崎市中津瀬町
-
JR日豊本線宮崎駅
-
-
-

-
- 中古マンション
- 1,180万円
-
宮崎市中津瀬町
-
JR日豊本線宮崎駅
-
-
-

-
- 中古マンション
- 400万円
-
宮崎市吾妻町
-
JR日豊本線宮崎駅
-
-
-

-
- 中古マンション
- 2,980万円
-
宮崎市橘通東1丁目
-
JR日豊本線宮崎駅
-
- お近くの店舗を探す
-
おすすめ物件
-
-

-
- 中古マンション
- 1,580万円
-
宮崎市大字恒久
-
JR日豊本線南宮崎
-




























担当エージェント:小玉 賢太
2024年に大規模修繕工事が行われ、外観や共用部の状態が良好なマンションです。
下階がエントランスの住戸位置のため、音を気にせず過ごせるのも魅力です。
一部設備交換などのリフォーム履歴もあります。小学校が近く、子育て世帯にもおすすめです。