グランドパレス大淀河畔 中古マンション 宮崎市吾妻町の中古マンション
NEW 12.02掲載情報更新日:2025年12月02日 次回更新予定日:2025年12月16日
- 3,400万円
-
- 借入ご希望金額
万円 - 借入期間
年 - 借入金利
% - 月々のお支払い金額
円
- 借入ご希望金額
※ 月々のお支払例は目安の試算となりますので、実際の金額とは異なる場合がございます。詳しくは店舗までお問合わせください。
- 宮崎市吾妻町
-
JR日豊本線『宮崎』 徒歩18分 (約1400m)
JR日豊本線『南宮崎』 徒歩20分 (約1580m)
JR日豊本線『宮崎神宮』 徒歩53分 (約4190m)
宮崎交通『吾妻町入口』 徒歩1分 (約80m)
宮崎市吾妻町マンション | 物件情報
未入居で室内が綺麗な状態の高層階マンション。エコカラットを使った上質感のある空間が魅力です。
◆ 未入居で室内が綺麗な状態
使用感が少なく、すぐに生活を始めやすいお部屋です。
◆ 14階部分で眺望良好
大淀河畔の景色を楽しめる立地で、開放感のある暮らしができます。
◆ エコカラット採用の上質な空間
玄関とリビングの一部に施工され、湿気対策や消臭効果も期待できます。
◆ 宮崎駅まで徒歩18分の利便性
徒歩や自転車でアクセスしやすく、通勤・通学にも便利です。
◆ バス停まで徒歩1分のアクセス
吾妻町入口バス停が近く、移動手段の選択肢が広がります。
物件の設備
- 都市ガス
- 食器洗浄乾燥機
- IHクッキングヒータ
- コンロ三口
- カウンターキッチン
- バス
- 高温差湯式
- 浴室乾燥機
- 温水洗浄便座
- タンクレストイレ
- 室内洗濯機置場
- 洗髪洗面化粧台
- ディンプルキー
- モニタ付オートロック
- フローリング
- クローゼット
- 収納スペース
- 全居室収納
- バルコニー
- 南面バルコニー
- 宅配BOX
- エレベーター2基
- 駐輪場
- バイク置場
物件の特徴
- 管理人日勤
- 南向
- 陽当り良好
- 即入居可
物件詳細情報
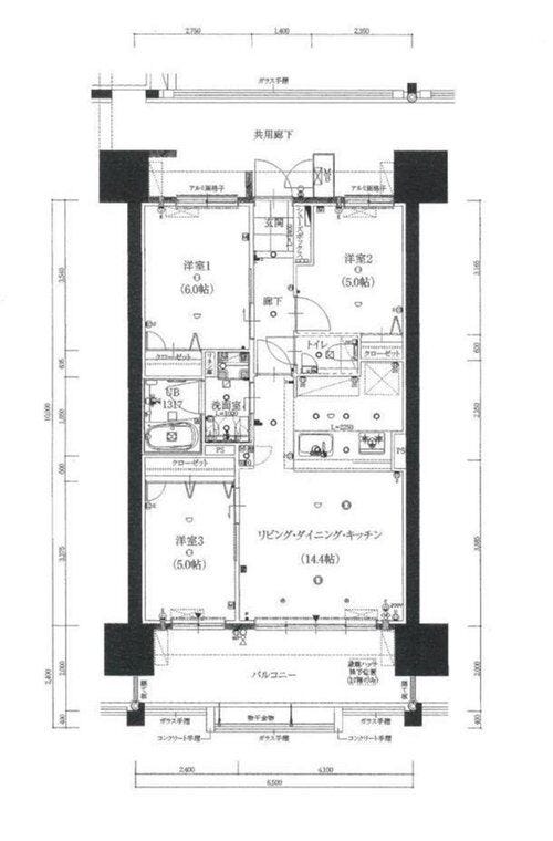
| 価格 | 3,400万円 | 間取り | 3LDK |
|---|---|---|---|
| 物件種別 | 中古マンション | ||
| 所在地 | 宮崎県宮崎市吾妻町 | ||
| アクセス |
|
||
| 専有面積 | 壁芯 65.00㎡ | 所在階 | 15階建/14階部分 |
| 主要採光 | 南向 | バルコニー | 南向14.20㎡ |
| その他 | |||
| 権利 | 所有権 |
||
| 保証・評価 | |||
| リフォーム | |||
| 総戸数 | 130戸 | 面積 | |
| 築年月 | 2023年(令和5年)07月築 | 建物構造 | RC |
| 施工会社 | |||
| 管理会社 | 株式会社ダイイチ合人社建物管理 | 管理方式 | 全部委託 日勤管理 管理組合あり |
| 駐車場 | 【駐車場】空有 料金:7,800円/月 【バイク置き場】あり 【駐輪場】あり |
||
| 都市計画 | 市街化区域 |
用途地域 | 商業 |
| 建ぺい/容積率 | 80% / 400% | 土地国土法 | |
| 法令制限 | |||
| 小学区 | 潮見小学校 徒歩14分 (約1120m) | 中学区 | 宮崎中学校 徒歩9分 (約690m) |
| 現況 | 空 | 引渡 | 即 |
| 管理費 | 7,800円/月 | 修繕積立金 | 6,500円/月 |
| その他費用 | |||
| 周辺環境 | セブンイレブン 宮崎吾妻町 徒歩2分 (約150m) ローソン 宮崎永楽町店 徒歩7分 (約550m) 宮崎中学校 徒歩9分 (約690m) 宮崎太陽銀行 堀川町支店 徒歩9分 (約710m) ながの屋 瀬頭店 徒歩9分 (約710m) WASHハウス 堀川店 徒歩12分 (約890m) セブンイレブン 宮崎堀川町 徒歩12分 (約890m) 宮崎小学校 徒歩11分 (約820m) セブンイレブン 宮崎旭1丁目店 徒歩12分 (約890m) ファミリーマート 橘通東一丁目店 徒歩12分 (約920m) |
||
| 備考 | 未入居物件で室内は綺麗な状態で即使用可能です。 玄関とリビングの一部にエコカラットが使用☆高級感があります♪ |
||
| 物件番号 | 4511232 | 取引態様 | 媒介 |
取扱店舗情報
| 電話番号 | 0985-86-7336 |
|---|---|
| 所在地 | 〒889-1607 宮崎県宮崎市清武町加納3丁目16 メモワールII101号室 |
| 営業時間 | 9:00~20:00 |
| 定休日 | 不定休 |
| 宅建免許番号 | 宮崎県知事(1)第4995号 |
| アクセス | 店舗への地図はこちら |

来店ご予約
宮崎県宮崎市で価格が似ている物件はこちら
- 宮崎県
マイページ物件数 - 1,677件
宮崎県中古マンション新着物件
- お近くの店舗を探す
-






























担当エージェント:小玉 賢太
未入居で綺麗な状態のお部屋です。
14階から大淀河畔を望む眺望が魅力で、エコカラットによる快適な空間づくりもポイントです。
駅やバス利用も便利な立地ですので、ぜひ一度現地でご確認ください。