ラビデンス荒子川公園 II番館 名古屋市港区品川町1丁目の中古マンション
掲載情報更新日:2026年05月19日 次回更新予定日:2026年06月02日
- 2,398万円
-
- 借入ご希望金額
万円 - 借入期間
年 - 借入金利
% - 月々のお支払い金額
円
- 借入ご希望金額
※ 月々のお支払例は目安の試算となりますので、実際の金額とは異なる場合がございます。詳しくは店舗までお問合わせください。
- 名古屋市港区品川町1丁目
-
名古屋臨海高速鉄道『荒子川公園』 徒歩7分 (約520m)
名古屋市港区品川町1丁目マンション | 物件情報
【角住戸×リフォーム済】2025年7月水回り一新!開放感あるL字バルコニーの3LDK
━━━━━━━━━━━━━━━━━━
◆ 住まい探しはお任せください ◆
━━━━━━━━━━━━━━━━━━
豊富な物件情報から、お客様のご希望に合った住まいをご提案します。
お客様目線を大切に、住宅ローンも含めて丁寧にサポートいたします。
ハウスドゥ荒子川公園
■2025年7月に室内リフォーム実施!
キッチン、浴室、洗面等の水回りを交換済み。給湯器や洗濯パンも新しく、毎日の家事が快適にスタートできます。
■内装リフレッシュ済みで清潔感あり
全室クロス張替えに加え、床材や畳も新調。手直し不要ですぐに新生活を始められる綺麗なコンディションです。
■5階・南西角住戸ならではの開放感
L字型バルコニーに加え、北側にも窓がある「3面開口」。お部屋全体に光と心地よい風が通り抜けます。
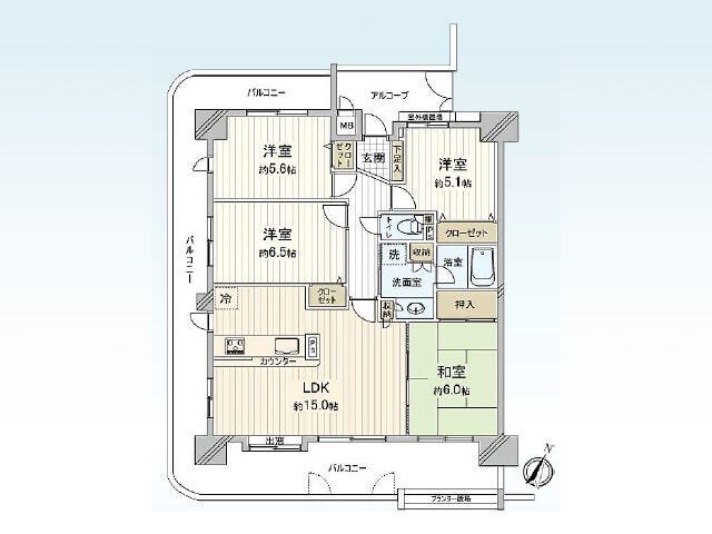
■ゆとりある15.0帖の対面式LDK
出窓のある明るいリビングは、キッチンから室内が見渡せる設計。ご家族との会話を楽しみながら家事がこなせます。
■緑豊かな公園が近い好立地
荒子川公園が近く、散策や子育てにも好適。5階部分につきプライバシーも保ちやすく、静かな住環境です。
物件の設備
- 都市ガス
- 給湯
- 食器洗浄乾燥機
- コンロ三口
- グリル
- カウンターキッチン
- システムキッチン
- バス
- 追焚機能
- 浴室乾燥機
- トイレ
- 温水洗浄便座
- 室内洗濯機置場
- 洗髪洗面化粧台
- オートロック
- モニタ付インターホン
- モニタ付オートロック
- LDK15畳以上
- 和室
- 3面採光
- 出窓
- フローリング張替
- クローゼット
- クローゼット3箇所
- 押入
- 全居室収納
- シューズボックス
- バルコニー
- 3面バルコニー
- エレベーター
- 駐輪場
- バイク置場
- アルコーブ
物件の特徴
- 管理人巡回
- 内装リフォーム済
物件詳細情報
| 価格 | 2,398万円 | 間取り | 4LDK |
|---|---|---|---|
| 物件種別 | 中古マンション | ||
| 所在地 | 愛知県名古屋市港区品川町1丁目 | ||
| アクセス |
|
||
| 専有面積 | 壁芯 81.09㎡ | 所在階 | 9階建/5階部分 |
| 主要採光 | 南向 | バルコニー | 南西向34.59㎡ |
| その他 | |||
| 権利 | 所有権 |
||
| 保証・評価 | |||
| リフォーム | 【水回り】2025年07月 キッチン・浴室・トイレ・洗面・給湯器 【内装】2025年07月 壁、天井 ・床 ・全室クロス |
||
| 総戸数 | 60戸 | 面積 | |
| 築年月 | 1997年(平成9年)11月築 | 建物構造 | RC |
| 施工会社 | |||
| 管理会社 | 管理方式 | 全部委託 巡回管理 | |
| 駐車場 | 【駐車場】空有 料金:6,000円/月 【バイク置き場】あり 【駐輪場】あり |
||
| 都市計画 | 用途地域 | 工業 | |
| 建ぺい/容積率 | 土地国土法 | ||
| 法令制限 | |||
| 小学区 | 大手小学校 徒歩15分 (約1160m) | 中学区 | 港南中学校 徒歩30分 (約2390m) |
| 現況 | 空 | 引渡 | 相談 |
| 管理費 | 6,500円/月 | 修繕積立金 | 14,600円/月 |
| その他費用 | |||
| 周辺環境 | 市バス 荒子川公園駅 徒歩6分 (約420m) あおなみ線 荒子川公園駅 徒歩7分 (約520m) 大手小学校 徒歩15分 (約1160m) 港南中学校 徒歩30分 (約2390m) カネスエ 砂美店 徒歩3分 (約220m) ベイシティ歯科・矯正歯科 徒歩7分 (約500m) 今井医院 徒歩8分 (約610m) 名古屋港北郵便局 徒歩8分 (約620m) ウェルシア 名古屋寛政町店 徒歩8分 (約580m) 名古屋みなとショッピングセンター 徒歩8分 (約640m) |
||
| 備考 | |||
| 物件番号 | 4515029 | 取引態様 | 媒介 |
取扱店舗情報
ハウスドゥ 荒子川公園 株式会社アーズコミュニケーションズ 店舗詳細ページへ
| 電話番号 | 052-655-6255 |
|---|---|
| 所在地 | 〒455-0815 愛知県名古屋市港区油屋町3丁目28番地3 エスポアクインズコート1階 |
| 営業時間 | 10:00~18:00 |
| 定休日 | 水曜日、年末年始 |
| 宅建免許番号 | 愛知県知事(1)第26233号 |
| アクセス | 店舗への地図はこちら |

来店ご予約
愛知県名古屋市港区で価格が似ている物件はこちら
- 愛知県
マイページ物件数 - 32,222件
最近見た物件
-
-

-
- 土地
- 2,490万円
-
宇都宮市下岡本町
-
金井台
-
-
-

-
- 新築一戸建て
- 3,504万円
-
名古屋市中川区大当郎1丁目
-
近鉄名古屋線伏屋
-
愛知県中古マンション新着物件
-
-

-
- 中古マンション
- 580万円
-
名古屋市西区名駅2丁目
-
名古屋市桜通線名古屋駅
-
-
-

-
- 中古マンション
- 1,380万円
-
名古屋市西区東岸町2丁目
-
名古屋市鶴舞線庄内通駅
-
-
-

-
- 中古マンション
- 1,190万円
-
海部郡大治町大字堀之内字北二反畑
-
名鉄津島線甚目寺駅
-
-
-

-
- 中古マンション
- 2,980万円
-
豊田市小坂本町1丁目
-
名鉄豊田線豊田市駅
-
-
-

-
- 中古マンション
- 2,980万円
-
豊田市小坂本町1丁目
-
愛知環状鉄道新豊田駅
-
-
-

-
- 中古マンション
- 3,290万円
-
名古屋市北区志賀本通1丁目
-
名古屋市名城線志賀本通駅
-
-
-

-
- 中古マンション
- 2,980万円
-
豊田市小坂本町1丁目
-
愛知環状鉄道新豊田駅
-
- お近くの店舗を探す
-
おすすめ物件
-
-

-
- 中古マンション
- 2,880万円
-
名古屋市熱田区伝馬3丁目
-
名古屋市名城線熱田神宮伝馬町
-
-
-

-
- 中古マンション
- 5,380万円
-
名古屋市東区泉3丁目
-
名古屋市桜通線高岳
-
-
-

-
- 中古マンション
- 2,150万円
-
東海市名和町緑陽台
-
名鉄常滑線名和
-
-
-

-
- 中古マンション
- 3,690万円
-
名古屋市瑞穂区彌富町字紅葉園
-
名古屋市名城線総合リハビリセンター
-
-
-

-
- 中古マンション
- 1,980万円
-
蒲郡市中央本町
-
JR東海道本線蒲郡
-
-
-

-
- 中古マンション
- 1,180万円
-
丹羽郡扶桑町大字高雄字中海道
-
名鉄犬山線扶桑
-
-
-

-
- 中古マンション
- 1,080万円
-
瀬戸市東安戸町
-
名鉄瀬戸線瀬戸市役所前
-
-
-

-
- 中古マンション
- 2,898万円
-
名古屋市昭和区広路通5丁目
-
名古屋市鶴舞線川名
-
-
-

-
- 中古マンション
- 1,999万円
-
名古屋市瑞穂区山下通5丁目
-
名古屋市名城線瑞穂運動場東
-
-
-

-
- 中古マンション
- 1,520万円
-
名古屋市緑区大高町字己新田
-
名鉄常滑線名和
-




名古屋市港区の「ラビデンス荒子川公園II番館」5階、開放感あふれる角住戸が登場しました。
2025年7月に室内リフォームを行っており、キッチン、浴室、洗面化粧台といった水回り設備を新調。給湯器や洗濯パンも交換済みで、気持ちよく新生活をスタートできます。室内は全室クロス張替え、フローリング等の床材や和室の畳も新しく整えられ、清潔感ある空間に仕上がりました。
間取りは15.0帖の広々としたLDKを中心とした3LDK。南側と西側に広がるL字型バルコニーは、リビングと隣接する洋室・和室から出入りが可能です。北側の洋室にも窓がある「3面開口」のため、住戸全体に心地よい風が通り抜けます。
周辺は荒子川公園が近く、四季の彩りを感じられる穏やかな住環境。お買い物施設や交通の利便性も備えた、バランスの良い立地です。
ぜひ一度、現地にて日当たりの良さとリフォームの仕上がりをお確かめください。