のむら姪浜ヒルズ 福岡市西区姪の浜2丁目の中古マンション
NEW 12.11掲載情報更新日:2025年12月11日 次回更新予定日:2025年12月25日
- 3,390万円
-
- 借入ご希望金額
万円 - 借入期間
年 - 借入金利
% - 月々のお支払い金額
円
- 借入ご希望金額
※ 月々のお支払例は目安の試算となりますので、実際の金額とは異なる場合がございます。詳しくは店舗までお問合わせください。
- 福岡市西区姪の浜2丁目
-
福岡市空港線『姪浜』 徒歩13分 (約1040m)
福岡市空港線『室見』 徒歩15分 (約1200m)
西鉄バス『姪浜小学校前バス停』 徒歩3分 (約240m)
福岡市西区姪の浜2丁目マンション | 物件情報
物件の設備
- 都市ガス
- 給湯
- コンロ三口
- カウンターキッチン
- システムキッチン
- 温水洗浄便座
- 室内洗濯機置場
- 洗面所独立
- 冷房
- 暖房
- エアコン
- BS
- モニタ付インターホン
- 火災警報器/報知機
- 和室
- フローリング張替
- ウォークインクローゼット
- 玄関収納
- 収納スペース
- シューズボックス
- バルコニー
- 2面バルコニー
- 来客用パーキング
- 駐輪場
- バイク置場
物件の特徴
- 管理人日勤
- 24時間有人管理
- 内装リフォーム済
- 南向
- 始発駅
- 小学校徒歩10分以内
- 閑静な住宅街
- 眺望良好
- 陽当り良好
物件詳細情報
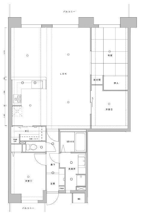
| 価格 | 3,390万円 | 間取り | 3LDK |
|---|---|---|---|
| 物件種別 | 中古マンション | ||
| 所在地 | 福岡県福岡市西区姪の浜2丁目 | ||
| アクセス |
|
||
| 専有面積 | 壁芯 89.20㎡ | 所在階 | 16階建/13階部分 |
| 主要採光 | バルコニー | 南東向17.82㎡ | |
| その他 | |||
| 権利 | 所有権 |
||
| 保証・評価 | |||
| リフォーム | 【水回り】2022年12月 キッチン・浴室・トイレ・洗面 【内装】2022年12月 全面 ・壁、天井 ・床 ・全室クロス ・建具 ・サッシ |
||
| 総戸数 | 213戸 | 面積 | |
| 築年月 | 1990年(平成2年)06月築 | 建物構造 | SRC |
| 施工会社 | |||
| 管理会社 | 管理方式 | 全部委託 日勤管理 | |
| 駐車場 | 【バイク置き場】あり 【駐輪場】あり |
||
| 都市計画 | 市街化区域 |
用途地域 | 1種住居 |
| 建ぺい/容積率 | 60% / 200% | 土地国土法 | |
| 法令制限 | |||
| 小学区 | 姪浜小学校 徒歩4分 (約260m) | 中学区 | 姪浜中学校 徒歩19分 (約1500m) |
| 現況 | 居住中 | 引渡 | 相談 |
| 管理費 | 10,800円/月 | 修繕積立金 | 18,400円/月 |
| その他費用 | |||
| 備考 | 【駐車場備考】 近隣に有り(260m) |
||
| 物件番号 | 4521594 | 取引態様 | 媒介 |
取扱店舗情報
ハウスドゥ 福岡伊都 株式会社ライフサポート 店舗詳細ページへ
| 電話番号 | 092-805-4035 |
|---|---|
| 所在地 | 〒819-0373 福岡県福岡市西区周船寺1-4-8 |
| 営業時間 | 9:00~18:00 |
| 定休日 | 水曜日、年末年始 |
| 宅建免許番号 | 福岡県知事(2)第18874号 |
| アクセス | 店舗への地図はこちら |

来店ご予約
福岡県福岡市西区で価格が似ている物件はこちら
- 福岡県
マイページ物件数 - 9,101件
最近見た物件
-
-

-
- 中古一戸建て
- 3,980万円
-
宇都宮市下平出町
-
『下平出』徒歩
-
-
-

-
- 中古一戸建て
- 2,499万円
-
豊田市松平志賀町マゴイチ
-
名鉄三河線豊田市
-
福岡県中古マンション新着物件
-
-

-
- 中古マンション
- 3,390万円
-
福岡市西区姪の浜2丁目
-
福岡市空港線姪浜駅
-
-
-

-
- 中古マンション
- 3,990万円
-
福岡市西区姪の浜5丁目
-
福岡市空港線姪浜駅
-
-
-

-
- 中古マンション
- 5,000万円
-
糟屋郡粕屋町大字仲原
-
JR篠栗線柚須駅
-
-
-

-
- 中古マンション
- 2,280万円
-
福岡市博多区吉塚5丁目
-
JR鹿児島本線吉塚駅
-
-
-

-
- 中古マンション
- 980万円
-
北九州市小倉北区東篠崎1丁目
-
北九州高速鉄道片野駅
-
-
-

-
- 中古マンション
- 2,590万円
-
春日市上白水7丁目
-
JR博多南線博多南駅
-
-
-

-
- 中古マンション
- 650万円
-
北九州市若松区西園町
-
JR筑豊本線若松駅
-
- お近くの店舗を探す
-
おすすめ物件
-
-

-
- 中古マンション
- 4,498万円
-
福岡市南区折立町
-
西鉄天神大牟田線井尻
-
-
-

-
- 中古マンション
- 4,480万円
-
福岡市早良区昭代3丁目
-
福岡市空港線藤崎
-
-
-

-
- 中古マンション
- 5,500万円
-
北九州市小倉南区田原新町2丁目
-
JR日豊本線下曽根
-
-
-

-
- 中古マンション
- 3,698万円
-
福岡市西区愛宕浜2丁目
-
福岡市空港線姪浜
-
-
-

-
- 中古マンション
- 1,398万円
-
久留米市本町
-
西鉄天神大牟田線花畑
-
-
-

-
- 中古マンション
- 3,280万円
-
福岡市早良区高取2丁目
-
福岡市空港線藤崎
-
-
-

-
- 中古マンション
- 2,000万円
-
福岡市早良区弥生2丁目
-
福岡市空港線藤崎
-
-
-

-
- 中古マンション
- 1,599万円
-
春日市一の谷2丁目
-
JR博多南線博多南
-
-
-

-
- 中古マンション
- 3,190万円
-
久留米市西町
-
西鉄天神大牟田線花畑
-
-
-

-
- 中古マンション
- 2,380万円
-
北九州市門司区東港町
-
門司港レトロ観光線出光美術館
-
















