コスモ川口グランステージ 川口市前上町の中古マンション
掲載情報更新日:2026年03月02日 次回更新予定日:2026年03月16日
- 2,790万円
-
- 借入ご希望金額
万円 - 借入期間
年 - 借入金利
% - 月々のお支払い金額
円
- 借入ご希望金額
※ 月々のお支払例は目安の試算となりますので、実際の金額とは異なる場合がございます。詳しくは店舗までお問合わせください。
- 川口市前上町
-
埼玉高速鉄道『鳩ヶ谷』 徒歩27分 (約2160m)
川口市前上町マンション | 物件情報
★令和7年10月リノベーション済みのマンションがとうじょうです★
☆☆☆本日、ご案内可能です☆☆☆
人気エリアのマンションが登場です!
◆令和7年10月リノベーション完成
◆3階南向き
◆オートロック・宅配ボックス・キッズスペースあり
物件の設備
- 公営水道
- 公共下水
- 都市ガス
- 給湯
- ユニットバス
- 浴室乾燥機
- 室内洗濯機置場
- 洗髪洗面化粧台
- 洗面所独立
- 人感照明センサー
- オートロック
- モニタ付インターホン
- 防犯カメラ
- バルコニー
- 南面バルコニー
- キッズルーム
- 宅配BOX
- エレベーター
- 駐輪場
- バイク置場
物件の特徴
- 管理人日勤
- リノベーション
物件詳細情報
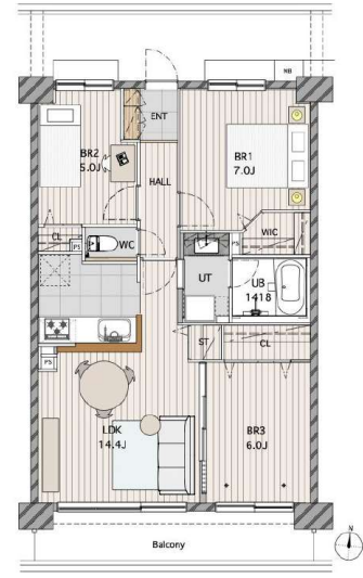
| 価格 | 2,790万円 | 間取り | 3LDK |
|---|---|---|---|
| 物件種別 | 中古マンション | ||
| 所在地 | 埼玉県川口市前上町 | ||
| アクセス |
|
||
| 専有面積 | 壁芯 70.72㎡ | 所在階 | 7階建/3階部分 |
| 主要採光 | 南向 | バルコニー | 南向10.20㎡ |
| その他 | |||
| 権利 | 所有権 |
||
| 保証・評価 | |||
| リフォーム | 【その他】2025年10月 キッチン交換(食洗機付)/浴室交換(浴室乾燥機付)/トイレ交換/洗面台交換/全室床材貼替/全室壁紙貼替/全室建具交換/照明・電気設備交換/給湯器交換/給水給湯管交換/水栓・防水パン交換等 |
||
| 総戸数 | 96戸 | 面積 | |
| 築年月 | 1998年(平成10年)02月築 | 建物構造 | RC |
| 施工会社 | |||
| 管理会社 | 大和ライフネクスト | 管理方式 | 全部委託 日勤管理 |
| 駐車場 | 【バイク置き場】あり 料金: 1000円/月 【駐輪場】あり 料金: 1000円/月 |
||
| 都市計画 | 市街化区域 |
用途地域 | 1種住居 |
| 建ぺい/容積率 | 60% / 200% | 土地国土法 | |
| 法令制限 | |||
| 小学区 | 前川東小学校 徒歩4分 (約270m) | 中学区 | 岸川中学校 徒歩21分 (約1610m) |
| 現況 | 空 | 引渡 | 相談 |
| 管理費 | 11,000円/月 | 修繕積立金 | 21,074円/月 |
| その他費用 | |||
| 周辺環境 | 前川第7公園 徒歩3分 (約180m) ドラッグセイムス前川2丁目店 徒歩3分 (約190m) 川口市立前川東小学校 徒歩4分 (約270m) しいのみ保育園 徒歩4分 (約260m) セブンイレブン川口前川2丁目店 徒歩4分 (約320m) 上青木公園 徒歩5分 (約340m) 上青木もりクリニック 徒歩5分 (約340m) 路川内科医院 徒歩5分 (約370m) 川口警察署 上青木交番 徒歩5分 (約330m) 青木信用金庫 北支店 徒歩5分 (約380m) |
||
| 備考 | リノベーション済み(アフターサービス保証付き)/3階南向き・陽当たり良好/食器洗乾燥機・浴室乾燥機/ウォークインクローゼット/閑静な住宅街/オートロック・宅配ボックス完備/キッズスペースあり | ||
| 物件番号 | 4525484 | 取引態様 | 媒介 |
取扱店舗情報
ハウスドゥ 鳩ヶ谷坂下町 株式会社ウェルカムホーム 店舗詳細ページへ
| 電話番号 | 048-242-5180 |
|---|---|
| 所在地 | 〒334-0003 埼玉県川口市坂下町3丁目32-21 |
| 営業時間 | 9:00~18:00 |
| 定休日 | 火曜日、水曜日、年末年始 |
| 宅建免許番号 | 埼玉県知事(1)第25389号 |
| アクセス | 店舗への地図はこちら |

来店ご予約
埼玉県川口市で価格が似ている物件はこちら
- 埼玉県
マイページ物件数 - 3,420件
最近見た物件
-
-

-
- 中古一戸建て
- 3,980万円
-
大野城市平野台1丁目
-
JR鹿児島本線水城
-
-
-

-
- 土地
- 475万円
-
富山市四方荒屋
-
四方口
-
-
-

-
- 新築一戸建て
- 2,690万円
-
津市半田
-
近鉄名古屋線津新町
-
埼玉県中古マンション新着物件
- お近くの店舗を探す
-
おすすめ物件
-
-

-
- 中古マンション
- 5,380万円
-
戸田市南町
-
JR埼京線戸田公園
-
-
-

-
- 中古マンション
- 2,890万円
-
さいたま市北区櫛引町2丁目
-
埼玉新都市交通鉄道博物館(大成)
-
-
-

-
- 中古マンション
- 1,990万円
-
越谷市千間台西1丁目
-
東武伊勢崎・大師線せんげん台
-
-
-

-
- 中古マンション
- 780万円
-
川口市末広3丁目
-
埼玉高速鉄道川口元郷
-
-
-

-
- 中古マンション
- 2,290万円
-
入間市扇町屋4丁目
-
西武池袋・豊島線仏子
-
-
-

-
- 中古マンション
- 4,899万円
-
戸田市本町5丁目
-
JR埼京線戸田公園
-
-
-

-
- 中古マンション
- 4,490万円
-
戸田市下前2丁目
-
JR埼京線戸田公園
-
-
-

-
- 中古マンション
- 2,190万円
-
さいたま市北区日進町1丁目
-
JR東北本線大宮
-
-
-

-
- 中古マンション
- 3,200万円
-
戸田市喜沢1丁目
-
JR京浜東北・根岸線西川口
-
-
-

-
- 中古マンション
- 3,380万円
-
川口市川口2丁目
-
JR京浜東北・根岸線川口
-











担当エージェント:富重 隆文
お客様に「寄り添う」会社です。不動産の購入は金額も大きく、不安なことがたくさんあると思います。ぜひ、一度ご連絡ください。不動産に関するプロとして、お客様の課題に一つ一つ向き合っていきます。