リバーサイドともぶち 27号棟 大阪市都島区友渕町1丁目の中古マンション
NEW 12.23掲載情報更新日:2025年12月23日 次回更新予定日:2026年01月06日
- 2,390万円
-
- 借入ご希望金額
万円 - 借入期間
年 - 借入金利
% - 月々のお支払い金額
円
- 借入ご希望金額
※ 月々のお支払例は目安の試算となりますので、実際の金額とは異なる場合がございます。詳しくは店舗までお問合わせください。
- 大阪市都島区友渕町1丁目
-
大阪市谷町線『都島』 徒歩16分 (約1280m)
JRおおさか東線『城北公園通』 徒歩18分 (約1400m)
大阪市堺筋線『天神橋筋六丁目』 徒歩23分 (約1800m)
大阪市都島区友渕町1丁目マンション | 物件情報
2025年4月フルリフォーム済 都島駅徒歩16分! 2沿線2駅利用! 即内見可!
☆月々6.5万円~
☆2025年4月フルリフォーム済
☆最寄駅から東梅田駅まで6分
☆2沿線2駅利用可
☆11帖LDK
☆近隣に学校、幼稚園、保育園、公園あり
☆複数スーパーあり
【内覧会開催中】
本日ご案内可能な場合もございます。
複数件併せてご内見も可能♪
他の掲載物件もまとめてご内見頂けます。気になる物件をお教え下さい。
☆0120ー684-571
お気軽にお電話ください♪
☆立地のポイント
【都島駅】徒歩約16分
【城北公園通駅】徒歩約18分
物件の設備
- 公営水道
- 公共下水
- 都市ガス
- システムキッチン
- 洗髪洗面化粧台
- 全室フローリング
- フローリング張替
- バルコニー
物件の特徴
- 管理人日勤
- 内装リフォーム済
- 即入居可
物件詳細情報
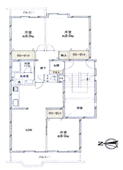
| 価格 | 2,390万円 | 間取り | 3LDK |
|---|---|---|---|
| 物件種別 | 中古マンション | ||
| 所在地 | 大阪府大阪市都島区友渕町1丁目 | ||
| アクセス |
|
||
| 専有面積 | 壁芯 85.54㎡ | 所在階 | 5階建/4階部分 |
| 主要採光 | 西向 | バルコニー | 西向11.39㎡ |
| その他 | |||
| 権利 | 所有権 |
||
| 保証・評価 | |||
| リフォーム | 【水回り】2025年04月 キッチン・浴室・トイレ・洗面・給湯器 システムキッチン、ユニットバス、洗面化粧台、給湯器、トイレ交換他 【内装】2025年04月 床 ・全室クロス ・建具 全室フローリング張替、全室クロス張替、建具入替他 |
||
| 総戸数 | 面積 | ||
| 築年月 | 1983年(昭和58年)07月築 | 建物構造 | RC |
| 施工会社 | 浅沼組 | ||
| 管理会社 | 日本ハウジング(株) | 管理方式 | 全部委託 日勤管理 管理組合あり |
| 駐車場 | |||
| 都市計画 | 用途地域 | 2種中高 | |
| 建ぺい/容積率 | 土地国土法 | ||
| 法令制限 | |||
| 小学区 | 友渕小学校 徒歩7分 (約500m) | 中学区 | 友渕中学校 徒歩6分 (約440m) |
| 現況 | 空 | 引渡 | 即 |
| 管理費 | 5,000円/月 | 修繕積立金 | 7,800円/月 |
| その他費用 | 組合費:200円/月 |
||
| 備考 | |||
| 物件番号 | 4537736 | 取引態様 | 媒介 |
取扱店舗情報
| 電話番号 | 050-5805-9447 |
|---|---|
| 所在地 | 〒536-0006 大阪府大阪市城東区野江4丁目10-13 クリエイト野江内代1F |
| 営業時間 | 10:00~19:00 |
| 定休日 | なし |
| 宅建免許番号 | 国土交通大臣(1)第10706号 |
| アクセス | 店舗への地図はこちら |

来店ご予約
大阪府大阪市都島区で価格が似ている物件はこちら
- 大阪府
マイページ物件数 - 16,153件
最近見た物件
-
-

-
- 中古マンション
- 8,480万円
-
広島市中区上八丁堀
-
JR山陽本線広島
-
-
-

-
- 中古マンション
- 2,690万円
-
大阪市北区豊崎4丁目
-
大阪市御堂筋線中津
-
-
-

-
- 新築一戸建て
- 3,190万円
-
春日井市藤山台5丁目
-
JR中央本線高蔵寺
-
大阪府中古マンション新着物件
-
-

-
- 中古マンション
- 1,280万円
-
吹田市藤白台1丁目
-
阪急電鉄千里線北千里駅
-
-
-

-
- 中古マンション
- 2,600万円
-
枚方市津田駅前2丁目
-
JR片町線津田駅
-
-
-

-
- 中古マンション
- 1,280万円
-
高槻市牧田町
-
阪急電鉄京都線総持寺駅
-
-
-

-
- 中古マンション
- 1億4,500万円
-
大阪市北区大淀南2丁目
-
JR大阪環状線福島駅
-
-
-

-
- 中古マンション
- 1,200万円
-
和泉市和気町2丁目
-
JR阪和線和泉府中駅
-
-
-

-
- 中古マンション
- 3,580万円
-
吹田市佐井寺南が丘
-
阪急電鉄千里線千里山駅
-
-
-

-
- 中古マンション
- 3,580万円
-
吹田市佐井寺南が丘
-
阪急電鉄千里線千里山駅
-
- お近くの店舗を探す
-
おすすめ物件
-
-

-
- 中古マンション
- 4,650万円
-
吹田市垂水町3丁目
-
大阪市御堂筋線江坂
-
-
-

-
- 中古マンション
- 2,290万円
-
茨木市豊原町
-
JR東海道線茨木
-
-
-

-
- 中古マンション
- 1,900万円
-
大阪市淀川区木川東4丁目
-
大阪市御堂筋線西中島南方
-
-
-

-
- 中古マンション
- 5,490万円
-
高槻市天神町1丁目
-
JR東海道線高槻
-
-
-

-
- 中古マンション
- 1,480万円
-
和泉市伏屋町5丁目
-
南海電鉄泉北線光明池
-
-
-

-
- 中古マンション
- 1,080万円
-
泉大津市東港町
-
南海電鉄本線泉大津
-
-
-

-
- 中古マンション
- 1,480万円
-
泉大津市助松町3丁目
-
南海電鉄本線松ノ浜
-
-
-

-
- 中古マンション
- 2,480万円
-
大阪市東淀川区西淡路4丁目
-
JR東海道線東淀川
-
-
-

-
- 中古マンション
- 2,790万円
-
茨木市天王2丁目
-
阪急電鉄京都線南茨木
-
-
-

-
- 中古マンション
- 3,280万円
-
西宮市小松東町3丁目
-
阪神電鉄本線武庫川
-






































担当エージェント:尾関 親代
東梅田まで6分の好立地!
通勤通学に便利な2沿線2駅利用可!
落ち着いた住環境でファミリー層にも単身者にも◎♪
住宅ローン相談会開催中です!
ぜひお気軽にお問い合わせください!