ヴェルディ西条駅前 東広島市西条本町の中古マンション
掲載情報更新日:2026年04月15日 次回更新予定日:2026年04月29日
- 3,280万円
-
- 借入ご希望金額
万円 - 借入期間
年 - 借入金利
% - 月々のお支払い金額
円
- 借入ご希望金額
※ 月々のお支払例は目安の試算となりますので、実際の金額とは異なる場合がございます。詳しくは店舗までお問合わせください。
- 東広島市西条本町
-
JR山陽本線『西条』 徒歩2分 (約160m)
東広島市西条本町マンション | 物件情報
西条駅徒歩2分♪高層階で展望◎ペット可♪ 延床74.56㎡の広~いお部屋です!
〇おすすめ〇
駅まで徒歩2分!!便利な立地に佇むマンション♪
高層階の為、展望も良好です♪西条の街並みを見渡すことができますよ!
延床面積は広~い74.56㎡!! リビングには床暖房付き♪
寒い冬も暖かく過ごすことができますね。
中部屋に珍しい全室に窓付きのマンション構造で、明るい室内!
家族それぞれのお部屋が持てるので、ゆったりとした生活を送れます。
近隣にはコンビニや飲食店なども多数あり!
終点である西条駅は遅くまで交通機関が充実しているので、通学や通勤にも
大変便利です!
※告知事項あり
物件の設備
- 給湯
- コンロ三口
- グリル
- カウンターキッチン
- システムキッチン
- バス
- ユニットバス
- オートバス
- 追焚機能
- 浴室暖房
- 浴室乾燥機
- トイレ
- 温水洗浄便座
- 室内洗濯機置場
- 洗髪洗面化粧台
- BS
- CS
- 光インターネット
- ダウンライト
- 省エネ給湯器
- オートロック
- モニタ付インターホン
- モニタ付オートロック
- LDK15畳以上
- 2面採光
- 出窓
- 複層ガラス
- 全居室複層ガラス
- フローリング
- 全室フローリング
- クローゼット
- クローゼット2箇所
- クローゼット3箇所
- ウォークインクローゼット
- 玄関収納
- 収納スペース
- 押入
- 全居室収納
- シューズボックス
- バルコニー
- ワイドバルコニー
- 宅配BOX
物件の特徴
- 管理人日勤
- 駅まで平坦
- 市街地が近い
- ペット相談
- ペット対応
物件詳細情報
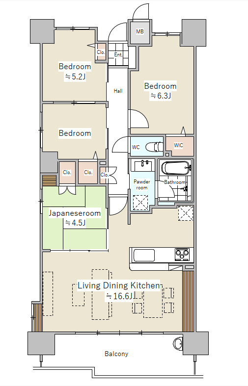
| 価格 | 3,280万円 | 間取り | 4LDK |
|---|---|---|---|
| 物件種別 | 中古マンション | ||
| 所在地 | 広島県東広島市西条本町 | ||
| アクセス |
|
||
| 専有面積 | 74.56㎡ | 所在階 | 15階建/12階部分 |
| 主要採光 | バルコニー | 南東向17.10㎡ | |
| その他 | |||
| 権利 | 所有権 |
||
| 保証・評価 | |||
| リフォーム | |||
| 総戸数 | 57戸 | 面積 | 敷地:1271.19㎡ |
| 築年月 | 2013年(平成25年)08月築 | 建物構造 | RC |
| 施工会社 | 東亜建設工業㈱ | ||
| 管理会社 | ㈱穴吹コミュニティ | 管理方式 | 全部委託 日勤管理 |
| 駐車場 | 【駐車場】空有 料金:2,500円/月 料金帯:2,500円/月~2,500円/月 |
||
| 都市計画 | 市街化区域 |
用途地域 | 商業 |
| 建ぺい/容積率 | 80% / 500% | 土地国土法 | |
| 法令制限 | |||
| 小学区 | 西条小学校 徒歩21分 (約1620m) | 中学区 | 西条中学校 徒歩17分 (約1320m) |
| 現況 | 空 | 引渡 | 相談 |
| 管理費 | 8,000円/月 | 修繕積立金 | 19,120円/月 |
| その他費用 | |||
| 周辺環境 | JR山陽本線 西条駅 徒歩2分 (約160m) 西条中央公園 徒歩7分 (約550m) 安芸西条郵便局 徒歩8分 (約610m) ハローズ東広島店 徒歩10分 (約760m) セブンイレブン東広島西条駅北店 徒歩10分 (約730m) ゆめタウン東広島 徒歩10分 (約800m) 西条中央病院 徒歩13分 (約970m) 東広島市立西条中学校 徒歩17分 (約1320m) 東広島立西条小学校 徒歩21分 (約1620m) |
||
| 備考 | ペット飼育可 | ||
| 物件番号 | 4539000 | 取引態様 | 専任媒介 |
取扱店舗情報
ハウスドゥ 八本松正力 株式会社ノア・コーポレーション 店舗詳細ページへ
| 電話番号 | 082-490-3341 |
|---|---|
| 所在地 | 〒739-0132 広島県東広島市八本松町正力1089-6 |
| 営業時間 | 9:00~18:00 |
| 定休日 | 水曜日、年末年始 |
| 宅建免許番号 | 広島県知事(1)第11474号 |
| アクセス | 店舗への地図はこちら |

来店ご予約
広島県東広島市で価格が似ている物件はこちら
- 広島県
マイページ物件数 - 4,685件
広島県中古マンション新着物件
-
-

-
- 中古マンション
- 2,680万円
-
広島市西区草津南4丁目
-
JR山陽本線新井口駅
-
-
-

-
- 中古マンション
- 1,930万円
-
広島市南区宇品西3丁目
-
広島電鉄宇品線宇品四丁目駅
-
-
-

-
- 中古マンション
- 2,290万円
-
福山市霞町3丁目
-
JR山陽本線福山駅
-
-
-

-
- 中古マンション
- 2,490万円
-
広島市中区舟入幸町
-
舟入幸町バス停
-
-
-

-
- 中古マンション
- 1,860万円
-
広島市安佐南区大塚西6丁目
-
アストラムライン大塚駅
-
-
-

-
- 中古マンション
- 2,480万円
-
広島市安佐南区大塚西6丁目
-
アストラムライン大塚駅
-
-
-

-
- 中古マンション
- 2,895万円
-
広島市安佐南区山本1丁目
-
JR可部線下祗園駅
-
- お近くの店舗を探す
-
おすすめ物件
-
-

-
- 中古マンション
- 2,690万円
-
福山市光南町3丁目
-
JR山陽本線福山
-
-
-

-
- 中古マンション
- 3,099万円
-
福山市三之丸町
-
JR山陽本線福山
-
-
-

-
- 中古マンション
- 2,000万円
-
三原市館町2丁目
-
JR山陽新幹線三原
-
-
-

-
- 中古マンション
- 2,200万円
-
福山市神辺町大字新道上
-
JR福塩線道上
-
-
-

-
- 中古マンション
- 2,400万円
-
福山市神辺町大字新道上
-
JR福塩線道上
-
-
-

-
- 中古マンション
- 2,980万円
-
尾道市新浜1丁目
-
JR山陽本線尾道
-
-
-

-
- 中古マンション
- 3,180万円
-
福山市松永町5丁目
-
JR山陽本線松永
-
-
-

-
- 中古マンション
- 3,150万円
-
尾道市高須町
-
JR山陽本線東尾道
-




















