ドルフィンズマンション須磨 神戸市須磨区大田町2丁目の中古マンション
掲載情報更新日:2026年03月23日 次回更新予定日:2026年04月06日
- 2,200万円
-
- 借入ご希望金額
万円 - 借入期間
年 - 借入金利
% - 月々のお支払い金額
円
- 借入ご希望金額
※ 月々のお支払例は目安の試算となりますので、実際の金額とは異なる場合がございます。詳しくは店舗までお問合わせください。
- 神戸市須磨区大田町2丁目
-
神戸市営地下鉄西神山手線『板宿』 徒歩4分 (約320m)
山陽電鉄本線『板宿』 徒歩7分 (約490m)
JR山陽本線『新長田』 徒歩13分 (約1030m)
神戸市須磨区大田町2丁目マンション | 物件情報
物件の設備
- 公営水道
- 下水道
- 都市ガス
- 給湯
- コンロ三口
- グリル
- カウンターキッチン
- システムキッチン
- オートバス
- 追焚機能
- 浴室暖房
- 浴室乾燥機
- トイレ
- 室内洗濯機置場
- 洗髪洗面化粧台
- 冷房
- 暖房
- エアコン
- エアコン3基
- オートロック
- モニタ付オートロック
- 和室
- フローリング
- クローゼット2箇所
- シューズボックス
- バルコニー
- 2面バルコニー
- 南面バルコニー
- ハイルーフ駐車可能
- 宅配BOX
- エレベーター
- 駐輪場
物件の特徴
- 管理人巡回
- 角部屋
- 南西角部屋
- 南向
- 3方角住戸
- 3沿線以上利用可
- 駅まで平坦
- 小学校徒歩10分以内
- 整備された歩道
- スーパーが近い
- 市街地が近い
- 都市近郊
- 海が見える
- 山が見える
- 眺望良好
- 通風良好
- 陽当り良好
- ペット対応
- 小型犬可
- 猫可
物件詳細情報
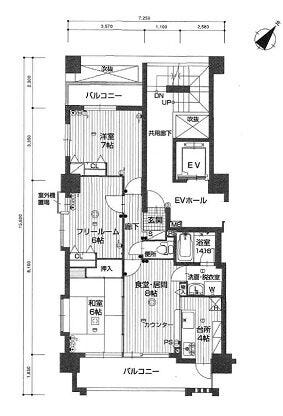
| 価格 | 2,200万円 | 間取り | 2LDK+S |
|---|---|---|---|
| 物件種別 | 中古マンション | ||
| 所在地 | 兵庫県神戸市須磨区大田町2丁目 | ||
| アクセス |
|
||
| 専有面積 | 壁芯 63.49㎡ | 所在階 | 9階建/7階部分 |
| 主要採光 | 南向 | バルコニー | 南向13.66㎡ |
| その他 | |||
| 権利 | 所有権 |
||
| 保証・評価 | |||
| リフォーム | |||
| 総戸数 | 15戸 | 面積 | 敷地:245.00㎡ |
| 築年月 | 2001年(平成13年)10月築 | 建物構造 | RC |
| 施工会社 | 松山工務店 | ||
| 管理会社 | 関西ブリッジサービス | 管理方式 | 全部委託 巡回管理 管理組合あり |
| 駐車場 | 【駐輪場】空無 |
||
| 都市計画 | 市街化区域 |
用途地域 | 近隣商業 |
| 建ぺい/容積率 | 80% / 400% | 土地国土法 | |
| 法令制限 | |||
| 小学区 | だいち小学校 徒歩9分 (約680m) | 中学区 | 太田中学校 徒歩8分 (約640m) |
| 現況 | 居住中 | 引渡 | 相談 |
| 管理費 | 14,700円/月 | 修繕積立金 | 8,280円/月 |
| その他費用 | 駐車場管理費:2170円/月・駐車場修繕積立金:1230円/月 自治会費:100円/月 |
||
| 周辺環境 | 神戸市立だいち小学校 徒歩9分 (約680m) 神戸市立太田中学校 徒歩8分 (約640m) ローソンゴダイ神戸大田二丁目店 徒歩2分 (約100m) ライフ須磨鷹取店 徒歩4分 (約280m) みなと銀行板宿支店 徒歩4分 (約270m) 三井住友銀行板宿支店 徒歩4分 (約290m) 神戸板宿郵便局 徒歩4分 (約320m) 須磨区役所 徒歩7分 (約550m) イオンフードスタイル板宿店 徒歩9分 (約710m) |
||
| 備考 | ・現在入居中 ・駐車場1階(36.33㎡)別途500万円(所有権)2台駐車可能 |
||
| 物件番号 | 4543909 | 取引態様 | 専任媒介 |
取扱店舗情報
ハウスドゥ 須磨警察前 株式会社アサヒコーポレーション 店舗詳細ページへ
| 電話番号 | 078-797-4451 |
|---|---|
| 所在地 | 〒654-0034 兵庫県神戸市須磨区戸政町1丁目1-2 |
| 営業時間 | 9:30~19:00 |
| 定休日 | 水曜日、夏季休暇、年末年始 |
| 宅建免許番号 | 兵庫県知事(1)第12698号 |
| アクセス | 店舗への地図はこちら |

来店ご予約
兵庫県神戸市須磨区で価格が似ている物件はこちら
- 兵庫県
マイページ物件数 - 3,221件
最近見た物件
兵庫県中古マンション新着物件
-
-

-
- 中古マンション
- 2,277万円
-
明石市中崎2丁目
-
JR山陽本線明石駅
-
-
-

-
- 中古マンション
- 4,090万円
-
神戸市兵庫区駅前通2丁目
-
JR山陽本線兵庫駅
-
-
-

-
- 収益
- 2,127万円
-
尼崎市武庫川町3丁目
-
阪急電鉄神戸線武庫之荘駅
-
-
-

-
- 収益
- 2,147万円
-
尼崎市武庫川町3丁目
-
阪急電鉄神戸線武庫之荘駅
-
-
-

-
- 中古マンション
- 790万円
-
明石市北朝霧丘1丁目
-
山陽電鉄本線大蔵谷駅
-
-
-

-
- 中古マンション
- 1,190万円
-
神戸市兵庫区兵庫町1丁目
-
神戸高速東西線新開地駅
-
-
-

-
- 中古マンション
- 1,380万円
-
神戸市須磨区横尾8丁目
-
神戸市営地下鉄西神山手線妙法寺駅
-
- お近くの店舗を探す
-
おすすめ物件
-
-

-
- 中古マンション
- 2,380万円
-
神戸市中央区港島中町3丁目
-
神戸新交通ポートアイランド線中公園
-
-
-

-
- 中古マンション
- 1,180万円
-
宝塚市小林4丁目
-
阪急電鉄今津線小林
-
-
-

-
- 中古マンション
- 1,850万円
-
加古川市加古川町美乃利
-
JR山陽本線加古川
-
-
-

-
- 中古マンション
- 1,300万円
-
伊丹市荒牧4丁目
-
JR福知山線中山寺
-
-
-

-
- 中古マンション
- 4,180万円
-
神戸市中央区雲井通2丁目
-
JR東海道線三ノ宮
-
-
-

-
- 中古マンション
- 949万円
-
姫路市飾磨区恵美酒
-
山陽電鉄本線亀山
-
-
-

-
- 中古マンション
- 2,990万円
-
神戸市中央区中山手通4丁目
-
神戸市営地下鉄西神山手線県庁前
-
-
-

-
- 中古マンション
- 2,180万円
-
大阪市西淀川区野里2丁目
-
阪神電鉄本線姫島
-
-
-

-
- 中古マンション
- 1,650万円
-
伊丹市大鹿4丁目
-
阪急電鉄伊丹線伊丹
-
-
-

-
- 中古マンション
- 2,399万円
-
神戸市中央区港島中町6丁目
-
神戸新交通ポートアイランド線みなとじま
-













