三田ガーデンヒルズノースヒル 港区三田1丁目の中古マンション
掲載情報更新日:2026年05月04日 次回更新予定日:2026年05月18日
- 1億6,000万円
-
- 借入ご希望金額
万円 - 借入期間
年 - 借入金利
% - 月々のお支払い金額
円
- 借入ご希望金額
※ 月々のお支払例は目安の試算となりますので、実際の金額とは異なる場合がございます。詳しくは店舗までお問合わせください。
- 港区三田1丁目
-
都営大江戸線『麻布十番』 徒歩8分 (約600m)
都営三田線『芝公園』 徒歩10分 (約800m)
港区三田1丁目マンション | 物件情報
三田エリアを代表する大規模レジデンス。 2025年築・13階部分の新築未入居住戸。
港区三田一丁目に誕生した、総戸数1002戸の大規模レジデンス「三田ガーデンヒルズ」。
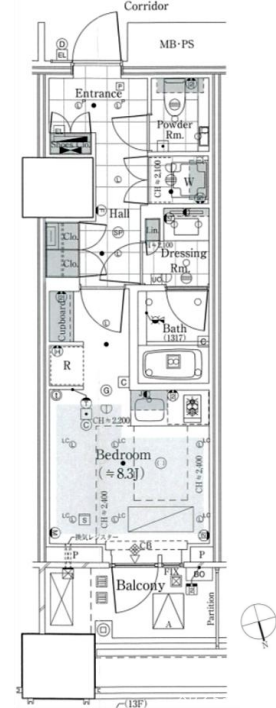
本物件はノースヒル13階部分に位置する、29.34㎡の1Rタイプです。2025年3月築の新築未入居住戸で、共用部・専有部ともに最新仕様となっております。
都心でありながら緑豊かな敷地計画がなされており、日常の中で落ち着きと上質さを感じられる住環境が魅力。
東京メトロ南北線・都営大江戸線「麻布十番」駅徒歩7分、都営三田線「芝公園」駅徒歩11分と、複数路線利用可能な立地も大きな強みです。
管理は三井不動産レジデンシャルサービス株式会社が担当しており、管理体制も良好。
都心立地・築浅・大規模レジデンスという希少性の高い条件が揃った、居住用・資産保有いずれにも適した一室です。
物件の設備
- 給湯
- コンロ二口
- バス
- トイレ
- B/T別室
- 室内洗濯機置場
- 洗髪洗面化粧台
- インターネット接続可
- オートロック
- モニタ付インターホン
- 防犯カメラ
- バルコニー
- エレベーター
物件の特徴
- 管理人常駐
物件詳細情報
| 価格 | 1億6,000万円 | 間取り | 1K |
|---|---|---|---|
| 物件種別 | 中古マンション | ||
| 所在地 | 東京都港区三田1丁目4-60 | ||
| アクセス |
|
||
| 専有面積 | 壁芯 29.34㎡ | 所在階 | 14階建/13階部分 |
| 主要採光 | 北向 | バルコニー | 北向5.09㎡ |
| その他 | |||
| 権利 | 所有権 |
||
| 保証・評価 | |||
| リフォーム | |||
| 総戸数 | 1002戸 | 面積 | |
| 築年月 | 2025年(令和7年)03月築 | 建物構造 | RC |
| 施工会社 | |||
| 管理会社 | 三井不動産レジデンシャルサービス株式会社 | 管理方式 | 全部委託 常駐管理 |
| 駐車場 | |||
| 都市計画 | 用途地域 | 2種住居 | |
| 建ぺい/容積率 | 土地国土法 | ||
| 法令制限 | |||
| 小学区 | 赤羽小学校 徒歩1分 (約77m) | 中学区 | 三田中学校 徒歩13分 (約1000m) |
| 現況 | 空 | 引渡 | 相談 |
| 管理費 | 27,080円/月 | 修繕積立金 | 7,310円/月 |
| その他費用 | インターネット:1430円/月 |
||
| 備考 | |||
| 物件番号 | 4546466 | 取引態様 | 媒介 |
取扱店舗情報
| 電話番号 | 03-5544-9070 |
|---|---|
| 所在地 | 〒106-0032 東京都港区六本木5丁目18番2号 大昌第2ビル6階 |
| 営業時間 | 10:00~18:00 |
| 定休日 | 水曜日、日曜日、年末年始 |
| 宅建免許番号 | 東京都知事(1)第111695号 |
| アクセス | 店舗への地図はこちら |

来店ご予約
東京都港区で価格が似ている物件はこちら
- 東京都
マイページ物件数 - 5,904件
最近見た物件
-
-

-
- 中古マンション
- 850万円
-
上尾市上町1丁目
-
JR高崎線上尾
-
-
-

-
- 新築一戸建て
- 3,298万円
-
糟屋郡宇美町宇美中央1丁目
-
JR香椎線宇美
-
-
-

-
- 中古マンション
- 2,180万円
-
大阪市淀川区新北野1丁目
-
阪急電鉄神戸線十三
-
東京都中古マンション新着物件
-
-

-
- 中古マンション
- 9,980万円
-
練馬区石神井町3丁目
-
西武池袋・豊島線石神井公園駅
-
-
-

-
- 中古マンション
- 4,980万円
-
江東区亀戸3丁目
-
JR総武・中央緩行線亀戸駅
-
-
-

-
- 中古マンション
- 1億5,500万円
-
目黒区下目黒2丁目
-
JR山手線目黒駅
-
-
-

-
- 収益
- 880万円
-
練馬区石神井町7丁目
-
西武池袋・豊島線石神井公園駅
-
-
-

-
- 中古マンション
- 4,980万円
-
大田区東糀谷2丁目
-
京急空港線大鳥居駅
-
-
-

-
- 中古マンション
- 8,680万円
-
江東区枝川1丁目
-
東京メトロ有楽町線豊洲駅
-
-
-

-
- 中古マンション
- 1億9,800万円
-
品川区大崎2丁目
-
JR山手線大崎駅
-
- お近くの店舗を探す
-
おすすめ物件
-
-

-
- 中古マンション
- 3,090万円
-
日野市旭が丘3丁目
-
JR中央本線豊田
-
-
-

-
- 中古マンション
- 6,798万円
-
西東京市谷戸町2丁目
-
西武池袋・豊島線ひばりケ丘
-
-
-

-
- 中古マンション
- 2,190万円
-
葛飾区青戸8丁目
-
JR千代田・常磐緩行線亀有
-
-
-

-
- 中古マンション
- 1,870万円
-
練馬区関町北2丁目
-
西武新宿線武蔵関
-
-
-

-
- 中古マンション
- 3,999万円
-
練馬区上石神井3丁目
-
西武新宿線上石神井
-
-
-

-
- 中古マンション
- 4,190万円
-
八王子市子安町1丁目
-
JR中央本線八王子
-
-
-

-
- 中古マンション
- 1,950万円
-
八王子市高倉町
-
JR八高線北八王子
-
-
-

-
- 中古マンション
- 2,680万円
-
葛飾区金町2丁目
-
JR千代田・常磐緩行線金町
-
-
-

-
- 中古マンション
- 4,498万円
-
葛飾区金町1丁目
-
京成金町線京成金町
-
-
-

-
- 中古マンション
- 1億3,450万円
-
世田谷区松原3丁目
-
京王線下高井戸
-









担当エージェント:谷 綾香
三田・麻布十番エリアの中でも、街並み・ブランド力ともに一線を画す「三田ガーデンヒルズ」。
本物件は13階部分のため、採光や眺望にも恵まれ、都心でのプライベート性を重視される方に特におすすめです。
新築未入居のため、室内コンディションを気にせずご検討いただける点も大きなポイント。
将来的な資産価値という観点からも、大規模レジデンス×港区アドレスは安定感があり、長期保有をご検討の方にも安心してご紹介できる物件です。
実際に現地をご覧いただくことで、立地の良さや建物全体の完成度をより実感していただけます。
ぜひ一度、ご内覧ください。