クレコマンション 宮崎市淀川1丁目の中古マンション
掲載情報更新日:2026年04月10日 次回更新予定日:2026年04月24日
- 2,390万円
-
- 借入ご希望金額
万円 - 借入期間
年 - 借入金利
% - 月々のお支払い金額
円
- 借入ご希望金額
※ 月々のお支払例は目安の試算となりますので、実際の金額とは異なる場合がございます。詳しくは店舗までお問合わせください。
- 宮崎市淀川1丁目
-
JR日豊本線『南宮崎』 徒歩15分 (約1190m)
JR日豊本線『宮崎』 徒歩27分 (約2140m)
JR日南線『田吉』 徒歩42分 (約3310m)
『淀川1丁目』 徒歩1分 (約80m)
宮崎市淀川1丁目マンション | 物件情報
\リバーサイド・新規リノベーション・78.98㎡の広々テラス付き!東側角部屋/《大淀小徒歩4分♪》
▼オススメポイント
◎水回り・内装リフォーム済み
◎78.98㎡の広々テラス付き
◎東側角部屋
◎大淀小・中徒歩10分圏内
▼立地
大淀小学校 約 250m / 徒歩4分
大淀中学校 約 580m / 徒歩8分
◆◇当店について◇◆
〇不動産売買仲介専門FCで
店舗数第1位のハウスドゥ加盟店です
安心してご相談ください
■弊社サービスご案内
〇資金計画の無料相談
〇ハウスメーカー・工務店のご紹介
〇オプション、リフォーム、太陽光発電
のお見積もりから施工まで
〇保険の加入や引越しの段取り
物件の設備
- オール電化
- 公営水道
- 下水道
- 給湯
- 浄水器
- カウンターキッチン
- システムキッチン
- バス
- トイレ
- 温水洗浄便座
- 室内洗濯機置場
- 洗面所独立
- オートロック
- 全室フローリング
- フローリング張替
- シューズインクローク
- バルコニー
- 2面バルコニー
- テラス
- エレベーター
物件の特徴
- 管理人日勤
- 内装リフォーム済
- 小学校徒歩10分以内
- 眺望良好
- 即入居可
物件詳細情報
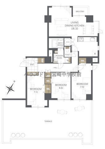
| 価格 | 2,390万円 | 間取り | 3LDK |
|---|---|---|---|
| 物件種別 | 中古マンション | ||
| 所在地 | 宮崎県宮崎市淀川1丁目 | ||
| アクセス |
|
||
| 専有面積 | 壁芯 98.92㎡ | 所在階 | 11階建/3階部分 |
| 主要採光 | 北向 | バルコニー | 北向2.59㎡ |
| その他 | 78.98㎡ | ||
| 権利 | 所有権 |
||
| 保証・評価 | |||
| リフォーム | 【水回り】2025年12月 キッチン・浴室・トイレ・洗面・給湯器・給排水管 【内装】2025年12月 壁、天井 ・床 ・全室クロス ・建具 |
||
| 総戸数 | 31戸 | 面積 | |
| 築年月 | 1982年(昭和57年)03月築 | 建物構造 | SRC |
| 施工会社 | |||
| 管理会社 | 管理方式 | 全部委託 日勤管理 | |
| 駐車場 | |||
| 都市計画 | 用途地域 | ||
| 建ぺい/容積率 | 土地国土法 | ||
| 法令制限 | |||
| 小学区 | 大淀小学校 徒歩4分 (約250m) | 中学区 | 大淀中学校 徒歩8分 (約580m) |
| 現況 | 空 | 引渡 | 即 |
| 管理費 | 15,500円/月 | 修繕積立金 | 9,000円/月 |
| その他費用 | |||
| 周辺環境 | 大淀小学校 徒歩4分 (約250m) 大淀中学校 徒歩8分 (約580m) シャトレーゼ 南宮崎駅店 徒歩13分 (約1000m) 宮崎小学校 徒歩16分 (約1220m) |
||
| 備考 | ◎テラス面積78.98㎡ | ||
| 物件番号 | 4558140 | 取引態様 | 媒介 |
取扱店舗情報
| 電話番号 | 0985-66-0753 |
|---|---|
| 所在地 | 〒880-0872 宮崎県宮崎市永楽町17 |
| 営業時間 | 9:00~18:00 |
| 定休日 | 水曜日、年末年始 |
| 宅建免許番号 | 宮崎県知事(1)第5078号 |
| アクセス | 店舗への地図はこちら |































担当エージェント:ハウスドゥ宮崎中学校前ピア7
◎弊社は不動産売買仲介専門No.1FCブランドHOUSEDOの加盟店です。無理のない返済計画、低金利ネット銀行も含めお客様の状況に合わせた住宅ローンをご提案し安心安全なお取引をサポートいたします。