グランドパレス大淀II 中古マンション 宮崎市太田1丁目の中古マンション
NEW 01.19掲載情報更新日:2026年01月19日 次回更新予定日:2026年02月02日
- 2,450万円
-
- 借入ご希望金額
万円 - 借入期間
年 - 借入金利
% - 月々のお支払い金額
円
- 借入ご希望金額
※ 月々のお支払例は目安の試算となりますので、実際の金額とは異なる場合がございます。詳しくは店舗までお問合わせください。
- 宮崎市太田1丁目
-
JR日豊本線『南宮崎』 徒歩12分 (約910m)
JR日豊本線『宮崎』 徒歩28分 (約2170m)
JR日豊本線『加納』 徒歩48分 (約3790m)
宮崎交通『大田2丁目』 徒歩3分 (約240m)
宮崎市太田1丁目マンション | 物件情報
12階高層階の東南角部屋。日当たりと眺望を確保した大淀エリアの中古マンション
◆ 高層階12階のお部屋
上階ならではの開放的な眺望が楽しめ、周囲の視線も気になりにくい住環境です。
◆ 東南角部屋の明るい住空間
東と南に開口部があり、日中は自然光が入りやすく、風通しにも配慮された配置です。
◆ 空室につき内覧対応可能
現在空室のため、実際の室内状況を落ち着いてご確認いただけます。
◆ 生活利便施設が身近な立地
スーパーや飲食店、医療機関などが揃う大淀エリアで、日常生活に便利です。
◆ 通学しやすい学区環境
大淀小学校・大淀中学校ともに徒歩圏内で、通学の負担が少ない立地です。
物件の設備
- 公営水道
- 下水道
- 都市ガス
- 給湯
- コンロ三口
- ガスコンロ付
- システムキッチン
- バス
- バス1坪以上
- 追焚機能
- 浴室乾燥機
- 浴室に窓
- トイレ
- 温水洗浄便座
- 室内洗濯機置場
- 洗髪洗面化粧台
- 洗面所独立
- オートロック
- モニタ付インターホン
- 火災警報器/報知機
- 和室
- 2面採光
- 複層ガラス
- フローリング
- 24時間換気システム
- クローゼット
- 全居室収納
- シューズボックス
- バルコニー
- 宅配BOX
- エレベーター
- 駐輪場
- バイク置場
物件の特徴
- 管理人日勤
- 角部屋
- 閑静な住宅街
- 眺望良好
- 陽当り良好
- 高層階
- 前面棟無
- 外観タイル張
- 24時間ゴミ出可
- 隣接建物距離2m以上
- ペット相談
物件詳細情報
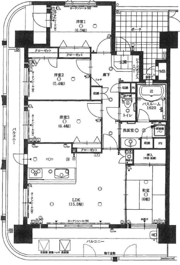
| 価格 | 2,450万円 | 間取り | 4LDK |
|---|---|---|---|
| 物件種別 | 中古マンション | ||
| 所在地 | 宮崎県宮崎市太田1丁目 | ||
| アクセス |
|
||
| 専有面積 | 壁芯 88.55㎡ | 所在階 | 14階建/12階部分 |
| 主要採光 | 南東向 | バルコニー | 南東向34.01㎡ |
| その他 | |||
| 権利 | 所有権 |
||
| 保証・評価 | |||
| リフォーム | |||
| 総戸数 | 83戸 | 面積 | |
| 築年月 | 2008年(平成20年)10月築 | 建物構造 | RC |
| 施工会社 | |||
| 管理会社 | 合人社計画研究所 | 管理方式 | 全部委託 日勤管理 管理組合あり |
| 駐車場 | 【駐車場】空有 料金:11,000円/月 【バイク置き場】あり 【駐輪場】あり |
||
| 都市計画 | 市街化区域 |
用途地域 | 商業 |
| 建ぺい/容積率 | 80% / 400% | 土地国土法 | |
| 法令制限 | |||
| 小学区 | 大淀小学校 徒歩9分 (約650m) | 中学区 | 大淀中学校 徒歩11分 (約880m) |
| 現況 | 空 | 引渡 | 相談 |
| 管理費 | 6,000円/月 | 修繕積立金 | 4,700円/月 |
| その他費用 | |||
| 周辺環境 | コスモス 大淀店 徒歩5分 (約360m) セブンイレブン 宮崎中村東2丁目 徒歩8分 (約610m) 大淀小学校 徒歩9分 (約650m) 宮崎銀行 大淀支店 徒歩9分 (約670m) 宮崎太陽銀行 南支店 徒歩10分 (約730m) 宮崎市役所 徒歩15分 (約1180m) 宮崎銀行 宮崎市役所出張所 徒歩15分 (約1180m) セブンイレブン 宮崎淀川3丁目 徒歩11分 (約820m) ファミリーマート 橘通東一丁目店 徒歩14分 (約1100m) 鮮ど市場 南宮崎店 徒歩9分 (約710m) |
||
| 備考 | 高層階東南角部屋の日当たり・眺望良好の中古マンション☆ | ||
| 物件番号 | 4559890 | 取引態様 | 媒介 |
取扱店舗情報
| 電話番号 | 0985-86-7336 |
|---|---|
| 所在地 | 〒889-1607 宮崎県宮崎市清武町加納3丁目16 メモワールII101号室 |
| 営業時間 | 9:00~20:00 |
| 定休日 | 不定休 |
| 宅建免許番号 | 宮崎県知事(1)第4995号 |
| アクセス | 店舗への地図はこちら |

来店ご予約
宮崎県宮崎市で価格が似ている物件はこちら
- 宮崎県
マイページ物件数 - 1,561件
最近見た物件
宮崎県中古マンション新着物件
- お近くの店舗を探す
-

























担当エージェント:小玉 賢太
高層階12階の東南角部屋に位置する中古マンションです。
日当たりと眺望に配慮された住戸で、開放感のある室内が特徴です。
空室のため、ご都合に合わせて内覧が可能です。
居住用・収益用のどちらとしてもご検討いただけます。