ロワール春日原駅前弐番館 春日市春日原北町2丁目の中古マンション
NEW 01.20掲載情報更新日:2026年01月20日 次回更新予定日:2026年02月03日
- 4,480万円
-
- 借入ご希望金額
万円 - 借入期間
年 - 借入金利
% - 月々のお支払い金額
円
- 借入ご希望金額
※ 月々のお支払例は目安の試算となりますので、実際の金額とは異なる場合がございます。詳しくは店舗までお問合わせください。
- 春日市春日原北町2丁目
-
西鉄天神大牟田線『春日原』 徒歩3分 (約170m)
JR鹿児島本線『春日』 徒歩5分 (約400m)
西鉄天神大牟田線『白木原』 徒歩19分 (約1500m)
春日市春日原北町2丁目マンション | 物件情報
2025年12月リフォーム◆西鉄春日原駅まで徒歩3分、JR春日駅まで徒歩5分◆ペット相談可◆角部屋
◆2025年12月フルリフォーム
・食洗器付きキッチン、浴室、洗面、といれ、給湯器、建具交換
・遮音等級LL45フローリング、クロス貼替
◆西鉄春日原、JR春日まで徒歩5分以内のWアクセス!
西鉄春日原駅建て替えにより駅ビルにスーパーや飲食店が2026年4月にグランドルオープン!
◆イオン大野城まで徒歩9分!スーパーやドラッグストアが徒歩圏内に充実
◆市役所や図書コーナーやスポーツ施設が揃う県立施設クローバープラザが徒歩10分以内。
◆安心のオートロック
◆ペットと暮らせるマンション
◆南東向きの角部屋で日当たり風通し良好
◆全居室に窓と収納。明るくゆとりある空間
物件の設備
- 公営水道
- 下水道
- 公共下水
- 給湯
- 浄水器
- 食器洗浄乾燥機
- コンロ三口
- グリル
- カウンターキッチン
- システムキッチン
- バス
- 追焚機能
- 浴室暖房
- 浴室乾燥機
- トイレ
- 温水洗浄便座
- 室内洗濯機置場
- 洗髪洗面化粧台
- 洗面所独立
- エアコン
- オートロック
- モニタ付インターホン
- 2面採光
- 全室フローリング
- フローリング張替
- クローゼット3箇所
- シューズボックス
- バルコニー
- 2面バルコニー
- 宅配BOX
- エレベーター
物件の特徴
- 管理人巡回
- 内装リフォーム済
- 内装リフォーム後渡
- 角部屋
- 2沿線利用可
- 駅まで平坦
- 総合病院徒歩10分以内
- 小学校徒歩10分以内
- スーパーが近い
- 市街地が近い
- 通風良好
- 陽当り良好
- 外観タイル張
- 即入居可
- ペット相談
- 事務所不可
物件詳細情報
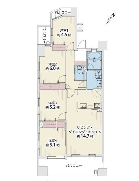
| 価格 | 4,480万円 | 間取り | 4LDK |
|---|---|---|---|
| 物件種別 | 中古マンション | ||
| 所在地 | 福岡県春日市春日原北町2丁目 | ||
| アクセス |
|
||
| 専有面積 | 壁芯 78.31㎡ | 所在階 | 11階建/4階部分 |
| 主要採光 | バルコニー | 北東向16.47㎡ | |
| その他 | |||
| 権利 | 所有権 |
||
| 保証・評価 | |||
| リフォーム | 【水回り】2025年12月 キッチン・浴室・トイレ・洗面・給湯器 【内装】2025年12月 全面 ・壁、天井 ・床 ・全室クロス ・建具 ・サッシ フローリング遮音等級LL45 |
||
| 総戸数 | 24戸 | 面積 | |
| 築年月 | 2004年(平成16年)07月築 | 建物構造 | RC |
| 施工会社 | ㈱吉川工務店 | ||
| 管理会社 | ㈱コミュニティサービス | 管理方式 | 全部委託 巡回管理 |
| 駐車場 | 【駐車場】空有 料金:7,000円/月 料金帯:7,000円/月~12,000円/月 カースペース |
||
| 都市計画 | 用途地域 | 1種住居 | |
| 建ぺい/容積率 | 土地国土法 | ||
| 法令制限 | |||
| 小学区 | 春日原小学校 徒歩8分 (約600m) | 中学区 | 春日野中学校 徒歩25分 (約2000m) |
| 現況 | 空 | 引渡 | 即 |
| 管理費 | 8,220円/月 | 修繕積立金 | 22,610円/月 |
| その他費用 | 町内会費:500円/月 |
||
| 周辺環境 | 西鉄天神大牟田線 春日原駅 徒歩3分 (約170m) イオン大野城ショッピングセンター 徒歩9分 (約650m) サニー春日原店 徒歩1分 (約30m) ドラッグ新生堂春日原駅前店 徒歩2分 (約130m) 春日市立春日原小学校 徒歩8分 (約600m) 春日市立春日野中学校 徒歩25分 (約2000m) 恵星幼稚園 徒歩5分 (約350m) 春日原保育所 徒歩7分 (約500m) 街のひかり病院 ハピタル 徒歩5分 (約400m) クローバープラザ 徒歩7分 (約550m) |
||
| 備考 | 【買い物】イオン大野城まで徒歩9分(650m)サニー春日原まで徒歩1分(30m)レガネット春日原まで徒歩3分(190m)ローソン春日原北町まで徒歩3分(230m)ドラッグ新星堂春日原駅前店まで徒歩2分(130m)【幼稚園保育園】恵星幼稚園まで徒歩5分(350m)春日原保育園まで徒歩7分(500m)光の園保育園まで徒歩6分(600m)【銀行】福岡銀行春日原支店まで徒歩2分(120m)西日本シティ銀行春日原支店まで徒歩2分(120m)春日原郵便局まで徒歩2分(110m)【その他】春日市役所まで徒歩10分(750m)クローバープラザまで徒歩7分(550m)春日原南公園まで徒歩7分(550m)街のひかり病院 ハピタルまで徒歩5分(400m) | ||
| 物件番号 | 4561608 | 取引態様 | 媒介 |
取扱店舗情報
| 電話番号 | 092-558-2700 |
|---|---|
| 所在地 | 〒811-1314 福岡県福岡市南区的場2丁目36-20 |
| 営業時間 | 10:00~18:00 |
| 定休日 | 火曜日・水曜日、年末年始 |
| 宅建免許番号 | 福岡県知事(3)第17926号 |
| アクセス | 店舗への地図はこちら |

来店ご予約
- 福岡県
マイページ物件数 - 9,000件
福岡県中古マンション新着物件
-
-

-
- 中古マンション
- 3,290万円
-
福岡市博多区東雲町2丁目
-
西鉄天神大牟田線桜並木駅
-
-
-

-
- 中古マンション
- 2,299万円
-
福岡市中央区草香江2丁目
-
福岡市七隈線六本松駅
-
-
-

-
- 中古マンション
- 2,680万円
-
福岡市東区青葉2丁目
-
JR香椎線舞松原駅
-
-
-

-
- 中古マンション
- 380万円
-
北九州市門司区寺内1丁目
-
JR鹿児島本線小森江駅
-
-
-

-
- 中古マンション
- 4,480万円
-
春日市春日原北町2丁目
-
西鉄天神大牟田線春日原駅
-
-
-

-
- 中古マンション
- 2,880万円
-
福岡市東区下原1丁目
-
JR鹿児島本線九産大前駅
-
-
-

-
- 中古マンション
- 2,390万円
-
久留米市諏訪野町
-
西鉄天神大牟田線西鉄久留米駅
-
- お近くの店舗を探す
-
おすすめ物件
-
-

-
- 中古マンション
- 1,598万円
-
久留米市梅満町
-
西鉄天神大牟田線花畑
-
-
-

-
- 中古マンション
- 5,999万円
-
福岡市早良区百道浜3丁目
-
福岡市空港線西新
-
-
-

-
- 中古マンション
- 1,790万円
-
福岡市南区横手4丁目
-
西鉄天神大牟田線井尻
-
-
-

-
- 中古マンション
- 2,398万円
-
久留米市諏訪野町
-
西鉄天神大牟田線西鉄久留米
-
-
-

-
- 中古マンション
- 2,380万円
-
糟屋郡志免町別府北2丁目
-
福岡市空港線福岡空港
-
-
-

-
- 中古マンション
- 2,099万円
-
福岡市南区野間1丁目
-
西鉄天神大牟田線高宮
-
-
-

-
- 中古マンション
- 2,798万円
-
大野城市栄町2丁目
-
西鉄天神大牟田線春日原
-
-
-

-
- 中古マンション
- 1,990万円
-
福津市中央6丁目
-
JR鹿児島本線福間
-
-
-

-
- 中古マンション
- 1,998万円
-
久留米市国分町
-
JR久大本線南久留米
-
-
-

-
- 中古マンション
- 2,580万円
-
太宰府市宰都1丁目
-
西鉄天神大牟田線都府楼前
-




担当エージェント:津村 暢彦
《こんなお悩みはありませんか?》
◇お住まい選びを始めたいけど、何から始めたらいい?
◇お家選びのポイントってある?
◇月々の支払額はいくらくらい?
◇住宅ローンの銀行、どこを選んだらいい?
◇住宅購入するときの補助金や控除ってどんなものがうけられる?
◇家を買いたいけど、購入後の家計が心配。。家計の見直しをしたい
◇家を購入した場合、税金や保険はどれくらいかかる?
などのお悩み、まずは【ハウスドゥ 南区的場】までご相談ください!
【ハウスドゥ 南区的場】では、「お住まいを購入すること=これからの生活環境を購入すること」と考えています。
お住まいになるお客様、ご家族様にとってのベストは何か、お客様と一緒に考え、アドバイスさせて頂きたいと思っております。
「今すぐ買うわけではない」「まだ賃貸か購入かを決めきれていない」というお客様も、まずは自分だけの《お住まい選びの地図作り》をしてみませんか?