エバーランドシティ新・泉北2番館 和泉市室堂町の中古マンション
NEW 01.22掲載情報更新日:2026年01月27日 次回更新予定日:2026年02月10日
- 1,180万円
-
- 借入ご希望金額
万円 - 借入期間
年 - 借入金利
% - 月々のお支払い金額
円
- 借入ご希望金額
※ 月々のお支払例は目安の試算となりますので、実際の金額とは異なる場合がございます。詳しくは店舗までお問合わせください。
- 和泉市室堂町
-
南海電鉄泉北線『和泉中央』 徒歩20分 (約1600m)
『変電所前』 徒歩9分 (約720m)
和泉市室堂町マンション | 物件情報
物件の設備
- 公営水道
- 公共下水
- 共同ガス
- トランクルーム
- バルコニー
物件の特徴
- 管理人常駐
- 即入居可
物件詳細情報
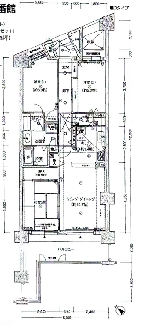
| 価格 | 1,180万円 | 間取り | 3LDK |
|---|---|---|---|
| 物件種別 | 中古マンション | ||
| 所在地 | 大阪府和泉市室堂町 | ||
| アクセス |
|
||
| 専有面積 | 内法 68.24㎡ | 所在階 | 14階建/12階部分 |
| 主要採光 | 南西向 | バルコニー | 南西向15.00㎡ |
| その他 | |||
| 権利 | 所有権 |
||
| 保証・評価 | |||
| リフォーム | |||
| 総戸数 | 211戸 | 面積 | |
| 築年月 | 1999年(平成11年)01月築 | 建物構造 | SRC |
| 施工会社 | |||
| 管理会社 | 管理方式 | 全部委託 常駐管理 管理組合あり | |
| 駐車場 | |||
| 都市計画 | 用途地域 | ||
| 建ぺい/容積率 | 土地国土法 | ||
| 法令制限 | |||
| 小学区 | 中学区 | ||
| 現況 | 空 | 引渡 | 即 |
| 管理費 | 10,790円/月 | 修繕積立金 | 17,940円/月 |
| その他費用 | |||
| 備考 | リフォーム済み、即引き渡し | ||
| 物件番号 | 4563153 | 取引態様 | 一般 |
取扱店舗情報
ハウスドゥ アピタタウン金沢ベイ 株式会社アンビション 店舗詳細ページへ
| 電話番号 | 076-204-9557 |
|---|---|
| 所在地 | 〒920-0333 石川県金沢市無量寺4丁目80番地 アピタタウン金沢ベイC棟1F |
| 営業時間 | 10:00~19:00 |
| 定休日 | 年中無休 |
| 宅建免許番号 | 石川県知事(1)第4517号 |
| アクセス | 店舗への地図はこちら |

来店ご予約
大阪府和泉市で価格が似ている物件はこちら
- 大阪府
マイページ物件数 - 16,402件
大阪府中古マンション新着物件
- お近くの店舗を探す
-
おすすめ物件
-
-

-
- 中古マンション
- 2,680万円
-
大阪市淀川区新高1丁目
-
阪急電鉄神戸線神崎川
-
-
-

-
- 中古マンション
- 2,880万円
-
東大阪市御厨東1丁目
-
近鉄難波・奈良線八戸ノ里
-
-
-

-
- 中古マンション
- 2,790万円
-
高槻市古曽部町2丁目
-
JR東海道線高槻
-
-
-

-
- 中古マンション
- 2,999万円
-
大阪市住之江区新北島2丁目
-
大阪市四つ橋線住之江公園
-
-
-

-
- 中古マンション
- 3,580万円
-
高槻市南総持寺町
-
阪急電鉄京都線総持寺
-
-
-

-
- 中古マンション
- 1,890万円
-
四條畷市大字中野
-
JR片町線忍ヶ丘
-
-
-

-
- 中古マンション
- 2,298万円
-
泉大津市田中町
-
南海電鉄本線泉大津
-
-
-

-
- 中古マンション
- 1,150万円
-
高槻市牧田町
-
JR東海道線摂津富田
-
-
-

-
- 中古マンション
- 4,580万円
-
八尾市山城町2丁目
-
近鉄大阪線近鉄八尾
-
-
-

-
- 中古マンション
- 4,298万円
-
大阪市住之江区新北島1丁目
-
大阪市四つ橋線住之江公園
-
























