藤沢シティホームズ千歳烏山弐番館
NEW 01.22掲載情報更新日:2026年01月22日 次回更新予定日:2026年02月05日
- 8,480万円
-
- 借入ご希望金額
万円 - 借入期間
年 - 借入金利
% - 月々のお支払い金額
円
- 借入ご希望金額
※ 月々のお支払例は目安の試算となりますので、実際の金額とは異なる場合がございます。詳しくは店舗までお問合わせください。
- 世田谷区南烏山3丁目
-
京王線『芦花公園』 徒歩6分 (約480m)
京王線『千歳烏山』 徒歩10分 (約800m)
藤沢シティホームズ千歳烏山弐番館マンション | 物件情報
■オートロック・宅配ボックス完備 ■4方角住戸 ■ペット飼育可 ■内装新規リノベーション
《Access》
・京王線「芦花公園駅」歩6分
・同線「千歳烏山駅」歩10分
《Point》
・新耐震基準適合マンション
・オートロック・宅配ボックス
・日勤管理 管理体制良好
・ペット飼育可(細則あり)
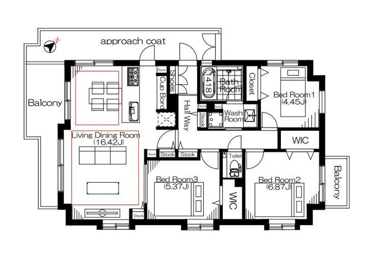
・LDK16帖超えのゆとりある間取り
・最上階・前面棟無 眺望良好
・4方角住戸
・LDK3面採光&各居室2面採光
・20.83㎡のアプローチコート
・両面バルコニー
・2WICで豊富な収納が可能
・床暖房、浴室乾燥、温水洗浄便座・・・設備充実
《Remodeling》
・キッチン、バス、トイレ、洗面化粧台新規交換
・建具一式、照明器具一式交換
・給湯器交換
・エアコン(洋室1台)
・クロス、フローリング張替え
・ハウスクリーニング・・・など
■お気軽にお問合せください♪
物件の設備
- 公営水道
- 公共下水
- 都市ガス
- 給湯
- 食器洗浄乾燥機
- コンロ三口
- グリル
- ガスコンロ付
- カウンターキッチン
- システムキッチン
- オープンキッチン
- バス
- オートバス
- 追焚機能
- 浴室暖房
- 浴室乾燥機
- トイレ
- 温水洗浄便座
- B/T別室
- 室内洗濯機置場
- 洗面所独立
- 床暖房
- エアコン
- 照明器具
- BS
- CS
- ネット専用回線
- オートロック
- モニタ付インターホン
- モニタ付オートロック
- 防犯カメラ
- 火災警報器/報知機
- LDK15畳以上
- 2面採光
- 3面採光
- 全室2面採光
- フローリング
- 全室フローリング
- 24時間換気システム
- クローゼット
- ウォークインクローゼット
- ウォークインクローゼット2箇所
- シューズボックス
- バルコニー
- 両面バルコニー
- 宅配BOX
- エレベーター
物件の特徴
- 管理人日勤
- 外装リフォーム済
- 内装リフォーム後渡
- 角部屋
- 四方角部屋
- 耐震構造
- 総合病院徒歩10分以内
- 小学校徒歩10分以内
- 整備された歩道
- 緑豊かな住宅地
- スーパーが近い
- 市街地が近い
- 都市近郊
- 眺望良好
- 通風良好
- 陽当り良好
- 最上階
- 高層階
- 上階無
- 前面棟無
- 外観タイル張
- 修繕
- 点検記録
- ペット相談
- ペット対応
物件詳細情報
| 価格 | 8,480万円 | 間取り | 3LDK |
|---|---|---|---|
| 物件種別 | 中古マンション | ||
| 所在地 | 東京都世田谷区南烏山3丁目 | ||
| アクセス |
|
||
| 専有面積 | 壁芯 75.49㎡ | 所在階 | 7階建/7階部分 |
| 主要採光 | 南西向 | バルコニー | 南西向9.71㎡ |
| その他 | |||
| 権利 | 所有権 |
||
| 保証・評価 | |||
| リフォーム | 【外装】2026年01月 大規模修繕 |
||
| 総戸数 | 43戸 | 面積 | |
| 築年月 | 2000年(平成12年)03月築 | 建物構造 | RC |
| 施工会社 | ㈱森組 | ||
| 管理会社 | 三菱地所藤和コミュニティ㈱ | 管理方式 | 全部委託 日勤管理 管理組合あり |
| 駐車場 | |||
| 都市計画 | 用途地域 | ||
| 建ぺい/容積率 | 土地国土法 | ||
| 法令制限 | |||
| 小学区 | 武蔵丘小学校 徒歩7分 (約530m) | 中学区 | 烏山中学校 徒歩6分 (約470m) |
| 現況 | 空 | 引渡 | 相談 |
| 管理費 | 19,700円/月 | 修繕積立金 | 22,140円/月 |
| その他費用 | 町会費:50円/月 その他負担金:600円 アプローチ使用料 |
||
| 周辺環境 | 地産マルシェ烏山 徒歩3分 (約230m) 烏山公園 徒歩6分 (約460m) 世田谷区立烏山中学校 徒歩6分 (約470m) 北烏山なごみ保育園 徒歩7分 (約520m) 世田谷区立武蔵丘小学校 徒歩7分 (約530m) くすりセイジョー芦花公園店 徒歩7分 (約530m) 医療法人社団緑眞会世田谷下田総合病院 徒歩9分 (約670m) クレアビル 徒歩10分 (約730m) 世田谷区立烏山図書館 徒歩10分 (約740m) 世田谷北烏山郵便局 徒歩11分 (約850m) |
||
| 備考 | |||
| 物件番号 | 4563679 | 取引態様 | 媒介 |
取扱店舗情報
ハウスドゥ 千歳船橋 R2-CONNECT株式会社 店舗詳細ページへ
| 電話番号 | 03-5799-7621 |
|---|---|
| 所在地 | 〒156-0054 東京都世田谷区桜丘5丁目47-19 |
| 営業時間 | 9:00~19:00 |
| 定休日 | 火曜日、水曜日 |
| 宅建免許番号 | 東京都知事(1)第107079号 |
| アクセス | 店舗への地図はこちら |

来店ご予約
東京都世田谷区で価格が似ている物件はこちら
- 東京都
マイページ物件数 - 5,142件
東京都中古マンション新着物件
-
-

-
- 中古マンション
- 2,980万円
-
品川区西五反田1丁目
-
JR山手線五反田駅
-
-
-

-
- 中古マンション
- 4,198万円
-
大田区西六郷1丁目
-
京急本線雑色駅
-
-
-

-
- 中古マンション
- 8,370万円
-
世田谷区深沢1丁目
-
東急大井町線九品仏駅
-
-
-

-
- 中古マンション
- 9,980万円
-
世田谷区用賀1丁目
-
東急田園都市線桜新町駅
-
-
-

-
- 中古マンション
- 1億8,990万円
-
江東区豊洲2丁目
-
東京メトロ有楽町線豊洲駅
-
-
-

-
- 中古マンション
- 8,480万円
-
世田谷区南烏山3丁目
-
京王線芦花公園駅
-
-
-

-
- 中古マンション
- 3,380万円
-
練馬区関町北1丁目
-
西武新宿線武蔵関駅
-
- お近くの店舗を探す
-
おすすめ物件
-
-

-
- 中古マンション
- 3,799万円
-
小平市大沼町6丁目
-
西武新宿線小平
-
-
-

-
- 中古マンション
- 2,490万円
-
葛飾区新宿1丁目
-
JR千代田・常磐緩行線金町
-
-
-

-
- 中古マンション
- 3,780万円
-
葛飾区亀有2丁目
-
JR千代田・常磐緩行線亀有
-
-
-

-
- 中古マンション
- 1,980万円
-
足立区宮城1丁目
-
JR京浜東北・根岸線王子
-
-
-

-
- 中古マンション
- 2,980万円
-
足立区中川4丁目
-
JR千代田・常磐緩行線亀有
-
-
-

-
- 中古マンション
- 5,990万円
-
台東区蔵前4丁目
-
都営浅草線蔵前
-
-
-

-
- 中古マンション
- 1,900万円
-
市原市ちはら台西4丁目
-
京成千原線ちはら台
-
-
-

-
- 中古マンション
- 2,780万円
-
青梅市新町3丁目
-
JR青梅線小作
-
-
-

-
- 中古マンション
- 5,580万円
-
調布市上石原3丁目
-
京王線西調布
-
-
-

-
- 中古マンション
- 7,180万円
-
世田谷区南烏山6丁目
-
京王線千歳烏山
-

















世田谷区物件はハウスドゥ千歳船橋へお任せください。
物件、資金計画、周辺環境もご案内させて頂きます♪
資料請求、ご見学お気軽にお問合せください。