阿倍野桃ヶ池シティハウス 大阪市阿倍野区桃ケ池町2丁目の中古マンション
掲載情報更新日:2026年05月14日 次回更新予定日:2026年05月28日
- 3,680万円
-
- 借入ご希望金額
万円 - 借入期間
年 - 借入金利
% - 月々のお支払い金額
円
- 借入ご希望金額
※ 月々のお支払例は目安の試算となりますので、実際の金額とは異なる場合がございます。詳しくは店舗までお問合わせください。
- 大阪市阿倍野区桃ケ池町2丁目
-
JR阪和線『南田辺』 徒歩3分 (約240m)
大阪市阿倍野区桃ケ池町2丁目マンション | 物件情報
■ 駅近・便利!魅力が詰まったお部屋です♪ ■ ワンフロアで過ごせる快適空間!
◆マンションを買うなら【ハウスドゥ長居公園東】へ!◆
全国700店舗以上を展開し、売買専門店舗数No.1のハウスドゥグループ。
その中でも当店は、不動産売買に特化した専門店舗として、地域密着で信頼あるサービスを提供しています。
特に東住吉区に強く、地元ならではの情報力と提案力が自慢です。学区・周辺環境・資産性など、細かなご希望に対しても的確にご提案可能です。
◇ 新築戸建て・中古住宅
◇ 中古+リフォームのご提案
◇ 投資用物件・収益不動産
◇ 住宅ローン相談・事前審査
◇ 売却・買替え・住み替え相談
ご購入からローン、リフォームまでワンストップで対応可能。お客様専属エージェントが、お客様の理想の住まい探しを全力でサポートします。
さらに、店舗限定の非公開物件も多数ご用意しております。「良い物件が見つからない」とお悩みの方も、ぜひ一度ご相談ください。
◆住宅ローン相談会も随時開催中!
「まずは話だけでも聞いてみたい」そんな方も大歓迎です。
【ハウスドゥ長居公園東】へお問合せください!
無料問い合わせ→【0120-885-123】
物件の設備
- 下水道
- 都市ガス
- バルコニー
- 南面バルコニー
物件の特徴
- 管理人日勤
- 即入居可
物件詳細情報
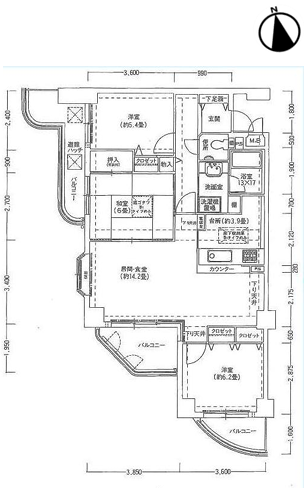
| 価格 | 3,680万円 | 間取り | 3LDK |
|---|---|---|---|
| 物件種別 | 中古マンション | ||
| 所在地 | 大阪府大阪市阿倍野区桃ケ池町2丁目 | ||
| アクセス |
|
||
| 専有面積 | 壁芯 80.29㎡ | 所在階 | 7階建/1階部分 |
| 主要採光 | バルコニー | 南向9.68㎡ | |
| その他 | |||
| 権利 | 所有権 |
||
| 保証・評価 | |||
| リフォーム | |||
| 総戸数 | 19戸 | 面積 | |
| 築年月 | 1988年(昭和63年)12月築 | 建物構造 | RC |
| 施工会社 | |||
| 管理会社 | 阿倍野桃ヶ池シティハウス管理組合 | 管理方式 | 全部委託 日勤管理 管理組合あり |
| 駐車場 | |||
| 都市計画 | 用途地域 | 1種住居 | |
| 建ぺい/容積率 | 土地国土法 | ||
| 法令制限 | |||
| 小学区 | 長池小学校 徒歩10分 (約770m) | 中学区 | 昭和中学校 徒歩3分 (約190m) |
| 現況 | 空 | 引渡 | 即 |
| 管理費 | 21,230円/月 | 修繕積立金 | 19,220円/月 |
| その他費用 | |||
| 周辺環境 | 昭和中学校 徒歩3分 (約190m) 東住吉田辺郵便局 徒歩6分 (約450m) サンディ 南田辺店 徒歩6分 (約470m) ローソンストア100東住吉田辺店 徒歩7分 (約560m) 長池小学校 徒歩10分 (約770m) JR南田辺駅 徒歩12分 (約920m) |
||
| 備考 | |||
| 物件番号 | 4582542 | 取引態様 | 媒介 |
取扱店舗情報
| 電話番号 | 06-6657-5963 |
|---|---|
| 所在地 | 〒546-0014 大阪府大阪市東住吉区鷹合1丁目13-3 KIDビル1階 |
| 営業時間 | 10:00~19:00 |
| 定休日 | 水曜日 |
| 宅建免許番号 | 大阪府知事(1)第65144号 |
| アクセス | 店舗への地図はこちら |

来店ご予約
大阪府大阪市阿倍野区で価格が似ている物件はこちら
- 大阪府
マイページ物件数 - 19,084件
最近見た物件
-
-

-
- 中古マンション
- 1,480万円
-
相模原市中央区上溝
-
JR相模線上溝
-
-
-

-
- 中古一戸建て
- 3,280万円
-
三重郡朝日町大字縄生
-
近鉄名古屋線伊勢朝日
-
-
-

-
- 新築一戸建て
- 3,080万円
-
岡山市中区山崎
-
JR山陽本線岡山
-
大阪府中古マンション新着物件
-
-

-
- 中古マンション
- 3,498万円
-
大阪市東淀川区瑞光2丁目
-
阪急電鉄京都線上新庄駅
-
-
-

-
- 中古マンション
- 2,990万円
-
守口市大久保町2丁目
-
京阪本線大和田駅
-
-
-

-
- 中古マンション
- 1,990万円
-
大阪市鶴見区今津中3丁目
-
JR片町線徳庵駅
-
-
-

-
- 中古マンション
- 2,190万円
-
豊中市熊野町3丁目
-
北大阪急行南北線桃山台駅
-
-
-

-
- 中古マンション
- 1,480万円
-
豊中市東泉丘1丁目
-
北大阪急行南北線桃山台駅
-
-
-

-
- 中古マンション
- 3,398万円
-
堺市西区鳳南町5丁
-
JR阪和線鳳駅
-
-
-

-
- 中古マンション
- 2,998万円
-
豊中市西泉丘2丁目
-
北大阪急行南北線緑地公園駅
-
- お近くの店舗を探す
-
おすすめ物件
-
-

-
- 中古マンション
- 7,380万円
-
吹田市桃山台2丁目
-
北大阪急行南北線桃山台
-
-
-

-
- 中古マンション
- 1,480万円
-
高槻市古曽部町2丁目
-
JR東海道線高槻
-
-
-

-
- 中古マンション
- 4,090万円
-
八尾市永畑町3丁目
-
JR関西本線八尾
-
-
-

-
- 中古マンション
- 2,280万円
-
八尾市永畑町3丁目
-
JR関西本線八尾
-
-
-

-
- 中古マンション
- 2,880万円
-
豊中市大黒町2丁目
-
阪急電鉄神戸線神崎川
-
-
-

-
- 中古マンション
- 3,990万円
-
茨木市園田町
-
阪急電鉄京都線茨木市
-
-
-

-
- 中古マンション
- 2,499万円
-
門真市野里町
-
京阪本線大和田
-
-
-

-
- 中古マンション
- 1,998万円
-
高槻市上土室2丁目
-
JR東海道線摂津富田
-
-
-

-
- 中古マンション
- 1,080万円
-
茨木市東太田1丁目
-
JR東海道線JR総持寺
-
-
-

-
- 中古マンション
- 3,250万円
-
大阪市淀川区加島3丁目
-
JR東西線加島
-





「購入後すぐに不具合があったらどうしよう・・・」
そんな中古住宅の不安解消をハウスドゥがサポート。
◆住宅設備あんしん保証プラス5つの安心サポート!
◇修理無制限
修理回数制限なしOK!契約期間中は、同じ部位の故障も何度でも修理可能です。
◇出張費・工賃無料
出張費、施工料、技術料0円!メーカー保証対象の修理は全て保証いたします。
◇経年劣化対応
消耗品以外なら、住宅設備の経年劣化による故障、自然故障にも対応。
◇事前審査なし
面倒な事前審査は一切ございません。今すぐといったご要望に対応可能です。
◇24時間365日コール受付
お電話一本で、簡単修理受付。全国対応24時間365日、コールセンターにてお電話受付対応いたします。
◆ハウスドゥなら確かな保証のおまもりDoで充実サポート!
◇3つのおまもりで安心プラス!
1.インスペクション
2.既存住宅保険
3.設備機器保証
※詳細、費用については担当者へお問合せください。
築年数や構造等により保証の対象とならない場合がございますので事前に必ずご確認ください。