朝日プラザ高槻ウエストヒルズ
掲載情報更新日:2025年11月22日 次回更新予定日:2025年12月06日
- 2,150万円
-
- 借入ご希望金額
万円 - 借入期間
年 - 借入金利
% - 月々のお支払い金額
円
- 借入ご希望金額
※ 月々のお支払例は目安の試算となりますので、実際の金額とは異なる場合がございます。詳しくは店舗までお問合わせください。
- 高槻市上土室2丁目
-
JR東海道線『摂津富田』 バス乗車9分 上土室 停 徒歩6分 (約480m)
JR東海道線『高槻』 バス乗車25分 上土室 停 徒歩7分 (約560m)
阪急電鉄京都線『富田』 徒歩39分 (約3120m)
朝日プラザ高槻ウエストヒルズマンション | 物件情報
◆令和3年1月フルリノベーション済 ◆南西角部屋 陽当たり通風良好◎ ◆4LDK+2面バルコニー
◆JR摂津富田駅よりバス乗車9分「上土室」下車 徒歩6分
◆リノベーション内容
・システムキッチン
・ユニットバス
・洗面化粧台
・トイレ
・全居室クロス貼替
・フローリング貼替
・CF貼替
・畳
・建具
・給湯器
・ハウスクリーニング
◆設備
・カウンターキッチン
・食器洗浄乾燥機
・シャンプードレッサー
・浴室暖房乾燥機
・ウォシュレット
・モニター付インターホン
◆周辺環境
・阿武野幼稚園 徒歩10分
・土室幼稚園 徒歩13分
・阿武山たつの子認定こども園 徒歩14分
・阿武山小学校 徒歩17分
・阿武山中学校 徒歩9分
・セブンイレブン高槻土室町北店 徒歩8分
・ウエルシア上土室店 徒歩8分
・マルヤス 阿武野店 徒歩13分
・モリタ屋 南平台店 徒歩14分
・業務スーパー奈佐原店 徒歩14分
・DCM 阿武山店 徒歩12分
・日本赤十字社 高槻赤十字病院 徒歩11分
・上土室二丁目さつき公園 徒歩2分
物件の設備
- 都市ガス
- 給湯
- 浄水器
- 食器洗浄乾燥機
- コンロ三口
- カウンターキッチン
- システムキッチン
- ユニットバス
- 浴室暖房
- 浴室乾燥機
- 温水洗浄便座
- 室内洗濯機置場
- 洗髪洗面化粧台
- 洗面所独立
- 有線放送
- モニタ付インターホン
- 火災警報器/報知機
- LDK15畳以上
- 和室
- フローリング
- フローリング張替
- 24時間換気システム
- クローゼット2箇所
- トランクルーム
- 押入
- バルコニー
- 2面バルコニー
- 南面バルコニー
- エレベーター
- 駐輪場
- バイク置場
物件の特徴
- 管理人日勤
- 内装リフォーム済
- 角部屋
- 南西角部屋
- 2沿線利用可
- スーパーが近い
- 閑静な住宅街
- 通風良好
- 陽当り良好
- ペット不可
物件詳細情報
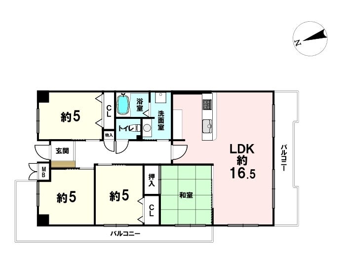
| 価格 | 2,150万円 | 間取り | 4LDK |
|---|---|---|---|
| 物件種別 | 中古マンション | ||
| 所在地 | 大阪府高槻市上土室2丁目 | ||
| アクセス |
|
||
| 専有面積 | 壁芯 83.23㎡ | 所在階 | 8階建/3階部分 |
| 主要採光 | バルコニー | 南向21.24㎡ | |
| その他 | |||
| 権利 | 所有権 |
||
| 保証・評価 | |||
| リフォーム | 【水回り】2021年01月 キッチン・浴室・トイレ・洗面・給湯器 【内装】2021年01月 壁、天井 ・床 ・全室クロス ・建具 |
||
| 総戸数 | 81戸 | 面積 | |
| 築年月 | 1987年(昭和62年)09月築 | 建物構造 | RC |
| 施工会社 | 大成プレハブ(株) | ||
| 管理会社 | 日本ビルサービス(株) | 管理方式 | 全部委託 日勤管理 |
| 駐車場 | 【駐車場】空有 料金:7,000円/月 【バイク置き場】あり 料金: 3600円/年 【駐輪場】あり 料金: 2400円/年 |
||
| 都市計画 | 市街化区域 |
用途地域 | 1種中高 |
| 建ぺい/容積率 | 60% / 200% | 土地国土法 | |
| 法令制限 | 準防火地域・第2種高度地区 | ||
| 小学区 | 阿武山小学校 徒歩17分 (約1300m) | 中学区 | 阿武山中学校 徒歩10分 (約750m) |
| 現況 | 居住中 | 引渡 | 相談 |
| 管理費 | 8,320円/月 | 修繕積立金 | 9,130円/月 |
| その他費用 | |||
| 周辺環境 | 氷室町4丁目やまぶき児童遊園 徒歩10分 (約770m) 高槻市立阿武野幼稚園 徒歩10分 (約770m) ふじた歯科クリニック 徒歩12分 (約950m) セブンイレブン高槻土室町北店 徒歩7分 (約560m) ウエルシア上土室店 徒歩10分 (約750m) たにがわクリニック 徒歩10分 (約750m) 酒のやまや 高槻南平台店 徒歩17分 (約1320m) ガスト 徒歩11分 (約820m) こさか鍼灸整骨院 徒歩12分 (約890m) 業務スーパー TAKENOKO 奈佐原店 徒歩13分 (約990m) |
||
| 備考 | ◆令和3年1月リノベーション済 ◆4LDK ◆南西角部屋 陽当たり通風良好◎ ◆JR摂津富田駅よりバス乗車9分「上土室」下車 徒歩6分 ◆リノベーション内容 ・システムキッチン ・ユニットバス ・洗面化粧台 ・トイレ ・全居室クロス貼替 ・フローリング貼替 ・CF貼替 ・畳 ・建具 ・給湯器 ・ハウスクリーニング ◆周辺環境 ・阿武野幼稚園 徒歩10分 ・土室幼稚園 徒歩13分 ・阿武山たつの子認定こども園 徒歩14分 ・阿武山小学校 徒歩17分 ・阿武山中学校 徒歩9分 ・セブンイレブン高槻土室町北店 徒歩8分 ・ウエルシア上土室店 徒歩8分 ・マルヤス 阿武野店 徒歩13分 ・モリタ屋 南平台店 徒歩14分 ・業務スーパー奈佐原店 徒歩14分 ・DCM 阿武山店 徒歩12分 ・日本赤十字社 高槻赤十字病院 徒歩13分 ・上土室二丁目さつき公園 徒歩2分 |
||
| 物件番号 | 4240205 | 取引態様 | 専任 |
取扱店舗情報
ハウスドゥ 阪急高槻南 阿佐建築工務株式会社 店舗詳細ページへ
| 電話番号 | 072-668-1888 |
|---|---|
| 所在地 | 〒569-0072 大阪府高槻市京口町8-7 |
| 営業時間 | 9:00~18:00 |
| 定休日 | 火曜日・水曜日 |
| 宅建免許番号 | 大阪府知事(15)第10672号 |
| アクセス | 店舗への地図はこちら |

来店ご予約
大阪府高槻市で価格が似ている物件はこちら
- 大阪府
マイページ物件数 - 15,402件
大阪府中古マンション新着物件
-
-

-
- 中古マンション
- 1,899万円
-
東大阪市友井5丁目
-
近鉄大阪線弥刀駅
-
-
-

-
- 中古マンション
- 1,180万円
-
東大阪市小阪3丁目
-
近鉄難波・奈良線八戸ノ里駅
-
-
-

-
- 中古マンション
- 1,780万円
-
東大阪市友井5丁目
-
近鉄大阪線弥刀駅
-
-
-

-
- 中古マンション
- 5,290万円
-
吹田市芳野町
-
北大阪急行南北線江坂駅
-
-
-

-
- 中古マンション
- 7,099万円
-
豊中市新千里西町2丁目
-
北大阪急行南北線千里中央駅
-
-
-

-
- 中古マンション
- 1,688万円
-
吹田市新芦屋下
-
JR東海道線千里丘駅
-
-
-

-
- 中古マンション
- 1,890万円
-
大阪市平野区平野宮町1丁目
-
JR関西本線平野駅
-
- お近くの店舗を探す
-
おすすめ物件
-
-

-
- 中古マンション
- 3,490万円
-
吹田市穂波町
-
阪急電鉄千里線吹田
-
-
-

-
- 中古マンション
- 1,580万円
-
和泉市伏屋町5丁目
-
南海電鉄泉北線光明池
-
-
-

-
- 中古マンション
- 1,180万円
-
泉大津市尾井千原町
-
南海電鉄本線北助松
-
-
-

-
- 中古マンション
- 250万円
-
茨木市新郡山2丁目
-
JR東海道線茨木
-
-
-

-
- 中古マンション
- 4,980万円
-
吹田市江の木町
-
大阪市御堂筋線江坂
-
-
-

-
- 中古マンション
- 7,480万円
-
吹田市垂水町2丁目
-
大阪市御堂筋線江坂
-
-
-

-
- 中古マンション
- 2,480万円
-
大阪市住之江区平林南2丁目
-
南港ポートタウン線(ニュートラム)平林
-
-
-

-
- 中古マンション
- 3,200万円
-
大阪市港区池島3丁目
-
大阪市中央線朝潮橋
-
-
-

-
- 中古マンション
- 2,598万円
-
大阪市淀川区新高4丁目
-
阪急電鉄宝塚線三国
-
-
-

-
- 中古マンション
- 1,980万円
-
大阪市淀川区新高1丁目
-
阪急電鉄神戸線神崎川
-


























担当エージェント:日下 千賀子
南西角部屋の明るく開放感のあるお住まいで、令和3年フルリノベーション済みのため設備も充実しております♪幼稚園、中学校、コンビニ、ドラッグストアまでも徒歩10分圏内と便利な立地ですので、ぜひご相談ください♪