日本橋アムフラット 中央区日本橋中洲の中古マンション
NEW 02.06掲載情報更新日:2026年02月06日 次回更新予定日:2026年02月20日
- 5,870万円
-
- 借入ご希望金額
万円 - 借入期間
年 - 借入金利
% - 月々のお支払い金額
円
- 借入ご希望金額
※ 月々のお支払例は目安の試算となりますので、実際の金額とは異なる場合がございます。詳しくは店舗までお問合わせください。
- 中央区日本橋中洲
-
東京メトロ半蔵門線『水天宮前』 徒歩7分 (約560m)
都営新宿線『浜町』 徒歩7分 (約560m)
東京メトロ日比谷線『人形町』 徒歩12分 (約960m)
中央区日本橋中洲マンション | 物件情報
新規リフォーム物件◆複数駅・複数路線利用可能◆内見予約お待ちしております。
●リフォーム内容
ユニットバス新規交換 洗面台新規交換 クローゼット新規設置
フロアタイル新規上貼り 建具新規交換等
●都心へのアクセス良好
***皆様のお問い合わせをお待ちしております!***
<弊社の営業時間9:30~18:30>
◆当物件以外に、ご条件に近い物件も合わせてご紹介させていただくことも可能です。
弊社ホームページに掲載されていない物件も、ご紹介可能です。
◆ローンに関するご相談もお受けいたします。
どうぞお気軽にお問い合わせください。
物件の設備
- 公営水道
- 公共下水
- 都市ガス
- 給湯
- カウンターキッチン
- システムキッチン
- ユニットバス
- シャワー
- トイレ
- 温水洗浄便座
- B/T別室
- 室内洗濯機置場
- 洗面所独立
- 出窓
- 全室フローリング
- フローリング張替
- クローゼット
- シューズボックス
- エレベーター
物件の特徴
- 管理人巡回
- 内装リフォーム済
- 3沿線以上利用可
- 閑静な住宅街
- 通風良好
- 陽当り良好
- ペット不可
物件詳細情報
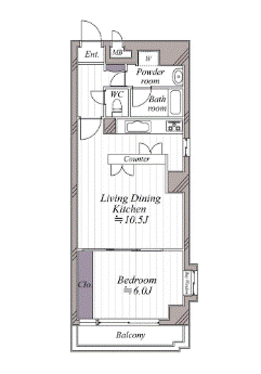
| 価格 | 5,870万円 | 間取り | 1LDK |
|---|---|---|---|
| 物件種別 | 中古マンション | ||
| 所在地 | 東京都中央区日本橋中洲 | ||
| アクセス |
|
||
| 専有面積 | 壁芯 41.22㎡ | 所在階 | 10階建/5階部分 |
| 主要採光 | バルコニー | ||
| その他 | |||
| 権利 | 所有権 |
||
| 保証・評価 | |||
| リフォーム | 【水回り】2026年03月予定 浴室・洗面 【内装】2025年03月 床 ・建具 |
||
| 総戸数 | 19戸 | 面積 | |
| 築年月 | 1995年(平成7年)01月築 | 建物構造 | SRC |
| 施工会社 | |||
| 管理会社 | 管理方式 | 全部委託 巡回管理 | |
| 駐車場 | |||
| 都市計画 | 用途地域 | ||
| 建ぺい/容積率 | 土地国土法 | ||
| 法令制限 | |||
| 小学区 | 中学区 | ||
| 現況 | 空 | 引渡 | 相談 |
| 管理費 | 18,600円/月 | 修繕積立金 | 11,050円/月 |
| その他費用 | |||
| 周辺環境 | コーナン江東深川店 徒歩16分 (約1260m) | ||
| 備考 | |||
| 物件番号 | 4586320 | 取引態様 | 媒介 |
取扱店舗情報
ハウスドゥ 江東区役所前 Keep up home株式会社 店舗詳細ページへ
| 電話番号 | 03-6666-0705 |
|---|---|
| 所在地 | 〒135-0016 東京都江東区東陽5丁目30-16 とびたビル5F |
| 営業時間 | 10:00~18:30 |
| 定休日 | 水曜日 |
| 宅建免許番号 | 東京都知事(1)第107913号 |
| アクセス | 店舗への地図はこちら |

来店ご予約
東京都中央区で価格が似ている物件はこちら
- 東京都
マイページ物件数 - 5,199件
東京都中古マンション新着物件
- お近くの店舗を探す
-
おすすめ物件
-
-

-
- 中古マンション
- 2,780万円
-
青梅市新町3丁目
-
JR青梅線小作
-
-
-

-
- 中古マンション
- 2,990万円
-
千葉市中央区問屋町
-
JR京葉線千葉みなと
-
-
-

-
- 中古マンション
- 2,480万円
-
日野市平山3丁目
-
京王線平山城址公園
-
-
-

-
- 中古マンション
- 2億1,800万円
-
大田区山王3丁目
-
JR京浜東北・根岸線大森
-
-
-

-
- 中古マンション
- 9,980万円
-
台東区北上野2丁目
-
東京メトロ日比谷線入谷
-
-
-

-
- 中古マンション
- 1,870万円
-
練馬区関町北2丁目
-
西武新宿線武蔵関
-
-
-

-
- 中古マンション
- 3,080万円
-
足立区花畑5丁目
-
東武伊勢崎・大師線谷塚
-
-
-

-
- 中古マンション
- 1億4,800万円
-
世田谷区桜上水5丁目
-
京王線桜上水
-
-
-

-
- 中古マンション
- 3,799万円
-
小平市大沼町6丁目
-
西武新宿線小平
-
-
-

-
- 中古マンション
- 2億800万円
-
世田谷区桜上水4丁目
-
京王線桜上水
-














