JGMベリテュード箱崎公園セカンドステージ
掲載情報更新日:2026年05月21日 次回更新予定日:2026年06月04日
- 2,599万円
-
- 借入ご希望金額
万円 - 借入期間
年 - 借入金利
% - 月々のお支払い金額
円
- 借入ご希望金額
※ 月々のお支払例は目安の試算となりますので、実際の金額とは異なる場合がございます。詳しくは店舗までお問合わせください。
- 福岡市東区松田3丁目
-
JR篠栗線『柚須』 徒歩14分 (約1100m)
JR鹿児島本線『箱崎』 徒歩25分 (約2000m)
福岡市箱崎線『箱崎九大前』 徒歩33分 (約2600m)
JGMベリテュード箱崎公園セカンドステージマンション | 物件情報
物件の設備
- 公営水道
- 都市ガス
- 給湯
- 浄水器
- 食器洗浄乾燥機
- コンロ三口
- グリル
- カウンターキッチン
- システムキッチン
- ユニットバス
- 浴室乾燥機
- トイレ
- 温水洗浄便座
- 室内洗濯機置場
- 洗髪洗面化粧台
- ダウンライト
- オートロック
- モニタ付インターホン
- 防犯カメラ
- 火災警報器/報知機
- 南西向
- 全室フローリング
- 24時間換気システム
- クローゼット
- 全居室収納
- シューズボックス
- バルコニー
- インナーバルコニー
- 宅配BOX
- エレベーター
- エレベーター2基
- 駐輪場
- バイク置場
物件の特徴
- 管理人日勤
- 2沿線利用可
- 3沿線以上利用可
- 眺望良好
- 陽当り良好
- 外観タイル張
- 即引渡可
- 即入居可
- ペット不可
物件詳細情報
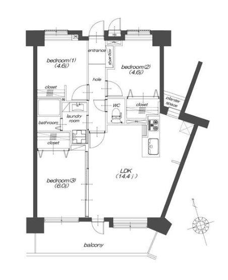
| 価格 | 2,599万円 | 間取り | 3LDK |
|---|---|---|---|
| 物件種別 | 中古マンション | ||
| 所在地 | 福岡県福岡市東区松田3丁目 | ||
| アクセス |
|
||
| 専有面積 | 壁芯 65.39㎡ | 所在階 | 14階建/10階部分 |
| 主要採光 | 南西向 | バルコニー | 南西向11.11㎡ |
| その他 | |||
| 権利 | 所有権 |
||
| 保証・評価 | |||
| リフォーム | |||
| 総戸数 | 133戸 | 面積 | |
| 築年月 | 1996年(平成8年)04月築 | 建物構造 | SRC |
| 施工会社 | 九州建設株式会社 | ||
| 管理会社 | 環境保全管理センター | 管理方式 | 全部委託 日勤管理 |
| 駐車場 | 【駐車場】空有 料金:7,000円/月 【バイク置き場】あり 【駐輪場】空有 |
||
| 都市計画 | 市街化区域 |
用途地域 | 準工業 |
| 建ぺい/容積率 | 60% / 200% | 土地国土法 | |
| 法令制限 | |||
| 小学区 | 松島小学校 徒歩18分 (約1400m) | 中学区 | 箱崎清松中学校 徒歩9分 (約700m) |
| 現況 | 空 | 引渡 | 即 |
| 管理費 | 5,710円/月 | 修繕積立金 | 8,550円/月 |
| その他費用 | |||
| 備考 | |||
| 物件番号 | 4586753 | 取引態様 | 媒介 |
取扱店舗情報
ハウスドゥ 福岡流通センター 有限会社セゾン 店舗詳細ページへ
| 電話番号 | 092-260-7722 |
|---|---|
| 所在地 | 〒813-0034 福岡県福岡市東区多の津4丁目9-1 103 |
| 営業時間 | 9:00~19:00 |
| 定休日 | 年末年始、GW、お盆休み |
| 宅建免許番号 | 福岡県知事(1)第20006号 |
| アクセス | 店舗への地図はこちら |

来店ご予約
福岡県福岡市東区で価格が似ている物件はこちら
- 福岡県
マイページ物件数 - 8,561件
最近見た物件
福岡県中古マンション新着物件
-
-

-
- 中古マンション
- 1,880万円
-
福岡市東区香住ヶ丘4丁目
-
西鉄貝塚線唐の原駅
-
-
-

-
- 中古マンション
- 880万円
-
北九州市門司区清滝4丁目
-
JR鹿児島本線門司港駅
-
-
-

-
- 中古マンション
- 1,980万円
-
春日市須玖南5丁目
-
西鉄天神大牟田線井尻駅
-
-
-

-
- 中古マンション
- 998万円
-
北九州市小倉北区高尾1丁目
-
JR日豊本線南小倉駅
-
-
-

-
- 中古マンション
- 2,390万円
-
福岡市東区西戸崎2丁目
-
JR香椎線西戸崎駅
-
-
-

-
- 中古マンション
- 750万円
-
北九州市八幡西区南鷹見町
-
JR鹿児島本線折尾駅
-
-
-

-
- 中古マンション
- 2,090万円
-
春日市須玖南5丁目
-
西鉄天神大牟田線井尻駅
-
- お近くの店舗を探す
-
おすすめ物件
-
-

-
- 中古マンション
- 1,790万円
-
北九州市小倉南区葛原1丁目
-
JR日豊本線安部山公園
-
-
-

-
- 中古マンション
- 1,998万円
-
北九州市小倉北区清水3丁目
-
JR日田彦山線南小倉
-
-
-

-
- 中古マンション
- 980万円
-
北九州市八幡東区祝町2丁目
-
JR鹿児島本線スペースワールド
-
-
-

-
- 中古マンション
- 2,380万円
-
久留米市荘島町
-
JR鹿児島本線久留米
-
-
-

-
- 中古マンション
- 3,720万円
-
北九州市八幡東区昭和3丁目
-
JR日豊本線南小倉
-
-
-

-
- 中古マンション
- 1,498万円
-
北九州市門司区二タ松町
-
JR鹿児島本線小森江
-
-
-

-
- 中古マンション
- 2,680万円
-
福岡市東区香住ヶ丘5丁目
-
西鉄貝塚線香椎花園前
-
-
-

-
- 中古マンション
- 2,349万円
-
大野城市下大利1丁目
-
西鉄天神大牟田線下大利
-
-
-

-
- 中古マンション
- 2,798万円
-
大野城市栄町2丁目
-
西鉄天神大牟田線春日原
-
-
-

-
- 中古マンション
- 4,599万円
-
福岡市博多区築港本町
-
福岡市空港線中洲川端
-


































