レーベン宮崎 ONE TOWER 宮崎市高千穂通1丁目の中古マンション
NEW 02.25掲載情報更新日:2026年02月25日 次回更新予定日:2026年03月11日
- 4,850万円
-
- 借入ご希望金額
万円 - 借入期間
年 - 借入金利
% - 月々のお支払い金額
円
- 借入ご希望金額
※ 月々のお支払例は目安の試算となりますので、実際の金額とは異なる場合がございます。詳しくは店舗までお問合わせください。
- 宮崎市高千穂通1丁目
-
JR日豊本線『宮崎』 徒歩7分 (約510m)
JR日豊本線『宮崎神宮』 徒歩33分 (約2590m)
JR日豊本線『南宮崎』 徒歩34分 (約2710m)
『高千穂通2丁目』 徒歩3分 (約210m)
宮崎市高千穂通1丁目マンション | 物件情報
\高層マンション・新築未入居9階/ゲストルーム・フィットネスジムなど共用施設充実♪
▼オススメポイント
■新築未入居
■ガーデンラウンジ、ゲストルーム、フィットネスジムなど
日常の暮らしを彩る多彩な共用施設
■ミラバスビジョン、ミラブルシャワーなど
「水」へのこだわったタカラレーベンオリジナルウォーターシステム
■各階ゴミ置き場設置、浴室テレビなど
先進の心地良さと快適を♪
▼立地
江平小学校 1080m 徒歩14分
宮崎東中学校 1570m 徒歩20分
◆◇当店について◇◆
〇不動産売買仲介専門FCで
店舗数第1位のハウスドゥ加盟店です
安心してご相談ください
物件の設備
- 公営水道
- 公共下水
- 都市ガス
- 給湯
- 食器洗浄乾燥機
- コンロ三口
- カウンターキッチン
- システムキッチン
- バス
- 追焚機能
- 浴室暖房
- 浴室乾燥機
- トイレ
- 温水洗浄便座
- 室内洗濯機置場
- 洗髪洗面化粧台
- 洗面所独立
- オートロック
- モニタ付インターホン
- 防犯カメラ
- 火災警報器/報知機
- LDK15畳以上
- フローリング
- クローゼット
- ウォークインクローゼット
- ウォークインクローゼット2箇所
- シューズボックス
- バルコニー
- 南面バルコニー
- ゲストルーム
- フィットネス施設
- 宅配BOX
- エレベーター2基
物件の特徴
- 管理人日勤
- 南向
- スーパーが近い
- 市街地が近い
物件詳細情報
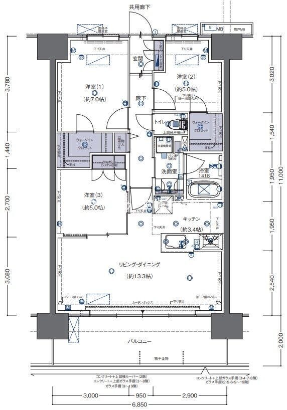
| 価格 | 4,850万円 | 間取り | 3LDK |
|---|---|---|---|
| 物件種別 | 中古マンション | ||
| 所在地 | 宮崎県宮崎市高千穂通1丁目 | ||
| アクセス |
|
||
| 専有面積 | 壁芯 75.35㎡ | 所在階 | 20階建/9階部分 |
| 主要採光 | バルコニー | 南向13.70㎡ | |
| その他 | |||
| 権利 | 所有権 |
||
| 保証・評価 | |||
| リフォーム | |||
| 総戸数 | 93戸 | 面積 | |
| 築年月 | 2026年(令和8年)01月築 | 建物構造 | RC |
| 施工会社 | 飛島建設株式会社 | ||
| 管理会社 | 管理方式 | 全部委託 日勤管理 | |
| 駐車場 | |||
| 都市計画 | 用途地域 | ||
| 建ぺい/容積率 | 土地国土法 | ||
| 法令制限 | |||
| 小学区 | 江平小学校 徒歩14分 (約1080m) | 中学区 | 宮崎東中学校 徒歩20分 (約1570m) |
| 現況 | 空 | 引渡 | 相談 |
| 管理費 | 16,350円/月 | 修繕積立金 | 6,400円/月 |
| その他費用 | |||
| 周辺環境 | 江平小学校 徒歩14分 (約1080m) 宮崎大学教育学部附属小学校 徒歩21分 (約1670m) 宮崎東中学校 徒歩20分 (約1570m) KITENビル 徒歩7分 (約530m) 宮崎駅 徒歩7分 (約510m) アミュプラザみやざき 徒歩8分 (約570m) マックスバリュ橘通西店 徒歩9分 (約670m) スターバックス宮崎青葉店 徒歩14分 (約1110m) 日向学院 徒歩13分 (約980m) セブンイレブン総合体育館前 徒歩15分 (約1150m) |
||
| 備考 | ◎新築未入居 ◎ガーデンラウンジ、ゲストルーム、フィットネスジムあり ◎各階ゴミ置き場設置◎ミラバスビジョン◎ミラブルシャワー◎浴室テレビ ◎駐 車 場 : 78 台(機械式 47 台、平置 31 台) ◎駐 輪 場 : 134 台(二段ラック式(下部スライドラック式)80 台、スライドラック式 44 台、平置 10 台) ◎バ イ ク 置 き 場 : 5 台(小型バイク 5 台(屋根有り)) |
||
| 物件番号 | 4613422 | 取引態様 | 媒介 |
取扱店舗情報
| 電話番号 | 0985-66-0753 |
|---|---|
| 所在地 | 〒880-0872 宮崎県宮崎市永楽町17 |
| 営業時間 | 9:00~18:00 |
| 定休日 | 水曜日、年末年始 |
| 宅建免許番号 | 宮崎県知事(1)第5078号 |
| アクセス | 店舗への地図はこちら |

来店ご予約
- 宮崎県
マイページ物件数 - 1,584件
宮崎県中古マンション新着物件
-
-

-
- 中古マンション
- 4,850万円
-
宮崎市高千穂通1丁目
-
JR日豊本線宮崎駅
-
-
-

-
- 中古マンション
- 4,550万円
-
宮崎市高千穂通1丁目
-
JR日豊本線宮崎駅
-
-
-

-
- 中古マンション
- 1,498万円
-
宮崎市鶴島1丁目
-
JR日豊本線宮崎駅
-
-
-

-
- 中古マンション
- 1,180万円
-
宮崎市中津瀬町
-
JR日豊本線宮崎駅
-
-
-

-
- 中古マンション
- 1,180万円
-
宮崎市中津瀬町
-
JR日豊本線宮崎駅
-
-
-

-
- 中古マンション
- 400万円
-
宮崎市吾妻町
-
JR日豊本線宮崎駅
-
-
-

-
- 中古マンション
- 2,980万円
-
宮崎市橘通東1丁目
-
JR日豊本線宮崎駅
-
- お近くの店舗を探す
-
おすすめ物件
-
-

-
- 中古マンション
- 1,580万円
-
宮崎市大字恒久
-
JR日豊本線南宮崎
-










担当エージェント:ハウスドゥ宮崎中学校前ピア7
◎弊社は不動産売買仲介専門No.1FCブランドHOUSEDOの加盟店です。無理のない返済計画、低金利ネット銀行も含めお客様の状況に合わせた住宅ローンをご提案し安心安全なお取引をサポートいたします。