のむら姪浜ヒルズ 福岡市西区姪の浜2丁目の中古マンション
NEW 03.02掲載情報更新日:2026年03月02日 次回更新予定日:2026年03月16日
- 3,390万円
-
- 借入ご希望金額
万円 - 借入期間
年 - 借入金利
% - 月々のお支払い金額
円
- 借入ご希望金額
※ 月々のお支払例は目安の試算となりますので、実際の金額とは異なる場合がございます。詳しくは店舗までお問合わせください。
- 福岡市西区姪の浜2丁目
-
福岡市空港線『姪浜』 徒歩13分 (約1040m)
福岡市空港線『室見』 徒歩15分 (約1200m)
西鉄バス『姪浜小学校前バス停』 徒歩3分 (約240m)
福岡市西区姪の浜2丁目マンション | 物件情報
物件の設備
- 都市ガス
- 給湯
- コンロ三口
- カウンターキッチン
- システムキッチン
- 温水洗浄便座
- 室内洗濯機置場
- 洗面所独立
- 冷房
- 暖房
- エアコン
- BS
- モニタ付インターホン
- 火災警報器/報知機
- LDK15畳以上
- 天井高2.5m以上
- フローリング張替
- ウォークインクローゼット
- 玄関収納
- 収納スペース
- 押入
- バルコニー
- 2面バルコニー
- 来客用パーキング
- エレベーター2基
- 駐輪場
- バイク置場
物件の特徴
- 管理人日勤
- 24時間有人管理
- 内装リフォーム済
- 南向
- 始発駅
- 2沿線利用可
- 閑静な住宅街
- 眺望良好
- 陽当り良好
物件詳細情報
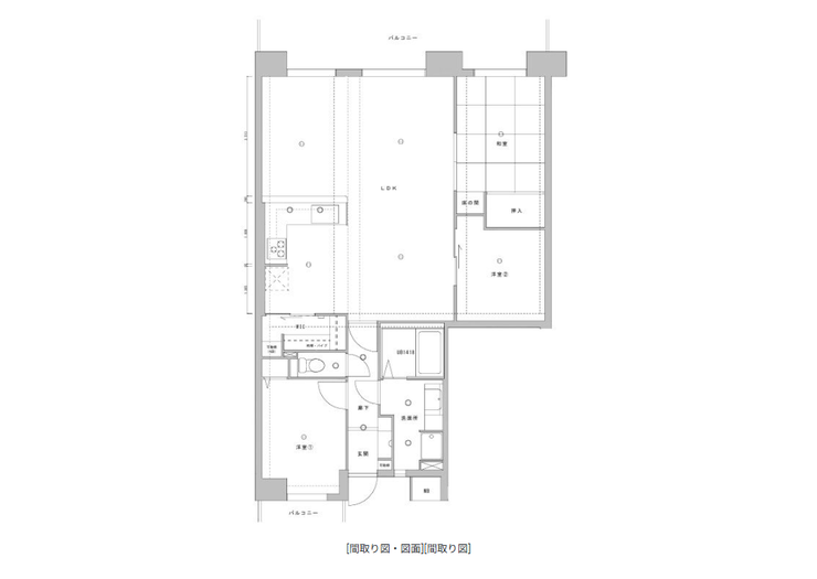
| 価格 | 3,390万円 | 間取り | 3LDK |
|---|---|---|---|
| 物件種別 | 中古マンション | ||
| 所在地 | 福岡県福岡市西区姪の浜2丁目 | ||
| アクセス |
|
||
| 専有面積 | 壁芯 89.20㎡ | 所在階 | 16階建/13階部分 |
| 主要採光 | バルコニー | 南東向17.82㎡ | |
| その他 | |||
| 権利 | 所有権 |
||
| 保証・評価 | |||
| リフォーム | 【水回り】2022年12月 キッチン・浴室・トイレ トイレは2020年頃交換 【内装】2022年02月 全面 ・壁、天井 ・床 ・全室クロス ・建具 ・サッシ 4LDKを3LDK(リビング24畳)へ間取り変更。全面リフォーム |
||
| 総戸数 | 213戸 | 面積 | |
| 築年月 | 1990年(平成2年)06月築 | 建物構造 | SRC |
| 施工会社 | |||
| 管理会社 | 管理方式 | 全部委託 日勤管理 | |
| 駐車場 | 【バイク置き場】あり 【駐輪場】あり |
||
| 都市計画 | 市街化区域 |
用途地域 | 1種住居 |
| 建ぺい/容積率 | 60% / 200% | 土地国土法 | |
| 法令制限 | |||
| 小学区 | 姪浜小学校 徒歩4分 (約260m) | 中学区 | 姪浜中学校 徒歩19分 (約1500m) |
| 現況 | 居住中 | 引渡 | 相談 |
| 管理費 | 10,800円/月 | 修繕積立金 | 18,400円/月 |
| その他費用 | |||
| 備考 | 【設備・仕様】 床の間 【駐車場備考】 近隣確保 260m |
||
| 物件番号 | 4621055 | 取引態様 | 媒介 |
取扱店舗情報
ハウスドゥ 福岡伊都 株式会社ライフサポート 店舗詳細ページへ
| 電話番号 | 092-805-4035 |
|---|---|
| 所在地 | 〒819-0373 福岡県福岡市西区周船寺1-4-8 |
| 営業時間 | 9:00~18:00 |
| 定休日 | 水曜日、年末年始 |
| 宅建免許番号 | 福岡県知事(2)第18874号 |
| アクセス | 店舗への地図はこちら |

来店ご予約
福岡県福岡市西区で価格が似ている物件はこちら
- 福岡県
マイページ物件数 - 8,840件
福岡県中古マンション新着物件
-
-

-
- 中古マンション
- 3,700万円
-
福岡市城南区別府6丁目
-
福岡市七隈線別府駅
-
-
-

-
- 中古マンション
- 2,600万円
-
福岡市南区的場2丁目
-
JR篠栗線博多駅
-
-
-

-
- 中古マンション
- 2,680万円
-
福岡市東区青葉2丁目
-
JR香椎線舞松原駅
-
-
-

-
- 中古マンション
- 2,998万円
-
大野城市栄町2丁目
-
西鉄天神大牟田線春日原駅
-
-
-

-
- 中古マンション
- 550万円
-
北九州市小倉北区皿山町
-
JR日豊本線南小倉駅
-
-
-

-
- 中古マンション
- 3,480万円
-
糸島市波多江駅北4丁目
-
JR筑肥線波多江駅
-
-
-

-
- 中古マンション
- 3,850万円
-
北九州市八幡東区昭和3丁目
-
JR日豊本線南小倉駅
-
- お近くの店舗を探す
-
おすすめ物件
-
-

-
- 中古マンション
- 1,899万円
-
福岡市博多区板付4丁目
-
JR鹿児島本線博多
-
-
-

-
- 中古マンション
- 3,990万円
-
福岡市東区香椎照葉3丁目
-
西鉄貝塚線香椎花園前
-
-
-

-
- 中古マンション
- 2,398万円
-
北九州市戸畑区一枝2丁目
-
JR鹿児島本線九州工大前
-
-
-

-
- 中古マンション
- 3,090万円
-
福岡市東区松田3丁目
-
JR篠栗線柚須
-
-
-

-
- 中古マンション
- 1,890万円
-
福津市中央6丁目
-
JR鹿児島本線福間
-
-
-

-
- 中古マンション
- 570万円
-
北九州市小倉北区金鶏町
-
JR日豊本線南小倉
-
-
-

-
- 中古マンション
- 2,398万円
-
北九州市小倉北区原町2丁目
-
JR日田彦山線南小倉
-
-
-

-
- 中古マンション
- 4,235万円
-
福岡市城南区別府3丁目
-
福岡市七隈線別府
-
-
-

-
- 中古マンション
- 1,980万円
-
福岡市早良区城西2丁目
-
福岡市空港線西新
-
-
-

-
- 中古マンション
- 3,298万円
-
北九州市小倉南区下曽根1丁目
-
JR日豊本線下曽根
-























