コープ野村亀戸 東棟 江東区亀戸1丁目の中古マンション
NEW 03.07掲載情報更新日:2026年03月07日 次回更新予定日:2026年03月21日
- 6,480万円
-
- 借入ご希望金額
万円 - 借入期間
年 - 借入金利
% - 月々のお支払い金額
円
- 借入ご希望金額
※ 月々のお支払例は目安の試算となりますので、実際の金額とは異なる場合がございます。詳しくは店舗までお問合わせください。
- 江東区亀戸1丁目
-
JR総武・中央緩行線『亀戸』 徒歩7分 (約560m)
JR総武・中央緩行線『錦糸町』 徒歩9分 (約720m)
東京メトロ半蔵門線『錦糸町』 徒歩8分 (約640m)
江東区亀戸1丁目マンション | 物件情報
【亀戸】駅徒歩7分◆新規リノベ-ション◆安心の新耐震基準◆南向き・3LDK◆内見予約受付中!
○スーパーやコンビニなど徒歩圏内!充実の周辺環境
○安心の管理体制
○住宅ローン控除対象
***皆様のお問い合わせをお待ちしております!***
<弊社の営業時間9:30~18:30>
◆お電話でのお問い合わせは0120-666-498におかけください。
インターネットからのお問い合わせでもご対応可能です。
◆また、その他にご条件に近い物件も合わせてご紹介させていただくことも可能です。
弊社ホームページに掲載されていない物件も、ご紹介可能です。
◆ローンに関するご相談もお受けいたします。
どうぞお気軽にお問い合わせください。
物件の設備
- 公営水道
- 公共下水
- 都市ガス
- 給湯
- コンロ三口
- ガスオーブン
- カウンターキッチン
- システムキッチン
- ユニットバス
- シャワー
- トイレ
- B/T別室
- 室内洗濯機置場
- 洗面所独立
- 全室フローリング
- フローリング張替
- クローゼット2箇所
- 納戸
- シューズボックス
- バルコニー
- 2面バルコニー
- 南面バルコニー
- エレベーター
物件の特徴
- 管理人日勤
- 内装リフォーム済
- 内装リフォーム後渡
- 南向
- 閑静な住宅街
- 眺望良好
- 通風良好
- 陽当り良好
- 最上階
- 即入居可
- ペット対応
物件詳細情報
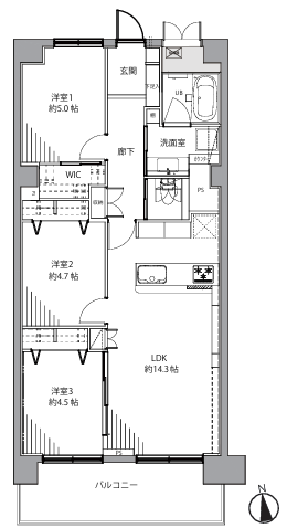
| 価格 | 6,480万円 | 間取り | 3LDK |
|---|---|---|---|
| 物件種別 | 中古マンション | ||
| 所在地 | 東京都江東区亀戸1丁目 | ||
| アクセス |
|
||
| 専有面積 | 壁芯 72.00㎡ | 所在階 | 13階建/2階部分 |
| 主要採光 | 南向 | バルコニー | 南向8.34㎡ |
| その他 | |||
| 権利 | 所有権 |
||
| 保証・評価 | |||
| リフォーム | 【水回り】2026年03月 キッチン・浴室・トイレ・洗面 【内装】2026年03月 壁、天井 ・床 ・全室クロス ・建具 |
||
| 総戸数 | 426戸 | 面積 | |
| 築年月 | 1982年(昭和57年)06月築 | 建物構造 | SRC |
| 施工会社 | |||
| 管理会社 | 管理方式 | 全部委託 日勤管理 | |
| 駐車場 | 【駐車場】空無 |
||
| 都市計画 | 用途地域 | ||
| 建ぺい/容積率 | 土地国土法 | ||
| 法令制限 | |||
| 小学区 | 中学区 | ||
| 現況 | 空 | 引渡 | 即 |
| 管理費 | 6,320円/月 | 修繕積立金 | 20,780円/月 |
| その他費用 | |||
| 周辺環境 | クイーンズ伊勢丹亀戸店 徒歩9分 (約650m) カメイドクロック 徒歩11分 (約850m) 成城石井SELECTアトレ亀戸店 徒歩11分 (約860m) セブンイレブン江東西大島駅西店 徒歩15分 (約1200m) |
||
| 備考 | |||
| 物件番号 | 4626850 | 取引態様 | 媒介 |
取扱店舗情報
ハウスドゥ 江東区役所前 Keep up home株式会社 店舗詳細ページへ
| 電話番号 | 03-6666-0705 |
|---|---|
| 所在地 | 〒135-0016 東京都江東区東陽5丁目30-16 とびたビル5F |
| 営業時間 | 10:00~18:30 |
| 定休日 | 水曜日 |
| 宅建免許番号 | 東京都知事(1)第107913号 |
| アクセス | 店舗への地図はこちら |

来店ご予約
東京都江東区で価格が似ている物件はこちら
- 東京都
マイページ物件数 - 5,194件
最近見た物件
-
-

-
- 中古マンション
- 1,390万円
-
福岡市博多区奈良屋町
-
福岡市箱崎線呉服町
-
-
-

-
- 新築一戸建て
- 4,380万円
-
名古屋市緑区潮見が丘2丁目
-
名鉄名古屋本線鳴海
-
東京都中古マンション新着物件
-
-

-
- 中古マンション
- 2,298万円
-
葛飾区東金町6丁目
-
JR千代田・常磐緩行線金町駅
-
-
-

-
- 中古マンション
- 3,890万円
-
八王子市松木
-
京王相模原線京王堀之内駅
-
-
-

-
- 中古マンション
- 3,480万円
-
練馬区石神井町3丁目
-
西武池袋・豊島線石神井公園駅
-
-
-

-
- 収益
- 740万円
-
足立区大谷田5丁目
-
東京メトロ千代田線北綾瀬駅
-
-
-

-
- 中古マンション
- 4,780万円
-
新宿区高田馬場1丁目
-
東京メトロ副都心線西早稲田駅
-
-
-

-
- 収益
- 6,380万円
-
大田区蒲田5丁目
-
JR京浜東北・根岸線蒲田駅
-
-
-

-
- 中古マンション
- 1億3,800万円
-
中央区東日本橋3丁目
-
都営浅草線東日本橋駅
-
- お近くの店舗を探す
-
おすすめ物件
-
-

-
- 中古マンション
- 450万円
-
日野市南平1丁目
-
京王線高幡不動
-
-
-

-
- 中古マンション
- 3,580万円
-
板橋区前野町4丁目
-
都営三田線志村坂上
-
-
-

-
- 中古マンション
- 4,580万円
-
練馬区上石神井2丁目
-
西武新宿線上石神井
-
-
-

-
- 中古マンション
- 9,198万円
-
葛飾区新宿6丁目
-
JR千代田・常磐緩行線金町
-
-
-

-
- 中古マンション
- 2,890万円
-
足立区大谷田4丁目
-
東京メトロ千代田線北綾瀬
-
-
-

-
- 中古マンション
- 1億3,800万円
-
世田谷区桜上水5丁目
-
京王線桜上水
-
-
-

-
- 中古マンション
- 1,870万円
-
練馬区関町北2丁目
-
西武新宿線武蔵関
-
-
-

-
- 中古マンション
- 3,080万円
-
足立区花畑5丁目
-
東武伊勢崎・大師線谷塚
-
-
-

-
- 中古マンション
- 3,680万円
-
葛飾区亀有2丁目
-
JR千代田・常磐緩行線亀有
-
-
-

-
- 中古マンション
- 6,780万円
-
練馬区立野町
-
西武新宿線武蔵関
-









