ソフィアタワー勝どき 中央区勝どき3丁目の中古マンション
NEW 03.10掲載情報更新日:2026年03月10日 次回更新予定日:2026年03月24日
- 1億3,300万円
-
- 借入ご希望金額
万円 - 借入期間
年 - 借入金利
% - 月々のお支払い金額
円
- 借入ご希望金額
※ 月々のお支払例は目安の試算となりますので、実際の金額とは異なる場合がございます。詳しくは店舗までお問合わせください。
- 中央区勝どき3丁目
-
都営大江戸線『勝どき』 徒歩5分 (約400m)
東京メトロ有楽町線『月島』 徒歩15分 (約1200m)
東京メトロ日比谷線『築地』 徒歩16分 (約1280m)
中央区勝どき3丁目マンション | 物件情報
南東角部屋のため採光良好◆専有面積約90㎡◆内見予約お待ちしております!
●ペットと一緒に暮らせます
●コンシェルジュサービス
●トランクルーム
***皆様のお問い合わせをお待ちしております!***
<弊社の営業時間9:30~18:30>
◆当物件以外に、ご条件に近い物件も合わせてご紹介させていただくことも可能です。
弊社ホームページに掲載されていない物件も、ご紹介可能です。
◆ローンに関するご相談もお受けいたします。
どうぞお気軽にお問い合わせください。
物件の設備
- 公営水道
- 公共下水
- 都市ガス
- 給湯
- システムキッチン
- ユニットバス
- シャワー
- トイレ
- 温水洗浄便座
- B/T別室
- 室内洗濯機置場
- 洗面所独立
- 床暖房
- オートロック
- モニタ付インターホン
- 防犯カメラ
- 全室フローリング
- クローゼット2箇所
- ウォークインクローゼット
- シューズボックス
- バルコニー
- 南面バルコニー
- 宅配BOX
- エレベーター
物件の特徴
- 管理人日勤
- 24時間有人管理
- 角部屋
- 3沿線以上利用可
- 海に近い
- 閑静な住宅街
- 眺望良好
- 通風良好
- 陽当り良好
- 24時間ゴミ出可
- 即入居可
- ペット対応
- コンシェルジュサービス
物件詳細情報
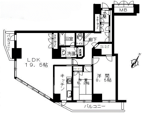
| 価格 | 1億3,300万円 | 間取り | 2LDK |
|---|---|---|---|
| 物件種別 | 中古マンション | ||
| 所在地 | 東京都中央区勝どき3丁目 | ||
| アクセス |
|
||
| 専有面積 | 壁芯 90.00㎡ | 所在階 | 23階建/9階部分 |
| 主要採光 | バルコニー | 南向10.58㎡ | |
| その他 | |||
| 権利 | 所有権 |
||
| 保証・評価 | |||
| リフォーム | |||
| 総戸数 | 140戸 | 面積 | |
| 築年月 | 2000年(平成12年)02月築 | 建物構造 | RC |
| 施工会社 | |||
| 管理会社 | 管理方式 | 全部委託 日勤管理 | |
| 駐車場 | |||
| 都市計画 | 用途地域 | 2種住居 | |
| 建ぺい/容積率 | 土地国土法 | ||
| 法令制限 | |||
| 小学区 | 中学区 | ||
| 現況 | 空 | 引渡 | 即 |
| 管理費 | 23,110円/月 | 修繕積立金 | 22,950円/月 |
| その他費用 | |||
| 周辺環境 | トリトンスクエア 徒歩14分 (約1050m) 聖路加国際病院 徒歩17分 (約1360m) |
||
| 備考 | |||
| 物件番号 | 4631414 | 取引態様 | 媒介 |
取扱店舗情報
ハウスドゥ 江東区役所前 Keep up home株式会社 店舗詳細ページへ
| 電話番号 | 03-6666-0705 |
|---|---|
| 所在地 | 〒135-0016 東京都江東区東陽5丁目30-16 とびたビル5F |
| 営業時間 | 10:00~18:30 |
| 定休日 | 水曜日 |
| 宅建免許番号 | 東京都知事(1)第107913号 |
| アクセス | 店舗への地図はこちら |

来店ご予約
- 東京都
マイページ物件数 - 5,319件
最近見た物件
-
-

-
- 中古一戸建て
- 5,480万円
-
大阪市城東区東中浜2丁目
-
大阪市中央線緑橋
-
-
-

-
- 新築一戸建て
- 3,299万円
-
北葛飾郡松伏町大字松伏
-
東武伊勢崎・大師線北越谷
-
-
-

-
- 新築一戸建て
- 5,798万円
-
豊田市花園町才兼
-
名鉄三河線三河八橋
-
東京都中古マンション新着物件
-
-

-
- 中古マンション
- 9,998万円
-
足立区西新井栄町1丁目
-
東武伊勢崎・大師線西新井駅
-
-
-

-
- 中古マンション
- 3,480万円
-
世田谷区弦巻2丁目
-
東急田園都市線駒沢大学駅
-
-
-

-
- 中古マンション
- 3,180万円
-
足立区東和5丁目
-
東京メトロ千代田線北綾瀬駅
-
-
-

-
- 中古マンション
- 5,999万円
-
世田谷区玉川3丁目
-
東急大井町線二子玉川駅
-
-
-

-
- 中古マンション
- 2,880万円
-
世田谷区等々力1丁目
-
東急大井町線尾山台駅
-
-
-

-
- 中古マンション
- 4,980万円
-
世田谷区北沢3丁目
-
小田急小田原線東北沢駅
-
-
-

-
- 中古マンション
- 330万円
-
日野市大字日野
-
JR中央本線日野駅
-
- お近くの店舗を探す
-
おすすめ物件
-
-

-
- 中古マンション
- 2億800万円
-
世田谷区桜上水4丁目
-
京王線桜上水
-
-
-

-
- 中古マンション
- 3,980万円
-
葛飾区亀有2丁目
-
JR千代田・常磐緩行線亀有
-
-
-

-
- 中古マンション
- 2,880万円
-
葛飾区水元3丁目
-
JR千代田・常磐緩行線金町
-
-
-

-
- 中古マンション
- 3,980万円
-
世田谷区成城3丁目
-
小田急小田原線成城学園前
-
-
-

-
- 中古マンション
- 1,870万円
-
練馬区関町北2丁目
-
西武新宿線武蔵関
-
-
-

-
- 中古マンション
- 3,199万円
-
荒川区東尾久5丁目
-
都電荒川線熊野前
-
-
-

-
- 中古マンション
- 4,798万円
-
葛飾区金町1丁目
-
JR千代田・常磐緩行線金町
-
-
-

-
- 中古マンション
- 2,890万円
-
足立区大谷田4丁目
-
東京メトロ千代田線北綾瀬
-
-
-

-
- 中古マンション
- 1,250万円
-
練馬区関町北2丁目
-
西武新宿線武蔵関
-
-
-

-
- 中古マンション
- 2,480万円
-
狛江市岩戸南1丁目
-
小田急小田原線喜多見
-










