クラウンコーポラス 大田区蒲田1丁目の中古マンション
掲載情報更新日:2026年04月20日 次回更新予定日:2026年05月04日
- 6,998万円
-
- 借入ご希望金額
万円 - 借入期間
年 - 借入金利
% - 月々のお支払い金額
円
- 借入ご希望金額
※ 月々のお支払例は目安の試算となりますので、実際の金額とは異なる場合がございます。詳しくは店舗までお問合わせください。
- 大田区蒲田1丁目
-
JR京浜東北・根岸線『蒲田』 徒歩12分 (約960m)
京急本線『梅屋敷』 徒歩9分 (約720m)
京急本線『京急蒲田』 徒歩13分 (約1040m)
大田区蒲田1丁目マンション | 物件情報
物件の設備
- 給湯
- コンロ三口
- システムキッチン
- バス
- ユニットバス
- 追焚機能
- 浴室乾燥機
- トイレ
- 温水洗浄便座
- B/T別室
- 室内洗濯機置場
- 洗髪洗面化粧台
- 洗面所独立
- モニタ付インターホン
- フローリング張替
物件の特徴
- 内装リフォーム済
- 即入居可
- ペット不可
- 事務所不可
物件詳細情報
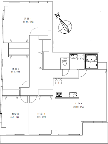
| 価格 | 6,998万円 | 間取り | 4LDK |
|---|---|---|---|
| 物件種別 | 中古マンション | ||
| 所在地 | 東京都大田区蒲田1丁目7-15 | ||
| アクセス |
|
||
| 専有面積 | 壁芯 116.93㎡ | 所在階 | 4階建/1階部分 |
| 主要採光 | 南西向 | バルコニー | |
| その他 | |||
| 権利 | 所有権 |
||
| 保証・評価 | |||
| リフォーム | 【水回り】2026年05月予定 キッチン・浴室・トイレ・洗面・給湯器 交換 【内装】2026年05月予定 全面 ・壁、天井 ・床 ・全室クロス ・建具 ・サッシ 交換 【その他】2026年05月予定 ・洗濯防水パン設置・給湯交換・録画機能付カラーTVモニター付インターフォン交換・ダウンライト新設・スイッチパネル交換・配管更新・火災警報器交換・カーテンレール交換 |
||
| 総戸数 | 15戸 | 面積 | |
| 築年月 | 1981年(昭和56年)06月築 | 建物構造 | RC |
| 施工会社 | |||
| 管理会社 | 管理方式 | 自主管理 なし(不在) | |
| 駐車場 | |||
| 都市計画 | 用途地域 | ||
| 建ぺい/容積率 | 土地国土法 | ||
| 法令制限 | |||
| 小学区 | 蒲田小学校 徒歩5分 (約400m) | 中学区 | 蒲田中学校 徒歩7分 (約550m) |
| 現況 | 空 | 引渡 | 即 |
| 管理費 | 修繕積立金 | 31,223円/月 | |
| その他費用 | |||
| 備考 | ◆キッチン:システムキッチン交換※浄水器付水栓 ◆浴室:追焚・浴室乾燥機能付ユニットバス交換 ◆トイレ:温水洗浄機能付トイレ交換 ◆洗面台:洗面化粧台交換 ◆床材:全室フローリング張替/玄関・水廻りフロアタイル張替 ◆クロス:壁・天井全面張替 ◆建具:全室交換 ◆その他:洗濯防水パン設置・給湯交換・録画機能付カラーTVモニター付インターフォン交換・ダウンライト新設・スイッチパネル交換・配管更新・火災警報器交換・カーテンレール交換 |
||
| 物件番号 | 4632431 | 取引態様 | 媒介 |
取扱店舗情報
| 電話番号 | 03-5544-9070 |
|---|---|
| 所在地 | 〒106-0032 東京都港区六本木5丁目18番2号 大昌第2ビル6階 |
| 営業時間 | 10:00~18:00 |
| 定休日 | 水曜日、日曜日、年末年始 |
| 宅建免許番号 | 東京都知事(1)第111695号 |
| アクセス | 店舗への地図はこちら |

来店ご予約
東京都大田区で価格が似ている物件はこちら
- 東京都
マイページ物件数 - 5,853件
最近見た物件
-
-

-
- 土地
- 700万円
-
尾道市新高山2丁目
-
JR山陽本線東尾道
-
-
-

-
- 中古マンション
- 1,480万円
-
名古屋市緑区滝ノ水3丁目
-
名古屋市桜通線神沢
-
-
-

-
- 土地
- 90万円
-
尾道市向島町
-
田尻バス停
-
東京都中古マンション新着物件
-
-

-
- 中古マンション
- 8,480万円
-
中央区日本橋人形町1丁目
-
東京メトロ日比谷線人形町駅
-
-
-

-
- 中古マンション
- 1,280万円
-
八王子市元横山町1丁目
-
JR中央本線八王子駅
-
-
-

-
- 中古マンション
- 4,990万円
-
練馬区石神井台8丁目
-
西武新宿線武蔵関駅
-
-
-

-
- 中古マンション
- 1,790万円
-
日野市東豊田3丁目
-
JR中央本線豊田駅
-
-
-

-
- 中古マンション
- 4,290万円
-
葛飾区奥戸9丁目
-
JR総武・中央緩行線小岩駅
-
-
-

-
- 中古マンション
- 2,790万円
-
足立区東保木間1丁目
-
つくばエクスプレス六町駅
-
-
-

-
- 中古マンション
- 8,860万円
-
江戸川区西葛西2丁目
-
東京メトロ東西線西葛西駅
-
- お近くの店舗を探す
-
おすすめ物件
-
-

-
- 中古マンション
- 4,390万円
-
練馬区南大泉4丁目
-
西武池袋・豊島線大泉学園
-
-
-

-
- 中古マンション
- 5,298万円
-
練馬区関町南2丁目
-
西武新宿線武蔵関
-
-
-

-
- 中古マンション
- 5,699万円
-
大田区大森本町2丁目
-
京急本線平和島
-
-
-

-
- 中古マンション
- 2,899万円
-
足立区鹿浜6丁目
-
日暮里舎人ライナー谷在家
-
-
-

-
- 中古マンション
- 3,990万円
-
葛飾区東金町6丁目
-
JR千代田・常磐緩行線金町
-
-
-

-
- 中古マンション
- 3,280万円
-
足立区西新井4丁目
-
日暮里舎人ライナー谷在家
-
-
-

-
- 中古マンション
- 3,580万円
-
練馬区関町南4丁目
-
西武新宿線武蔵関
-
-
-

-
- 中古マンション
- 3,999万円
-
練馬区上石神井3丁目
-
西武新宿線上石神井
-
-
-

-
- 中古マンション
- 2,830万円
-
葛飾区水元4丁目
-
JR千代田・常磐緩行線金町
-
-
-

-
- 中古マンション
- 2,890万円
-
足立区大谷田4丁目
-
東京メトロ千代田線北綾瀬
-





