アップルウェイ小平パート2 小平市栄町2丁目の中古マンション
NEW 03.27掲載情報更新日:2026年03月27日 次回更新予定日:2026年04月10日
- 2,390万円
-
- 借入ご希望金額
万円 - 借入期間
年 - 借入金利
% - 月々のお支払い金額
円
- 借入ご希望金額
※ 月々のお支払例は目安の試算となりますので、実際の金額とは異なる場合がございます。詳しくは店舗までお問合わせください。
- 小平市栄町2丁目
-
西武国分寺線『小川』 徒歩20分 (約1600m)
西武拝島線『東大和市』 徒歩21分 (約1680m)
小平市栄町2丁目マンション | 物件情報
最上階で南向き物件。大好きなワンちゃんネコちゃんと一緒に暮らしてみませんか
最上階・南向き5階の開放感あふれる住まい。たっぷりの陽光が差し込み、いつもの日常をやさしく照らします。何気ない毎日が少し特別に変わる、明るく心地よい暮らしをここから。
物件の設備
- 公営水道
- 下水道
- 都市ガス
- 浄水器
- コンロ三口
- グリル
- システムキッチン
- オープンキッチン
- バス
- ユニットバス
- オートバス
- 追焚機能
- 浴室暖房
- シャワー
- トイレ
- 温水洗浄便座
- B/T別室
- 室内洗濯機置場
- 洗髪洗面化粧台
- 洗面所独立
- エアコン
- 照明器具
- CATVインターネット
- 人感照明センサー
- オートロック
- モニタ付インターホン
- 和室
- 2面採光
- 全室2面採光
- フローリング
- クローゼット
- クローゼット2箇所
- 押入
- 全居室収納
- シューズボックス
- バルコニー
- 2面バルコニー
- 両面バルコニー
- 3面バルコニー
- ルーフバルコニー
- 南面バルコニー
- 宅配BOX
- エレベーター
- 駐輪場
- バイク置場
物件の特徴
- 管理人巡回
- 角部屋
- 南向
- 2沿線利用可
- 最上階
- 外観タイル張
- ペット相談
- 小型犬可
- 猫可
物件詳細情報
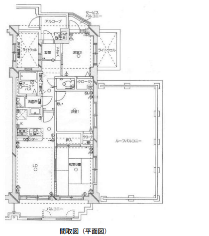
| 価格 | 2,390万円 | 間取り | 3LDK |
|---|---|---|---|
| 物件種別 | 中古マンション | ||
| 所在地 | 東京都小平市栄町2丁目 | ||
| アクセス |
|
||
| 専有面積 | 内法 56.94㎡ | 所在階 | 5階建/5階部分 |
| 主要採光 | 南向 | バルコニー | 南向8.25㎡ |
| その他 | |||
| 権利 | 所有権 |
||
| 保証・評価 | |||
| リフォーム | |||
| 総戸数 | 17戸 | 面積 | |
| 築年月 | 1997年(平成9年)08月築 | 建物構造 | RC |
| 施工会社 | |||
| 管理会社 | 管理方式 | 全部委託 巡回管理 | |
| 駐車場 | 【駐車場】空無 【バイク置き場】空無 料金:200円/月 【駐輪場】あり 料金: 100円/月 |
||
| 都市計画 | 市街化区域 |
用途地域 | 1種中高 |
| 建ぺい/容積率 | 60% / 200% | 土地国土法 | |
| 法令制限 | |||
| 小学区 | 中学区 | ||
| 現況 | 空 | 引渡 | 相談 |
| 管理費 | 15,000円/月 | 修繕積立金 | 15,000円/月 |
| その他費用 | |||
| 周辺環境 | 栄町記念公園 徒歩2分 (約100m) 小平神明こども園 徒歩3分 (約220m) コープみらい コープ小川西町店 徒歩5分 (約330m) 小平市消防団第1分団 徒歩7分 (約490m) 小平市立小平第13小学校 徒歩8分 (約640m) 小平警察署上宿交番 徒歩8分 (約620m) 緑成会成育園 徒歩13分 (約980m) 小平市立小平第5中学校 徒歩14分 (約1050m) スギ薬局小平西店 徒歩13分 (約970m) 小平上宿郵便局 徒歩7分 (約550m) |
||
| 備考 | ・ペット相談:小型犬、ネコ可 瑕疵保障(不動産会社独自)付:保証料買主負担なし ・設備保証付 |
||
| 物件番号 | 4654028 | 取引態様 | 媒介 |
取扱店舗情報
ハウスドゥ 小平青梅街道駅東 株式会社サニーエステート 店舗詳細ページへ
| 電話番号 | 042-313-6808 |
|---|---|
| 所在地 | 〒187-0042 東京都小平市仲町652-3 マ・メゾンビル1階 |
| 営業時間 | 9:00~18:00 |
| 定休日 | 火曜日、水曜日 |
| 宅建免許番号 | 東京都知事(1)第113474号 |
| アクセス | 店舗への地図はこちら |

来店ご予約
東京都小平市で価格が似ている物件はこちら
- 東京都
マイページ物件数 - 5,521件
最近見た物件
-
-

-
- 中古一戸建て
- 5,480万円
-
吉川市美南4丁目
-
JR武蔵野線吉川美南
-
-
-

-
- 新築一戸建て
- 2,880万円
-
四日市市智積町
-
近鉄湯の山線桜
-
-
-

-
- 中古マンション
- 1,498万円
-
名古屋市瑞穂区大喜町1丁目
-
名鉄名古屋本線堀田
-
東京都中古マンション新着物件
- お近くの店舗を探す
-
おすすめ物件
-
-

-
- 中古マンション
- 1億4,500万円
-
大田区蒲田4丁目
-
京急本線京急蒲田
-
-
-

-
- 中古マンション
- 4,798万円
-
葛飾区金町1丁目
-
京成金町線京成金町
-
-
-

-
- 中古マンション
- 4,298万円
-
八王子市子安町1丁目
-
JR中央本線八王子
-
-
-

-
- 中古マンション
- 4,190万円
-
葛飾区柴又4丁目
-
京成金町線柴又
-
-
-

-
- 中古マンション
- 7,699万円
-
大田区大森西5丁目
-
京急本線大森町
-
-
-

-
- 中古マンション
- 3,680万円
-
千葉市中央区千葉港
-
千葉都市モノレール市役所前
-
-
-

-
- 中古マンション
- 4,098万円
-
大田区西六郷1丁目
-
京急本線雑色
-
-
-

-
- 中古マンション
- 1,950万円
-
八王子市高倉町
-
JR八高線北八王子
-
-
-

-
- 中古マンション
- 6,190万円
-
大田区大森南2丁目
-
京急空港線大鳥居
-
-
-

-
- 中古マンション
- 6,499万円
-
大田区羽田6丁目
-
京急空港線天空橋
-











担当エージェント:栗原 渉
「ハウスドゥ小平青梅街道駅東」は、小平市を中心に地域密着で不動産売買を行う会社です。青梅街道沿いに店舗を構え、駐車場も完備しております。初めてのマイホーム購入でも安心いただけるよう、資金計画から物件選び、住宅ローンのご相談まで丁寧に対応いたします。店内にはキッズスペースもご用意しており、ご家族で安心してご来店いただけます。来店予約も承っておりますので、お気軽にご相談ください。