シーズ西日暮里 足立区扇3丁目の中古マンション
NEW 04.03掲載情報更新日:2026年04月03日 次回更新予定日:2026年04月17日
- 3,280万円
-
- 借入ご希望金額
万円 - 借入期間
年 - 借入金利
% - 月々のお支払い金額
円
- 借入ご希望金額
※ 月々のお支払例は目安の試算となりますので、実際の金額とは異なる場合がございます。詳しくは店舗までお問合わせください。
- 足立区扇3丁目
-
日暮里舎人ライナー『扇大橋』 徒歩2分 (約160m)
日暮里舎人ライナー『高野』 徒歩4分 (約320m)
足立区扇3丁目マンション | 物件情報
駅徒歩2分の好立地×角部屋!陽当たり・眺望良好の売主物件
日暮里舎人ライナー「扇大橋」駅徒歩2分、「高野」駅徒歩4分の好立地に位置するマンション。通勤・通学に便利なアクセスが魅力です。角部屋につき陽当たり・通風・眺望良好で、明るく開放感のある住空間を実現。専有面積56.96㎡、バルコニー6.6㎡とゆとりのある間取りです。新耐震基準適合で安心の構造、さらに2019年には大規模修繕工事が実施されており、管理体制も良好です。総戸数39戸の落ち着いた住環境で、管理は日本ハウズイング株式会社の日勤管理。現在空室のため即内覧可能です。売主物件につき仲介手数料不要も大きな魅力です。
物件の設備
- 公営水道
- 公共下水
- 都市ガス
- 給湯
- コンロ三口
- ユニットバス
- トイレ
- 室内洗濯機置場
- 洗髪洗面化粧台
- 収納スペース
- 押入
- バルコニー
- エレベーター
物件の特徴
- 管理人日勤
- 角部屋
- 2沿線利用可
- 駅まで平坦
- スーパーが近い
- 閑静な住宅街
- 周辺交通量少なめ
- 市街地が近い
- 都市近郊
- 眺望良好
- 通風良好
- 陽当り良好
- 平坦地
- 即入居可
物件詳細情報
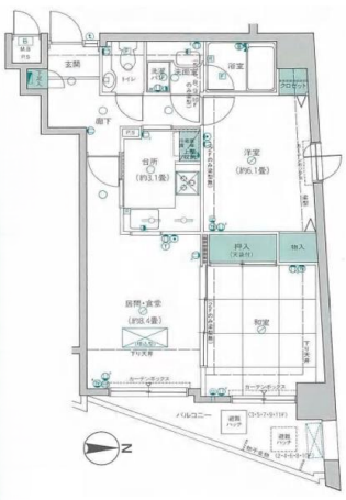
| 価格 | 3,280万円 | 間取り | 2LDK |
|---|---|---|---|
| 物件種別 | 中古マンション | ||
| 所在地 | 東京都足立区扇3丁目 | ||
| アクセス |
|
||
| 専有面積 | 壁芯 56.96㎡ | 所在階 | 11階建/9階部分 |
| 主要採光 | 東向 | バルコニー | 東向6.60㎡ |
| その他 | |||
| 権利 | 所有権 |
||
| 保証・評価 | |||
| リフォーム | |||
| 総戸数 | 面積 | ||
| 築年月 | 1992年(平成4年)04月築 | 建物構造 | SRC |
| 施工会社 | |||
| 管理会社 | 管理方式 | 全部委託 日勤管理 | |
| 駐車場 | |||
| 都市計画 | 用途地域 | 準工業 | |
| 建ぺい/容積率 | 土地国土法 | ||
| 法令制限 | |||
| 小学区 | 興本小学校 徒歩12分 (約900m) | 中学区 | 扇中学校 徒歩13分 (約1000m) |
| 現況 | 空 | 引渡 | 即 |
| 管理費 | 8,550円/月 | 修繕積立金 | 12,890円/月 |
| その他費用 | |||
| 周辺環境 | 扇大橋内科クリニック 徒歩3分 (約240m) セブンイレブン扇大橋駅前店 徒歩4分 (約250m) 足立区立扇小学校 徒歩5分 (約350m) 橋本歯科医院 徒歩5分 (約380m) 興本扇学園 徒歩9分 (約650m) 足立区立江北桜中学校 徒歩10分 (約780m) 足立区立第六中学校 徒歩15分 (約1160m) choco ZAP 本木東町店 徒歩15分 (約1160m) 本木小学校 徒歩15分 (約1150m) |
||
| 備考 | 新耐震基準適合のマンションで安心の構造。日暮里舎人ライナー「扇大橋」駅徒歩2分、「高野」駅徒歩4分と2駅利用可能な好立地です。角部屋につき陽当たり・通風・眺望良好。2019年に大規模修繕工事実施済みで管理体制も良好です。専有面積56.96㎡、バルコニー6.6㎡のゆとりある住空間。総戸数39戸、管理会社は日本ハウズイング株式会社、日勤管理で安心してお住まいいただけます。現在空室のため即内覧可能。売主物件につき仲介手数料不要です。 | ||
| 物件番号 | 4663948 | 取引態様 | 媒介 |
取扱店舗情報
ハウスドゥ 足立平野環七通り 株式会社CiansStep 店舗詳細ページへ
| 電話番号 | 03-5809-6190 |
|---|---|
| 所在地 | 〒121-0076 東京都足立区平野1丁目15-27 |
| 営業時間 | 9:00~18:00 |
| 定休日 | 火曜日、水曜日 |
| 宅建免許番号 | 東京都知事(1)第113026号 |
| アクセス | 店舗への地図はこちら |

来店ご予約
東京都足立区で価格が似ている物件はこちら
- 東京都
マイページ物件数 - 5,502件
東京都中古マンション新着物件
- お近くの店舗を探す
-
おすすめ物件
-
-

-
- 中古マンション
- 2,180万円
-
日野市大坂上4丁目
-
JR中央本線日野
-
-
-

-
- 中古マンション
- 1,790万円
-
足立区東和5丁目
-
東京メトロ千代田線北綾瀬
-
-
-

-
- 中古マンション
- 2,980万円
-
葛飾区水元2丁目
-
JR千代田・常磐緩行線金町
-
-
-

-
- 中古マンション
- 3,980万円
-
大田区大森中1丁目
-
京急本線梅屋敷
-
-
-

-
- 中古マンション
- 4,580万円
-
練馬区上石神井2丁目
-
西武新宿線上石神井
-
-
-

-
- 中古マンション
- 1億9,800万円
-
世田谷区桜上水4丁目
-
京王線桜上水
-
-
-

-
- 中古マンション
- 4,098万円
-
大田区西六郷1丁目
-
京急本線雑色
-
-
-

-
- 中古マンション
- 850万円
-
青梅市長淵7丁目
-
JR青梅線青梅
-
-
-

-
- 中古マンション
- 4,598万円
-
葛飾区金町1丁目
-
JR千代田・常磐緩行線金町
-
-
-

-
- 中古マンション
- 6,780万円
-
練馬区立野町
-
西武新宿線武蔵関
-











担当エージェント:穴井一樹
本物件は駅徒歩2分という利便性と、角部屋ならではの開放感を兼ね備えたおすすめ物件です。実際に室内をご覧いただくと、陽当たりや眺望の良さをしっかりご体感いただけます。2019年に大規模修繕も実施されており、建物管理も良好なため、安心して長くお住まいいただける点も魅力です。また売主物件のため、仲介手数料がかからず、初期費用を抑えられる点も大きなメリットです。空室につきご都合に合わせてご内覧可能ですので、ぜひお気軽にお問い合わせください。