北九州市小倉南区湯川3丁目の新築戸建
掲載情報更新日:2026年01月02日 次回更新予定日:2026年01月16日
- 2,998万円
-
- 借入ご希望金額
万円 - 借入期間
年 - 借入金利
% - 月々のお支払い金額
円
- 借入ご希望金額
※ 月々のお支払例は目安の試算となりますので、実際の金額とは異なる場合がございます。詳しくは店舗までお問合わせください。
- 北九州市小倉南区湯川3丁目
-
JR日豊本線『安部山公園』 徒歩7分 (約560m)
北九州市小倉南区湯川3丁目一戸建て | 物件情報
リビングと洋室をつなげて20帖以上の空間としてもお使いいただけます♪
※マウスを乗せると画像が切り替わります。
●内覧受付中!お気軽にお問合せください→093-381-3330
●毎月の支払いはいくら?といった、素朴な疑問もお問い合わせください!
●ウォークインクローゼットのほか各部屋に収納完備!
●キッチンに勝手口がある設計でゴミ出しもラクラク
●換気が簡単な窓付きのバスルーム
●リビング横の洋室はキッズスペースとしても◎リビングの延長としてもお使いいただけます!
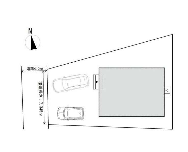
●お車はゆっくりと2台駐車可能です
●食洗器付きキッチンは家事を軽減できます
◆◆住宅ローン無料相談受付中◆◆
『転職したばかりの方』や『他でお借入のある方』でも、まずは一度ご相談ください。
多数の提携銀行からご提案させていただきます!
物件の設備
- 電気
- オール電化
- 上水道
- 下水道
- 側溝
- 食器洗浄乾燥機
- IHクッキングヒータ
- システムキッチン
- バス1坪以上
- 追焚機能
- 浴室乾燥機
- トイレ2箇所
- 温水洗浄便座
- 洗髪洗面化粧台
- BS
- ディンプルキー
- モニタ付インターホン
- 火災警報器/報知機
- 複層ガラス
- 24時間換気システム
- ウォークインクローゼット
物件の特徴
- 2階建
物件詳細情報
| 価格 | 2,998万円 | 間取り | 4LDK |
|---|---|---|---|
| 物件種別 | 新築一戸建て | ||
| 所在地 | 福岡県北九州市小倉南区湯川3丁目5-7 | ||
| アクセス |
|
||
| 建物面積 | 104.7㎡ | 駐車場 | あり 普通:2台 |
| 築年月 | 2025年(令和7年)05月築 | 建築確認 | R06確認建築福住セ北 |
| 建物構造 | 木造 2階建 | 工法 | |
| 主要採光 | バルコニー | ||
| 保証・評価 | |||
| 土地面積 | 167.4㎡(50.63坪) | 接道 | 西側(公道)幅 約4.0m 間口 約7.30m |
| 私道 | セットバック | ||
| 地目 | 宅地 | 地勢 | |
| 権利 | 所有権 |
||
| 都市計画 | 市街化区域 |
用途地域 | 1種住居 |
| 建ぺい/容積率 | 50% / 80% | 土地国土法 | |
| 許可番号 | 建築基準法 | ||
| 法令制限 | |||
| 小学区 | 湯川小学校 徒歩12分 (約890m) | 中学区 | 湯川中学校 徒歩14分 (約1090m) |
| 現況 | 完工済 | 引渡 | 相談 |
| その他費用 | |||
| 周辺環境 | ファミリーマート小倉安部山入口店 徒歩5分 (約330m) セブンイレブン 小倉葛原1丁目店 徒歩8分 (約640m) 湯川小学校 徒歩12分 (約890m) 北九州市立湯川中学校 徒歩14分 (約1090m) サンリブシティ小倉 徒歩17分 (約1310m) ゆめマート小倉東 徒歩19分 (約1490m) |
||
| 備考 | |||
| 物件番号 | 4238382 | 取引態様 | 媒介 |
取扱店舗情報
ハウスドゥ 門司駅前 株式会社ヴィアンジュ 店舗詳細ページへ
| 電話番号 | 093-381-3330 |
|---|---|
| 所在地 | 〒800-0031 福岡県北九州市門司区高田1丁目3-20 グローリー門司駅前102 |
| 営業時間 | 9:00~18:00 |
| 定休日 | 火曜日、水曜日、年末年始 |
| 宅建免許番号 | 福岡県知事(1)第19600号 |
| アクセス | 店舗への地図はこちら |

来店ご予約
福岡県北九州市小倉南区で価格が似ている物件はこちら
![]()
![]()
-
- 新築一戸建て 2025.04.15
-
-
- 2,998万円
-
北九州市小倉南区津田3丁目
-
JR日豊本線「下曽根駅」まで徒歩19分
- 4LDK
-
-
- 新築一戸建て 2025.04.22
-
-
- 2,898万円
-
北九州市小倉南区湯川1丁目
-
JR日豊本線「安部山公園駅」まで徒歩7分
- 4LDK
-
-
- 新築一戸建て 2025.04.22
-
-
- 3,098万円
-
北九州市小倉南区湯川1丁目
-
JR日豊本線「安部山公園駅」まで徒歩7分
- 4LDK
-
-
- 新築一戸建て 2025.05.25
-
-
- 2,898万円
-
北九州市小倉南区湯川1丁目
-
JR日豊本線「安部山公園駅」まで徒歩5分
- 4LDK
-
-
- 新築一戸建て 2025.05.25
-
-
- 3,098万円
-
北九州市小倉南区湯川1丁目
-
JR日豊本線「安部山公園駅」まで徒歩5分
- 4LDK
-
-
- 新築一戸建て 2025.05.27
-
-
- 2,898万円
-
北九州市小倉南区上貫2丁目
-
JR日豊本線「下曽根駅」まで徒歩25分
- 4LDK
-
-
- 新築一戸建て 2025.05.29
-
-
- 2,998万円
-
北九州市小倉南区北方3丁目
-
北九州高速鉄道「北方駅」まで徒歩5分
- 4LDK
-
-
- 新築一戸建て 2025.05.29
-
-
- 2,898万円
-
北九州市小倉南区上貫2丁目
-
JR日豊本線「下曽根駅」まで徒歩27分
- 4LDK
-
-
- 新築一戸建て 2025.05.31
-
-
- 2,998万円
-
北九州市小倉南区北方3丁目
-
北九州高速鉄道「北方駅」まで徒歩5分
- 4LDK
-
-
- 新築一戸建て 2025.06.06
-
-
- 2,999万円
-
北九州市小倉南区中曽根4丁目
-
JR日豊本線「下曽根駅」まで徒歩14分
- 4LDK+S
-
-
- 新築一戸建て 2025.06.06
-
-
- 2,949万円
-
北九州市小倉南区中曽根4丁目
-
JR日豊本線「下曽根駅」まで徒歩14分
- 4LDK+S
-
-
- 新築一戸建て 2025.06.16
-
-
- 2,998万円
-
北九州市小倉南区東貫1丁目
-
JR日豊本線「下曽根駅」まで徒歩20分
- 4LDK
-
-
- 新築一戸建て 2025.06.28
-
-
- 2,998万円
-
北九州市小倉南区津田3丁目
-
JR日豊本線「下曽根駅」まで徒歩18分
- 4LDK
-
-
- 新築一戸建て 2025.07.06
-
-
- 2,898万円
-
北九州市小倉南区下曽根4丁目
-
JR日豊本線「下曽根駅」まで徒歩11分
- 4LDK
-
-
- 新築一戸建て 2025.07.06
-
-
- 2,898万円
-
北九州市小倉南区下曽根4丁目
-
JR日豊本線「下曽根駅」まで徒歩11分
- 4LDK
-
-
- 新築一戸建て 2025.07.08
-
-
- 2,898万円
-
北九州市小倉南区下曽根4丁目
-
JR日豊本線「下曽根駅」まで徒歩10分
- 4LDK
-
-
- 新築一戸建て 2025.08.08
-
-
- 2,998万円
-
北九州市小倉南区中貫1丁目
-
JR日豊本線「下曽根駅」まで徒歩30分
- 4LDK
-
-
- 新築一戸建て 2025.08.12
-
-
- 2,998万円
-
北九州市小倉南区北方3丁目
-
北九州高速鉄道「北方駅」まで徒歩5分
- 4LDK
-
-
- 新築一戸建て 2025.08.19
-
-
- 2,998万円
-
北九州市小倉南区中貫1丁目
-
JR日豊本線「下曽根駅」まで徒歩30分
- 4LDK
-
-
- 新築一戸建て 2025.08.24
-
-
- 2,998万円
-
北九州市小倉南区湯川1丁目
-
JR日豊本線「安部山公園駅」まで徒歩9分
- 4LDK
-
-
- 新築一戸建て 2025.08.29
-
-
- 2,898万円
-
北九州市小倉南区沼緑町3丁目
-
JR日豊本線「下曽根駅」まで徒歩23分
- 4LDK
-
-
- 新築一戸建て 2025.08.29
-
-
- 2,998万円
-
北九州市小倉南区沼緑町3丁目
-
JR日豊本線「下曽根駅」まで徒歩23分
- 4LDK
-
-
- 新築一戸建て 2025.09.04
-
-
- 2,998万円
-
北九州市小倉南区中貫1丁目
-
JR日豊本線「下曽根駅」まで徒歩30分
- 4LDK
-
-
- 新築一戸建て 2025.09.08
-
-
- 2,998万円
-
北九州市小倉南区東貫1丁目
-
JR日豊本線「下曽根駅」まで徒歩20分
- 4LDK
-
-
- 新築一戸建て 2025.09.15
-
-
- 2,999万円
-
北九州市小倉南区中曽根4丁目
-
JR日豊本線「下曽根駅」まで徒歩14分
- 4LDK+S
-
-
- 新築一戸建て 2025.09.15
-
-
- 2,999万円
-
北九州市小倉南区中曽根4丁目
-
JR日豊本線「下曽根駅」まで徒歩14分
- 4LDK+S
-
-
- 新築一戸建て 2025.09.15
-
-
- 2,949万円
-
北九州市小倉南区中曽根4丁目
-
JR日豊本線「下曽根駅」まで徒歩14分
- 4LDK+S
-
-
- 新築一戸建て 2025.09.18
-
-
- 2,898万円
-
北九州市小倉南区上吉田1丁目
-
JR日豊本線「下曽根駅」まで徒歩47分
- 4LDK
-
-
- 新築一戸建て 2025.09.22
-
-
- 2,898万円
-
北九州市小倉南区上貫2丁目
-
JR日豊本線「下曽根駅」まで徒歩25分
- 4LDK
-
-
- 新築一戸建て 2025.09.25
-
-
- 2,948万円
-
北九州市小倉南区長行西1丁目
-
北九州高速鉄道「徳力嵐山口駅」まで徒歩18分
- 4LDK+S
-
-
- 新築一戸建て 2025.09.25
-
-
- 2,898万円
-
北九州市小倉南区長行西1丁目
-
北九州高速鉄道「徳力嵐山口駅」まで徒歩18分
- 4LDK
-
-
- 新築一戸建て 2025.09.28
-
-
- 2,998万円
-
北九州市小倉南区津田3丁目
-
JR日豊本線「下曽根駅」まで徒歩18分
- 4LDK
-
-
- 新築一戸建て 2025.10.14
-
-
- 2,998万円
-
北九州市小倉南区東貫1丁目
-
JR日豊本線「下曽根駅」まで徒歩19分
- 4LDK
-
-
- 新築一戸建て 2025.10.19
-
-
- 3,098万円
-
北九州市小倉南区津田3丁目
-
JR日豊本線「下曽根駅」まで徒歩18分
- 4LDK
-
-
- 新築一戸建て 2025.10.24
-
-
- 2,948万円
-
北九州市小倉南区長行西1丁目
-
北九州高速鉄道「徳力嵐山口駅」まで徒歩17分
- 4LDK+S
-
-
- 新築一戸建て 2025.10.24
-
-
- 2,898万円
-
北九州市小倉南区長行西1丁目
-
北九州高速鉄道「徳力嵐山口駅」まで徒歩17分
- 4LDK
-
-
- 新築一戸建て 2025.10.25
-
-
- 2,899万円
-
北九州市小倉南区徳吉東4丁目
-
北九州高速鉄道「徳力嵐山口駅」まで徒歩22分
- 4LDK
-
-
- 新築一戸建て 2025.10.28
-
-
- 3,048万円
-
北九州市小倉南区長行西1丁目
-
北九州高速鉄道「徳力嵐山口駅」まで徒歩18分
- 4LDK+S
-
-
- 新築一戸建て 2025.10.28
-
-
- 2,998万円
-
北九州市小倉南区長行西1丁目
-
北九州高速鉄道「徳力嵐山口駅」まで徒歩18分
- 4LDK
-
-
- 新築一戸建て 2025.10.28
-
-
- 2,999万円
-
北九州市小倉南区中曽根4丁目
-
JR日豊本線「下曽根駅」まで徒歩15分
- 4LDK+S
-
-
- 新築一戸建て 2025.10.28
-
-
- 2,949万円
-
北九州市小倉南区中曽根4丁目
-
JR日豊本線「下曽根駅」まで徒歩15分
- 4LDK+S
-
-
- 新築一戸建て 2025.10.31
-
-
- 2,899万円
-
北九州市小倉南区徳吉東4丁目
-
北九州高速鉄道「徳力嵐山口駅」バス乗車6分 バス停「徳光」まで徒歩6分
- 4LDK
-
-
- 新築一戸建て 2025.11.02
-
-
- 2,948万円
-
北九州市小倉南区八幡町
-
北九州高速鉄道「城野駅」まで徒歩10分
- 4LDK
-
-
- 新築一戸建て 2025.11.03
-
-
- 2,898万円
-
北九州市小倉南区沼緑町3丁目
-
JR日豊本線「下曽根駅」まで徒歩23分
- 4LDK
-
-
- 新築一戸建て 2025.11.03
-
-
- 2,998万円
-
北九州市小倉南区沼緑町3丁目
-
JR日豊本線「下曽根駅」まで徒歩23分
- 4LDK
-
-
- 新築一戸建て 2025.11.03
-
-
- 2,998万円
-
北九州市小倉南区沼緑町3丁目
-
JR日豊本線「下曽根駅」まで徒歩23分
- 4LDK
-
-
- 新築一戸建て 2025.11.08
-
-
- 2,998万円
-
北九州市小倉南区津田3丁目
-
JR日豊本線「下曽根駅」まで徒歩18分
- 4LDK
-
-
- 新築一戸建て 2025.11.13
-
-
- 2,999万円
-
北九州市小倉南区中曽根4丁目
-
JR日豊本線「下曽根駅」まで徒歩15分
- 4LDK+S
-
-
- 新築一戸建て 2025.11.15
-
-
- 2,898万円
-
北九州市小倉南区中吉田3丁目
-
JR日豊本線「下曽根駅」まで徒歩33分
- 4LDK
-
-
- 新築一戸建て 2025.11.16
-
-
- 2,948万円
-
北九州市小倉南区長行西1丁目
-
西鉄バス長行校下停まで徒歩11分
- 4LDK
-
-
- 新築一戸建て 2025.11.16
-
-
- 2,898万円
-
北九州市小倉南区長行西1丁目
-
西鉄バス長行校下停まで徒歩11分
- 4LDK
-
-
- 新築一戸建て 2025.11.17
-
-
- 2,898万円
-
北九州市小倉南区下曽根4丁目
-
JR日豊本線「下曽根駅」まで徒歩11分
- 4LDK
-
-
- 新築一戸建て 2025.11.18
-
-
- 2,998万円
-
北九州市小倉南区東貫1丁目
-
JR日豊本線「下曽根駅」まで徒歩19分
- 4LDK
-
-
- 新築一戸建て 2025.11.24
-
-
- 2,899万円
-
北九州市小倉南区徳吉東4丁目
-
北九州高速鉄道「志井駅」まで徒歩29分
- 4LDK
-
-
- 新築一戸建て 2025.11.28
-
-
- 2,898万円
-
北九州市小倉南区沼緑町3丁目
-
JR日豊本線「安部山公園駅」まで徒歩47分
- 4LDK
-
-
- 新築一戸建て 2025.11.28
-
-
- 2,998万円
-
北九州市小倉南区沼緑町3丁目
-
JR日豊本線「安部山公園駅」まで徒歩47分
- 4LDK
-
-
- 新築一戸建て 2025.11.29
-
-
- 2,949万円
-
北九州市小倉南区中曽根4丁目
-
JR日豊本線「下曽根駅」まで徒歩15分
- 4LDK
-
-
- 新築一戸建て 2025.11.29
-
-
- 2,999万円
-
北九州市小倉南区中曽根4丁目
-
JR日豊本線「下曽根駅」まで徒歩15分
- 4LDK
-
-
-
新築一戸建て
2025.12.12
-
-
- 3,098万円
-
北九州市小倉南区朽網東1丁目
-
JR日豊本線「朽網駅」まで徒歩7分
- 4LDK
-
-
新築一戸建て
2025.12.12
-
-
新築一戸建て
2025.12.15
-
-
- 3,088万円
-
北九州市小倉南区下貫3丁目
-
JR日豊本線「下曽根駅」まで徒歩28分
- 4LDK
-
-
新築一戸建て
2025.12.15
-
-
新築一戸建て
2025.12.18
-
-
- 3,098万円
-
北九州市小倉南区朽網東1丁目
-
JR日豊本線「朽網駅」まで徒歩7分
- 4LDK
-
-
新築一戸建て
2025.12.18
-
-
新築一戸建て
2025.12.18
-
-
- 2,898万円
-
北九州市小倉南区沼緑町3丁目
-
JR日豊本線「下曽根駅」まで徒歩23分
- 4LDK
-
-
新築一戸建て
2025.12.18
-
-
新築一戸建て
2025.12.18
-
-
- 2,998万円
-
北九州市小倉南区沼緑町3丁目
-
JR日豊本線「下曽根駅」まで徒歩23分
- 4LDK
-
-
新築一戸建て
2025.12.18
-
-
新築一戸建て
2025.12.26
-
-
- 3,098万円
-
北九州市小倉南区朽網東1丁目
-
JR日豊本線「朽網駅」まで徒歩7分
- 4LDK
-
-
新築一戸建て
2025.12.26
-
-
新築一戸建て
2025.12.29
-
-
- 2,899万円
-
北九州市小倉南区徳吉東4丁目
-
北九州高速鉄道「徳力嵐山口駅」まで徒歩22分
- 4LDK
-
-
新築一戸建て
2025.12.29
- 福岡県
マイページ物件数 - 8,968件
最近見た物件
-
-

-
- 新築一戸建て
- 3,073万円
-
出雲市上塩冶町
-
JR山陰本線出雲市
-
-
-

-
- 中古一戸建て
- 690万円
-
鹿児島市西伊敷6丁目
-
西伊敷六丁目中央バス停
-
-
-

-
- 中古一戸建て
- 2,080万円
-
鹿児島市明和5丁目
-
JR鹿児島本線鹿児島中央
-
福岡県新築一戸建て新着物件
-
-

-
- 新築一戸建て
- 3,280万円
-
北九州市若松区上原町
-
JR筑豊本線若松駅
-
-
-

-
- 新築一戸建て
- 3,398万円
-
北九州市小倉南区上貫1丁目
-
JR日豊本線下曽根駅
-
-
-

-
- 新築一戸建て
- 2,988万円
-
福岡市東区雁の巣1丁目
-
JR香椎線雁ノ巣駅
-
-
-

-
- 新築一戸建て
- 5,499万円
-
福岡市東区松香台1丁目
-
JR鹿児島本線香椎駅
-
-
-

-
- 新築一戸建て
- 3,588万円
-
糟屋郡篠栗町和田4丁目
-
JR篠栗線門松駅
-
-
-

-
- 新築一戸建て
- 3,088万円
-
福岡市東区雁の巣1丁目
-
JR香椎線雁ノ巣駅
-
-
-

-
- 新築一戸建て
- 3,188万円
-
糟屋郡須惠町大字植木
-
JR香椎線酒殿駅
-
- お近くの店舗を探す
-
おすすめ物件
-
-

-
- 新築一戸建て
- 3,098万円
-
宗像市原町
-
JR鹿児島本線東郷
-
-
-

-
- 新築一戸建て
- 4,798万円
-
糟屋郡粕屋町大字柚須
-
JR篠栗線柚須
-
-
-

-
- 新築一戸建て
- 4,298万円
-
福岡市早良区干隈5丁目
-
福岡市七隈線野芥
-
-
-

-
- 新築一戸建て
- 4,098万円
-
福岡市東区美和台5丁目
-
西鉄貝塚線三苫
-
-
-

-
- 新築一戸建て
- 3,388万円
-
糟屋郡須惠町大字植木
-
JR香椎線酒殿
-
-
-

-
- 新築一戸建て
- 3,298万円
-
福岡市南区和田2丁目
-
西鉄天神大牟田線大橋
-
-
-

-
- 新築一戸建て
- 5,098万円
-
糟屋郡粕屋町酒殿2丁目
-
JR香椎線酒殿
-
-
-

-
- 新築一戸建て
- 3,680万円
-
福津市福間駅東2丁目
-
JR鹿児島本線福間
-
-
-

-
- 新築一戸建て
- 2,998万円
-
北九州市小倉南区北方3丁目
-
北九州高速鉄道北方
-
-
-

-
- 新築一戸建て
- 3,098万円
-
北九州市小倉南区津田3丁目
-
JR日豊本線下曽根
-































複数の銀行の住宅ローンからお客様に最適なプランをご提案いたします。 ご希望やご不明点など、お気軽にご連絡ください。ハウスエージェントが最後まで全力でサポートいたします!