大津市大江4丁目の新築戸建
掲載情報更新日:2026年02月26日 次回更新予定日:2026年03月12日
- 5,998万円
-
- 借入ご希望金額
万円 - 借入期間
年 - 借入金利
% - 月々のお支払い金額
円
- 借入ご希望金額
※ 月々のお支払例は目安の試算となりますので、実際の金額とは異なる場合がございます。詳しくは店舗までお問合わせください。
- 大津市大江4丁目
-
JR東海道線『瀬田』 徒歩8分 (約640m)
大津市大江4丁目一戸建て | 物件情報
★JR「瀬田」駅徒歩8分★南東角住戸の平屋建★太陽光発電搭載のオール電化住宅です★
物件の設備
- 電気
- オール電化
- 上水道
- 公営水道
- 下水道
- 公共下水
- IHクッキングヒータ
- コンロ三口
- グリル
- カウンターキッチン
- システムキッチン
- バス
- ユニットバス
- 浴室に窓
- トイレ
- 温水洗浄便座
- 室内洗濯機置場
- 洗面所独立
- 太陽光発電システム
- モニタ付インターホン
- ロフト
- LDK15畳以上
- 吹抜
- フローリング
- クローゼット
- ウォークインクローゼット
- 全居室収納
- シューズインクローク
物件の特徴
- 小学校徒歩10分以内
- 前道6m以上
- スーパーが近い
- 角地
物件詳細情報
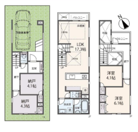
| 価格 | 5,998万円 | 間取り | 2LDK+S |
|---|---|---|---|
| 物件種別 | 新築一戸建て | ||
| 所在地 | 滋賀県大津市大江4丁目 | ||
| アクセス |
|
||
| 建物面積 | 86.12㎡ | 駐車場 | あり 普通:2台 |
| 築年月 | 2025年(令和7年)05月築 | 建築確認 | |
| 建物構造 | 木造 1階建 | 工法 | |
| 主要採光 | バルコニー | ||
| 保証・評価 | |||
| 土地面積 | 公170.77㎡(51.65坪) | 接道 | 南東側(公道)幅 約7.0m 北東側(公道)幅 約7.0m |
| 私道 | セットバック | ||
| 地目 | 宅地 | 地勢 | |
| 権利 | 所有権 |
||
| 都市計画 | 市街化区域 |
用途地域 | 1種住居 |
| 建ぺい/容積率 | 60% / 200% | 土地国土法 | |
| 許可番号 | 建築基準法 | ||
| 法令制限 | |||
| 小学区 | 瀬田小学校 徒歩9分 (約685m) | 中学区 | 瀬田中学校 徒歩9分 (約705m) |
| 現況 | 完工済 | 引渡 | 相談 |
| その他費用 | |||
| 周辺環境 | レイモンド瀬田こども園 徒歩3分 (約180m) ダイエー 瀬田店 徒歩4分 (約250m) アル・プラザ瀬田 徒歩10分 (約800m) フォレオ大津一里山 徒歩21分 (約1660m) ローソン大萱一丁目店 徒歩5分 (約330m) スギドラッグ 瀬田店 徒歩5分 (約400m) |
||
| 備考 | 【別途費用】 〇外構費用:198万円(税込) 〇建築確認申請費用:55万円(税込) 〇施設負担金:44万円(税込) 〇境界ブロックフェンス費用:44万円(税込) 〇太陽光8.70kw:140万円(税込) *屋根貸し時:44万円(税込) *取引に係る司法書士は売主指定 |
||
| 物件番号 | 4274785 | 取引態様 | 媒介 |
取扱店舗情報
ハウスドゥ 大津石山 株式会社マキ不動産販売 店舗詳細ページへ
| 電話番号 | 077-531-1777 |
|---|---|
| 所在地 | 〒520-0832 滋賀県大津市粟津町2-63 マキ本社ビル |
| 営業時間 | 9:00~18:30 |
| 定休日 | 水曜日・第3火曜日 |
| 宅建免許番号 | 滋賀県知事(5)第3019号 |
| アクセス | 店舗への地図はこちら |

来店ご予約
滋賀県大津市で価格が似ている物件はこちら
- 滋賀県
マイページ物件数 - 3,033件
滋賀県新築一戸建て新着物件
-
-

-
- 新築一戸建て
- 2,780万円
-
東近江市東沖野5丁目
-
近江鉄道本線八日市駅
-
-
-

-
- 新築一戸建て
- 2,980万円
-
東近江市東沖野5丁目
-
近江鉄道本線八日市駅
-
-
-

-
- 新築一戸建て
- 2,080万円
-
大津市瀬田5丁目
-
京阪電鉄石山坂本線唐橋前駅
-
-
-

-
- 新築一戸建て
- 3,280万円
-
草津市下笠町
-
JR東海道線草津駅
-
-
-

-
- 新築一戸建て
- 3,680万円
-
大津市一里山6丁目
-
JR東海道線瀬田駅
-
-
-

-
- 新築一戸建て
- 3,780万円
-
大津市一里山6丁目
-
JR東海道線瀬田駅
-
-
-

-
- 新築一戸建て
- 1,780万円
-
犬上郡豊郷町大字四十九院
-
近江鉄道本線豊郷駅
-
- お近くの店舗を探す
-
おすすめ物件
-
-

-
- 新築一戸建て
- 2,188万円
-
彦根市高宮町
-
JR東海道線南彦根
-
-
-

-
- 新築一戸建て
- 3,120万円
-
彦根市西今町
-
JR東海道線南彦根
-
-
-

-
- 新築一戸建て
- 3,900万円
-
彦根市東沼波町
-
JR東海道線南彦根
-
-
-

-
- 新築一戸建て
- 4,098万円
-
京都市山科区北花山中道町
-
京都市営地下鉄東西線御陵
-
-
-

-
- 新築一戸建て
- 4,010万円
-
彦根市東沼波町
-
JR東海道線彦根
-
-
-

-
- 新築一戸建て
- 3,890万円
-
近江八幡市古川町
-
JR東海道線篠原
-
-
-

-
- 新築一戸建て
- 3,690万円
-
近江八幡市加茂町
-
JR東海道線近江八幡
-
-
-

-
- 新築一戸建て
- 2,980万円
-
大津市際川4丁目
-
JR湖西線唐崎
-
-
-

-
- 新築一戸建て
- 2,680万円
-
彦根市彦富町
-
JR東海道線稲枝
-
-
-

-
- 新築一戸建て
- 2,080万円
-
大津市瀬田5丁目
-
JR東海道線石山
-


