東広島市西条町寺家 1号地
掲載情報更新日:2026年04月29日 次回更新予定日:2026年05月13日
- 2,780万円
-
- 借入ご希望金額
万円 - 借入期間
年 - 借入金利
% - 月々のお支払い金額
円
- 借入ご希望金額
※ 月々のお支払例は目安の試算となりますので、実際の金額とは異なる場合がございます。詳しくは店舗までお問合わせください。
- 東広島市西条町寺家
-
JR山陽本線『寺家』 徒歩10分 (約750m)
東広島市西条町寺家 1号地一戸建て | 物件情報
2025年6月完成!寺家エリアで電気自動車充電可能な家! 寺家駅や最寄りのスーパーも徒歩圏内♪
〇おすすめ〇
西条の中でも大人気の寺家エリア!
寺家駅まで徒歩9分
平岩小学校まで徒歩12分
ショージ寺家駅前店まで徒歩8分
ローソン寺家駅前店まで徒歩8分
駅前には内科や耳鼻科・歯科・皮膚科が入るクリニックビルもあり、小さなお子様がいても安心♪
東広島で人気がある、焼き立てのパンが食べられる
あすなろベーカリー寺家店も徒歩10分!
生活環境がとても整っていて、小さなお子様がいらっしゃる方や
新しい生活をスタートしたい方にも大変おすすめです!
物件の設備
- 公営水道
- 公共下水
- プロパンガス
- 給湯
- 浄水器
- コンロ三口
- グリル
- カウンターキッチン
- システムキッチン
- バス
- ユニットバス
- オートバス
- バス1坪以上
- 追焚機能
- 浴室暖房
- 浴室乾燥機
- 浴室に窓
- トイレ
- トイレ2箇所
- 温水洗浄便座
- 室内洗濯機置場
- 洗髪洗面化粧台
- ダウンライト
- 人感照明センサー
- 省エネ給湯器
- EV車充電設備
- カードキー
- ディンプルキー
- モニタ付インターホン
- 防犯カメラ
- 火災警報器/報知機
- LDK15畳以上
- 和室
- 2面採光
- 全室2面採光
- 複層ガラス
- 全居室複層ガラス
- フローリング
- 24時間換気システム
- クローゼット
- クローゼット2箇所
- クローゼット3箇所
- ウォークインクローゼット
- 納戸
- 全居室収納
- ルーフバルコニー
- ワイドバルコニー
物件の特徴
- 南向
- 制震構造
- 総合病院徒歩10分以内
- 前道6m以上
- 南側道路面す
- スーパーが近い
- 閑静な住宅街
- 山が見える
- 陽当り良好
- 2階建
- 角地
- 開発分譲地内
- 外壁サイディング
- 建築確認完了検査済証
- 新築
- 増改築設計図書
- フラット35Sに対応
物件詳細情報
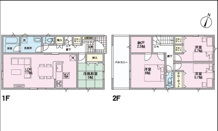
| 価格 | 2,780万円 | 間取り | 4LDK |
|---|---|---|---|
| 物件種別 | 新築一戸建て | ||
| 所在地 | 広島県東広島市西条町寺家 1 | ||
| アクセス |
|
||
| 建物面積 | 110.16㎡ | 駐車場 | あり 普通:2台 |
| 築年月 | 2025年(令和7年)06月築 | 建築確認 | 第R07SHC101022号 |
| 建物構造 | 木造 2階建 | 工法 | |
| 主要採光 | 南向 | バルコニー | 9.72㎡ |
| 保証・評価 | |||
| 分譲情報 | |||
| 土地面積 | 実162.17㎡(49.05坪) | 接道 | 東側(公道)幅 約7.1m 間口 約5.60m 南側(公道)幅 約6.0m 間口 約14.30m |
| 私道 | セットバック | ||
| 地目 | 宅地 | 地勢 | |
| 権利 | 所有権 |
||
| 都市計画 | 市街化区域 |
用途地域 | 1種中高 |
| 建ぺい/容積率 | 70% / 200% | 土地国土法 | |
| 許可番号 | 建築基準法 | ||
| 法令制限 | 宅地造成工事規制区域・法22条区域 | ||
| 小学区 | 平岩小学校 徒歩12分 (約900m) | 中学区 | 磯松中学校 徒歩33分 (約2600m) |
| 現況 | 完工済 | 引渡 | 相談 |
| その他費用 | |||
| 周辺環境 | 西条上寺家簡易郵便局 徒歩8分 (約620m) ショージ寺家店 徒歩7分 (約550m) ローソン東広島寺家駅前店 徒歩8分 (約610m) 東広島市立平岩小学校 徒歩10分 (約780m) JR山陽本線 寺家駅 徒歩12分 (約910m) 東広島医療センター 徒歩9分 (約720m) セブンイレブン東広島八本松米満店 徒歩19分 (約1450m) 憩いの森公園 徒歩44分 (約3450m) 東広島市立磯松中学校 徒歩34分 (約2710m) JR山陽本線 西条駅 徒歩29分 (約2320m) |
||
| 備考 | 引渡後無料点検実施→(6ヶ月・2年・5年・10年の計4回) 住宅性能評価取得(5分野7項目最高等級取得) TVアンテナ・網戸・照明器具・カーテンレール・シャッター等はオプションです フラット35S(金利Aタイプ)利用可能(発行費用等不要) ルーフバルコニーを除いた建物面積:100.44㎡ |
||
| 物件番号 | 4289070 | 取引態様 | 媒介 |
取扱店舗情報
ハウスドゥ 八本松正力 株式会社ノア・コーポレーション 店舗詳細ページへ
| 電話番号 | 082-490-3341 |
|---|---|
| 所在地 | 〒739-0132 広島県東広島市八本松町正力1089-6 |
| 営業時間 | 9:00~18:00 |
| 定休日 | 水曜日、年末年始 |
| 宅建免許番号 | 広島県知事(1)第11474号 |
| アクセス | 店舗への地図はこちら |

来店ご予約
- 広島県
マイページ物件数 - 4,759件
最近見た物件
-
-

-
- 中古一戸建て
- 2,380万円
-
札幌市北区篠路四条8丁目
-
JR札沼線篠路
-
-
-

-
- 中古一戸建て
- 1,500万円
-
舞鶴市字福来
-
JR舞鶴線西舞鶴
-
-
-

-
- 中古一戸建て
- 1,499万円
-
宇都宮市江曽島町
-
東武宇都宮線江曾島
-
広島県新築一戸建て新着物件
-
-

-
- 新築一戸建て
- 3,380万円
-
広島市安芸区中野6丁目
-
JR山陽本線中野東駅
-
-
-

-
- 新築一戸建て
- 3,480万円
-
福山市多治米町1丁目
-
JR山陽本線福山駅
-
-
-

-
- 新築一戸建て
- 3,580万円
-
福山市多治米町1丁目
-
JR山陽本線福山駅
-
-
-

-
- 新築一戸建て
- 3,480万円
-
福山市多治米町1丁目
-
JR山陽本線福山駅
-
-
-

-
- 新築一戸建て
- 3,580万円
-
福山市多治米町1丁目
-
JR山陽本線福山駅
-
-
-

-
- 新築一戸建て
- 4,290万円
-
広島市安佐南区伴東2丁目
-
アストラムライン伴駅
-
-
-

-
- 新築一戸建て
- 2,780万円
-
尾道市栗原町
-
JR山陽本線尾道駅
-
- お近くの店舗を探す
-
おすすめ物件
-
-

-
- 新築一戸建て
- 3,090万円
-
福山市新涯町4丁目
-
JR山陽本線福山
-
-
-

-
- 新築一戸建て
- 3,850万円
-
福山市水呑町三新田1丁目
-
JR山陽本線福山
-
-
-

-
- 新築一戸建て
- 3,380万円
-
福山市長者町
-
JR福塩線備後本庄
-
-
-

-
- 新築一戸建て
- 2,990万円
-
福山市新涯町4丁目
-
JR山陽本線福山
-
-
-

-
- 新築一戸建て
- 3,290万円
-
福山市新涯町4丁目
-
JR山陽本線福山
-
-
-

-
- 新築一戸建て
- 2,380万円
-
福山市神辺町字下御領
-
井原鉄道御領
-
-
-

-
- 新築一戸建て
- 3,280万円
-
福山市本庄町中3丁目
-
JR福塩線備後本庄
-
-
-

-
- 新築一戸建て
- 3,380万円
-
福山市草戸町4丁目
-
JR山陽本線福山
-
-
-

-
- 新築一戸建て
- 2,890万円
-
福山市山手町3丁目
-
JR福塩線備後本庄
-






















