倉敷市安江の新築戸建
掲載情報更新日:2026年05月02日 次回更新予定日:2026年05月16日
- 2,298万円
-
- 借入ご希望金額
万円 - 借入期間
年 - 借入金利
% - 月々のお支払い金額
円
- 借入ご希望金額
※ 月々のお支払例は目安の試算となりますので、実際の金額とは異なる場合がございます。詳しくは店舗までお問合わせください。
- 倉敷市安江
-
水島臨海鉄道『球場前』 徒歩9分 (約720m)
JR山陽本線『倉敷』 徒歩25分 (約2000m)
倉敷市安江一戸建て | 物件情報
★「球場前」駅徒歩8分・イオンモール倉敷徒歩9分・新築戸建 ・駐車2台★
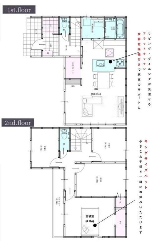
4LDK+シューズインクローク+ファミリークローゼット+ウォークインクローゼット
通勤・通学・収納豊富・お買物も便利♪
10月完成予定・全4棟間取りいろいろ
駐車スペース2台分あり(車種・駐車方法による)
物件の設備
- 上水道
- 公営水道
- 下水道
- 公共下水
- 都市ガス
- 食器洗浄乾燥機
- カウンターキッチン
- システムキッチン
- 浴室に窓
- モニタ付インターホン
- LDK18畳以上
- 全居室複層ガラス
- ウォークインクローゼット
- 床下収納
- 全居室収納
- シューズインクローク
物件の特徴
- 小学校徒歩10分以内
- 閑静な住宅街
- 2階建
- 平坦地
物件詳細情報
| 価格 | 2,298万円 | 間取り | 4LDK |
|---|---|---|---|
| 物件種別 | 新築一戸建て | ||
| 所在地 | 岡山県倉敷市安江 4号棟 | ||
| アクセス |
|
||
| 建物面積 | 公101.02㎡ | 駐車場 | あり |
| 築年月 | 2025年(令和7年)09月予定 | 建築確認 | 2024岡セ確建第002837号 |
| 建物構造 | 木造 2階建 | 工法 | |
| 主要採光 | 南向 | バルコニー | |
| 保証・評価 | |||
| 土地面積 | 公116.01㎡(35.09坪) | 接道 | 西側(公道)幅 約4.0m 間口 約9.50m |
| 私道 | セットバック | ||
| 地目 | 宅地 | 地勢 | |
| 権利 | 所有権 |
||
| 都市計画 | 市街化区域 |
用途地域 | 1種中高 |
| 建ぺい/容積率 | 60% / 200% | 土地国土法 | |
| 許可番号 | 建築基準法 | ||
| 法令制限 | 景観法による規制有 | ||
| 小学区 | 中洲小学校 徒歩6分 (約450m) | 中学区 | 西中学校 徒歩12分 (約900m) |
| 現況 | 空 | 引渡 | 相談 |
| その他費用 | |||
| 周辺環境 | 球場前駅 徒歩9分 (約700m) 倉敷市立中洲小学校 徒歩7分 (約530m) 倉敷市立西中学校 徒歩13分 (約1020m) 中洲保育園 徒歩4分 (約320m) 倉敷市立中洲認定こども園 徒歩8分 (約570m) 山陽マルナカ老松店 徒歩11分 (約830m) ローソン 倉敷水江店 徒歩7分 (約530m) ザグザグ 水江店 徒歩13分 (約1040m) 倉敷第一病院 徒歩16分 (約1220m) ホームセンターコーナン倉敷北浜店 徒歩30分 (約2340m) |
||
| 備考 | ★「球場前」駅徒歩8分・イオンモール倉敷徒歩9分・新築戸建 ・駐車2台★ 4LDK+シューズインクローク+ファミリークローゼット+ウォークインクローゼット 通勤・通学・収納豊富・お買物も便利♪ 10月完成予定・全4棟間取りいろいろ 駐車スペース並列2台分あり(車種・駐車方法による) |
||
| 物件番号 | 4295037 | 取引態様 | 媒介 |
取扱店舗情報
ハウスドゥ 倉敷駅東 株式会社アールイープロジェクト 店舗詳細ページへ
| 電話番号 | 086-424-6400 |
|---|---|
| 所在地 | 〒710-0003 岡山県倉敷市平田681-4 |
| 営業時間 | 9:00~18:00 |
| 定休日 | 水曜日、年末年始 |
| 宅建免許番号 | 岡山県知事(2)第5855号 |
| アクセス | 店舗への地図はこちら |

来店ご予約
岡山県倉敷市で価格が似ている物件はこちら
- 岡山県
マイページ物件数 - 4,696件
最近見た物件
岡山県新築一戸建て新着物件
-
-

-
- 新築一戸建て
- 4,160万円
-
岡山市南区大福
-
JR宇野線妹尾駅
-
-
-

-
- 新築一戸建て
- 4,670万円
-
岡山市南区築港新町1丁目
-
岡電バス南輝小学校前
-
-
-

-
- 新築一戸建て
- 4,160万円
-
岡山市南区当新田
-
JR宇野線備前西市駅
-
-
-

-
- 新築一戸建て
- 4,490万円
-
岡山市南区福富西2丁目
-
JR宇野線備前西市駅
-
-
-

-
- 新築一戸建て
- 3,950万円
-
岡山市南区藤田
-
JR宇野線妹尾駅
-
-
-

-
- 新築一戸建て
- 4,820万円
-
岡山市中区浜1丁目
-
JR山陽本線西川原駅
-
-
-

-
- 新築一戸建て
- 3,870万円
-
岡山市東区瀬戸町江尻
-
JR山陽本線瀬戸駅
-
- お近くの店舗を探す
-
























