平塚市入野の新築戸建
掲載情報更新日:2025年11月22日 次回更新予定日:2025年12月06日
- 3,180万円
-
- 借入ご希望金額
万円 - 借入期間
年 - 借入金利
% - 月々のお支払い金額
円
- 借入ご希望金額
※ 月々のお支払例は目安の試算となりますので、実際の金額とは異なる場合がございます。詳しくは店舗までお問合わせください。
- 平塚市入野
-
JR東海道本線『平塚』 バス乗車14分 長持根下 停 徒歩7分 (約560m)
平塚市入野一戸建て | 物件情報
物件の設備
- 公営水道
- プロパンガス
- 個別プロパン
物件の特徴
- 2階建
物件詳細情報
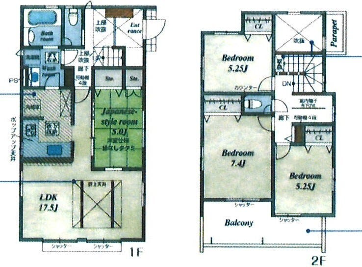
| 価格 | 3,180万円 | 間取り | 4LDK |
|---|---|---|---|
| 物件種別 | 新築一戸建て | ||
| 所在地 | 神奈川県平塚市入野 3号棟 | ||
| アクセス |
|
||
| 建物面積 | 100.86㎡ | 駐車場 | あり 普通:2台 |
| 築年月 | 2025年(令和7年)08月築 | 建築確認 | 第R07SHC104961号 |
| 建物構造 | 木造 2階建 | 工法 | |
| 主要採光 | バルコニー | ||
| 保証・評価 | |||
| 分譲情報 | 【販売戸数】:6戸 【価格】:3,080万円 ~3,680万円 |
||
| 土地面積 | 135.82㎡(41.08坪) | 接道 | |
| 私道 | セットバック | ||
| 地目 | 宅地 | 地勢 | |
| 権利 | 所有権 |
||
| 都市計画 | 市街化区域 |
用途地域 | 1種中高 |
| 建ぺい/容積率 | 60% / 200% | 土地国土法 | |
| 許可番号 | 建築基準法 | ||
| 法令制限 | |||
| 小学区 | 金田小学校 徒歩16分 (約1280m) | 中学区 | 金旭中学校 徒歩29分 (約2280m) |
| 現況 | 建築中 | 引渡 | 期日指定:2025年09月下旬 |
| その他費用 | |||
| 周辺環境 | 平塚市立金田小学校 徒歩16分 (約1280m) 平塚市立金旭中学校 徒歩29分 (約2280m) しまむらストアー長持店 徒歩9分 (約650m) 花乃幼稚園 徒歩9分 (約680m) クリエイトS・D平塚長持店 徒歩10分 (約790m) ファミリーマート平塚大繩店 徒歩12分 (約940m) |
||
| 備考 | |||
| 物件番号 | 4383157 | 取引態様 | 媒介 |
取扱店舗情報
| 電話番号 | 0463-74-5546 |
|---|---|
| 所在地 | 〒254-0901 神奈川県平塚市纒686 福島ビル1F |
| 営業時間 | 10:00~18:00 |
| 定休日 | 火曜日・水曜日・年末年始 |
| 宅建免許番号 | 神奈川県知事(1)第31454号 |
| アクセス | 店舗への地図はこちら |

来店ご予約
神奈川県平塚市で価格が似ている物件はこちら
- 神奈川県
マイページ物件数 - 3,098件
神奈川県新築一戸建て新着物件
- お近くの店舗を探す
-









