8/26公開!セルリアンステージ下松市桜町III №1
掲載情報更新日:2025年10月28日 次回更新予定日:2025年11月11日
- 3,580万円
-
- 借入ご希望金額
万円 - 借入期間
年 - 借入金利
% - 月々のお支払い金額
円
- 借入ご希望金額
※ 月々のお支払例は目安の試算となりますので、実際の金額とは異なる場合がございます。詳しくは店舗までお問合わせください。
- 下松市桜町1丁目
-
JR山陽本線『下松』 車5分(約1.7km)
8/26公開!セルリアンステージ下松市桜町III №1一戸建て | 物件情報
桜町で、満ち足りた毎日を。オール電化住宅で新しい生活、はじまる。
◇省エネ基準適合住宅
◇制振ダンパー(住友ゴム"MAMORY")
◇フラット35S(金利Bプラン)対応
◇瑕疵担保責任保険(まもりすまい保険)
◇オール電化(エコキュート)
◇IHクッキングヒーター
◇食器洗乾燥機
◇カップボード
◇浴室乾燥機能
◇1F・2Fウォッシュレットトイレ
◇オールLow-Eペアガラス
◇アルミ樹脂複合サッシ
◇玄関ドア電子錠
◇ファミリークローク(2階ホール)
◇南向き
◇リビング階段
◇小上がりのあるモダン和室(下部収納付き)
◇南向きのダブルバルコニー
◇並列駐車可
◇外構付き
物件の設備
- 電気
- オール電化
- 上水道
- 公営水道
- 公共下水
- 側溝
- 給湯
- 食器洗浄乾燥機
- IHクッキングヒータ
- コンロ一口
- コンロ二口
- コンロ三口
- グリル
- カウンターキッチン
- システムキッチン
- バス
- バス1坪以上
- 追焚機能
- 浴室に窓
- トイレ2箇所
- 温水洗浄便座
- 室内洗濯機置場
- モニタ付オートロック
- LDK15畳以上
- 和室
- 複層ガラス
- フローリング
- クローゼット
- ウォークインクローゼット
- 納戸
- シューズボックス
物件の特徴
- 南向
- 2階建
物件詳細情報
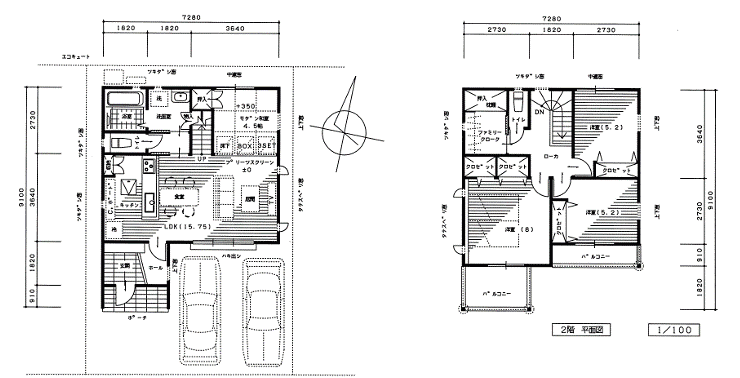
| 価格 | 3,580万円 | 間取り | 4LDK+S |
|---|---|---|---|
| 物件種別 | 新築一戸建て | ||
| 所在地 | 山口県下松市桜町1丁目 ①号棟 | ||
| アクセス |
|
||
| 建物面積 | 公101.02㎡ | 駐車場 | あり 普通:2台 |
| 築年月 | 2026年(令和8年)01月予定 | 建築確認 | R7 建確建住セ岩第0135号 |
| 建物構造 | 木造 2階建 | 工法 | |
| 主要採光 | バルコニー | ||
| 保証・評価 | |||
| 分譲情報 | |||
| 土地面積 | 公109.72㎡(33.19坪) | 接道 | |
| 私道 | セットバック | ||
| 地目 | 宅地 | 地勢 | |
| 権利 | 所有権 |
||
| 都市計画 | 市街化区域 |
用途地域 | 1種中高 |
| 建ぺい/容積率 | 60% / 200% | 土地国土法 | |
| 許可番号 | 建築基準法 | ||
| 法令制限 | |||
| 小学区 | 下松小学校 徒歩8分 (約610m) | 中学区 | 下松中学校 徒歩13分 (約980m) |
| 現況 | 建築中 | 引渡 | 期日指定:2026年01月以降 |
| その他費用 | |||
| 周辺環境 | 下松小学校 徒歩10分 (約730m) 下松中学校 徒歩14分 (約1100m) ウォンツ 下松桜町店 徒歩4分 (約290m) アルク 下松店 徒歩4分 (約250m) セブン-イレブン 下松藤光町1丁目店 徒歩13分 (約980m) |
||
| 備考 | ※省エネ基準適合住宅 ※制振ダンパー(住友ゴム"MAMORY") ※フラット35S(金利Bプラン)対応 ※瑕疵担保責任保険(まもりすまい保険) ※オール電化(エコキュート) ※IHクッキングヒーター ※食器洗乾燥機 ※カップボード ※浴室乾燥機能 ※1F・2Fウォッシュレットトイレ ※オールLow-Eペアガラス ※アルミ樹脂複合サッシ ※玄関ドア電子錠 ※ファミリークローク(2階ホール) ※南向き ※リビング階段 ※小上がりのあるモダン和室(下部収納付き) ※南向きのダブルバルコニー ※並列駐車可 ※外構付き |
||
| 物件番号 | 4387189 | 取引態様 | 媒介 |
取扱店舗情報
ハウスドゥ 周南城ケ丘 株式会社田村ビルズ 店舗詳細ページへ
| 電話番号 | 0834-34-1107 |
|---|---|
| 所在地 | 〒745-0807 山口県周南市城ケ丘1丁目2-32 |
| 営業時間 | 9:30~18:00 |
| 定休日 | 水曜日、第2・第3・第4・第5木曜日 |
| 宅建免許番号 | 国土交通大臣(2)第9501号 |
| アクセス | 店舗への地図はこちら |

来店ご予約
山口県下松市で価格が似ている物件はこちら
- 山口県
マイページ物件数 - 3,041件
山口県新築一戸建て新着物件
- お近くの店舗を探す
-
おすすめ物件
-
-

-
- 新築一戸建て
- 3,098万円
-
山口市吉敷中東1丁目
-
JR山口線湯田温泉
-
-
-

-
- 新築一戸建て
- 2,188万円
-
防府市東三田尻1丁目
-
JR山陽本線防府
-
-
-

-
- 新築一戸建て
- 2,188万円
-
防府市東三田尻1丁目
-
JR山陽本線防府
-
-
-

-
- 新築一戸建て
- 2,798万円
-
防府市大字牟礼
-
JR山陽本線防府
-
-
-

-
- 新築一戸建て
- 2,998万円
-
山口市湯田温泉6丁目
-
JR山口線湯田温泉
-
-
-

-
- 新築一戸建て
- 1,988万円
-
防府市東三田尻1丁目
-
JR山陽本線防府
-
-
-

-
- 新築一戸建て
- 1,980万円
-
防府市華城中央1丁目
-
JR山陽本線防府
-
-
-

-
- 新築一戸建て
- 2,798万円
-
防府市大字牟礼
-
JR山陽本線防府
-
-
-

-
- 新築一戸建て
- 3,098万円
-
下関市大字延行
-
JR山陽本線新下関
-
-
-

-
- 新築一戸建て
- 2,898万円
-
山口市黒川
-
JR山口線矢原
-










担当エージェント:松尾 翔
下松小学校徒歩8分!下松市役所徒歩10分!ゆめタウン下松まで徒歩11分!下松の便利な暮らしを想像するのが楽しい物件になりそうです♪ぜひ、詳細等お気軽にお問い合わせください。