クレイドルガーデン防府市東三田尻第1
掲載情報更新日:2025年12月02日 次回更新予定日:2025年12月16日
- 1,988万円
-
- 借入ご希望金額
万円 - 借入期間
年 - 借入金利
% - 月々のお支払い金額
円
- 借入ご希望金額
※ 月々のお支払例は目安の試算となりますので、実際の金額とは異なる場合がございます。詳しくは店舗までお問合わせください。
- 防府市東三田尻1丁目
-
JR山陽本線『防府』 徒歩20分 (約1600m)
クレイドルガーデン防府市東三田尻第1一戸建て | 物件情報
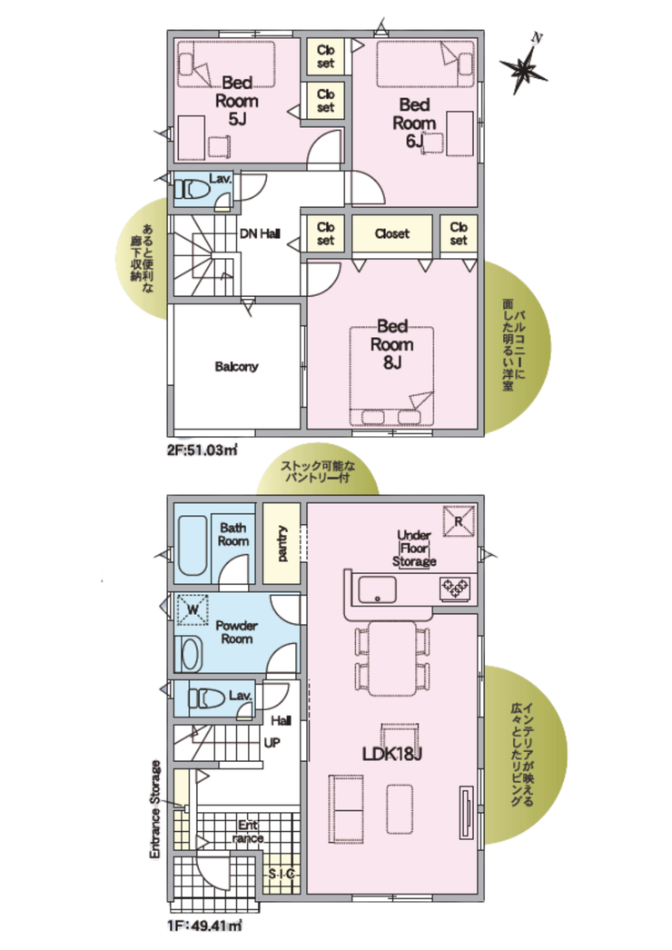
【3LDK/駐車3台可能】 LDK18帖以上!全居室収納付き!
18帖の広々LDKは、家族の会話が自然と弾む団らんスペース。2階には8帖の主寝室を含め3つの洋室があり、家族それぞれの時間を大切にできる間取り。各階にトイレを備え、忙しい朝も安心です。全居室収納や床下収納など、片付けしやすい工夫も充実。家族みんなが快適に暮らせるゆとりある住まいです。
物件の設備
- 上水道
- 公営水道
- 下水道
- 公共下水
- 側溝
- 都市ガス
- コンロ三口
- カウンターキッチン
- システムキッチン
- バス
- ユニットバス
- 浴室に窓
- トイレ
- トイレ2箇所
- 温水洗浄便座
- 室内洗濯機置場
- 洗髪洗面化粧台
- 洗面所独立
- 人感照明センサー
- モニタ付インターホン
- 防犯カメラ
- LDK18畳以上
- 複層ガラス
- フローリング
- クローゼット
- クローゼット3箇所
- 床下収納
- 全居室収納
- ルーフバルコニー
- 庭
- 南庭
物件の特徴
- 南側道路面す
- 2階建
物件詳細情報
| 価格 | 1,988万円 | 間取り | 3LDK |
|---|---|---|---|
| 物件種別 | 新築一戸建て | ||
| 所在地 | 山口県防府市東三田尻1丁目 ②号棟 | ||
| アクセス |
|
||
| 建物面積 | 100.44㎡ | 駐車場 | あり 普通:3台 |
| 築年月 | 2025年(令和7年)11月予定 | 建築確認 | 第R07SHC114123号 |
| 建物構造 | 木造 2階建 | 工法 | |
| 主要採光 | 南向 | バルコニー | 7.29㎡ |
| 保証・評価 | |||
| 土地面積 | 153.39㎡(46.40坪) | 接道 | 南側(公道)幅 約4.0m 間口 約7.90m |
| 私道 | セットバック | ||
| 地目 | 宅地 | 地勢 | |
| 権利 | 所有権 |
||
| 都市計画 | 市街化区域 |
用途地域 | 1種住居 |
| 建ぺい/容積率 | 60% / 160% | 土地国土法 | |
| 許可番号 | 建築基準法 | ||
| 法令制限 | 宅地造成工事規制区域・法22条区域・下水道処理区域 | ||
| 小学区 | 勝間小学校 徒歩10分 (約807m) | 中学区 | 国府中学校 徒歩26分 (約2039m) |
| 現況 | 建築中 | 引渡 | 期日指定:2025年11月以降 |
| その他費用 | |||
| 周辺環境 | 山口銀行三田尻支店 徒歩6分 (約460m) くらしげ小児科 徒歩6分 (約480m) 三田尻病院 徒歩6分 (約450m) Wants防府鋳物師店 徒歩7分 (約530m) ザ・ビッグ防府店 徒歩10分 (約760m) ザ・ビッグ防府店 徒歩10分 (約770m) 勝間小学校 徒歩11分 (約807m) 国府中学校 徒歩26分 (約2039m) |
||
| 備考 | ■敷地面積:153.39㎡(セットバック部分約0.94㎡含む 持分1/1)■延床面積:100.44㎡(ルーフバルコニー除外面積:93.15㎡) ※TVアンテナ・網戸・居室・カーテンレール・雨戸別途。※敷地内に電柱及び支線が入る場合があります。※図面と現況が異なる場合は現況優先にてご了承願います。 |
||
| 物件番号 | 4427010 | 取引態様 | 媒介 |
取扱店舗情報
| 電話番号 | 0835-28-1120 |
|---|---|
| 所在地 | 〒747-0809 山口県防府市寿町4-17 |
| 営業時間 | 9:30~18:00 |
| 定休日 | 毎週水曜日、第1以外の第木曜日 |
| 宅建免許番号 | 国土交通大臣(2)第9501号 |
| アクセス | 店舗への地図はこちら |

来店ご予約
山口県防府市で価格が似ている物件はこちら
- 山口県
マイページ物件数 - 3,056件
山口県新築一戸建て新着物件
-
-

-
- 新築一戸建て
- 3,798万円
-
下関市伊倉町2丁目
-
JR山陰本線綾羅木駅
-
-
-

-
- 新築一戸建て
- 2,288万円
-
山陽小野田市赤崎2丁目
-
JR小野田線小野田港駅
-
-
-

-
- 新築一戸建て
- 1,988万円
-
山陽小野田市赤崎2丁目
-
JR小野田線小野田港駅
-
-
-

-
- 新築一戸建て
- 1,788万円
-
宇部市大字際波
-
JR宇部線宇部駅
-
-
-

-
- 新築一戸建て
- 2,288万円
-
宇部市床波4丁目
-
JR宇部線床波駅
-
-
-

-
- 新築一戸建て
- 2,388万円
-
宇部市床波4丁目
-
JR宇部線床波駅
-
-
-

-
- 新築一戸建て
- 2,288万円
-
宇部市床波4丁目
-
JR宇部線床波駅
-
- お近くの店舗を探す
-
おすすめ物件
-
-

-
- 新築一戸建て
- 2,998万円
-
下関市大字延行
-
JR山陽本線新下関
-
-
-

-
- 新築一戸建て
- 2,188万円
-
防府市東三田尻1丁目
-
JR山陽本線防府
-
-
-

-
- 新築一戸建て
- 2,188万円
-
防府市東三田尻1丁目
-
JR山陽本線防府
-
-
-

-
- 新築一戸建て
- 2,388万円
-
山口市平井
-
JR山口線矢原
-
-
-

-
- 新築一戸建て
- 1,780万円
-
防府市華城中央1丁目
-
JR山陽本線防府
-
-
-

-
- 新築一戸建て
- 2,898万円
-
山口市湯田温泉6丁目
-
JR山口線湯田温泉
-
-
-

-
- 新築一戸建て
- 2,898万円
-
山口市黒川
-
JR山口線矢原
-
-
-

-
- 新築一戸建て
- 2,488万円
-
山口市平井
-
JR山口線矢原
-
-
-

-
- 新築一戸建て
- 2,998万円
-
山口市吉敷中東1丁目
-
JR山口線湯田温泉
-
-
-

-
- 新築一戸建て
- 1,988万円
-
防府市東三田尻1丁目
-
JR山陽本線防府
-























担当エージェント:河杉 亮
手の届きやすい価格で、新築の快適さを実感できる一邸です。ローンや資金計画のご相談も丁寧にサポートいたします。初めてのマイホーム購入に安心の住まいです。