札幌市北区新琴似七条5丁目の新築戸建
掲載情報更新日:2025年12月25日 次回更新予定日:2026年01月08日
- 3,890万円
-
- 借入ご希望金額
万円 - 借入期間
年 - 借入金利
% - 月々のお支払い金額
円
- 借入ご希望金額
※ 月々のお支払例は目安の試算となりますので、実際の金額とは異なる場合がございます。詳しくは店舗までお問合わせください。
- 札幌市北区新琴似七条5丁目
-
JR札沼線『新琴似』 徒歩12分 (約960m)
札幌市南北線『麻生』 徒歩14分 (約1120m)
JR札沼線『札幌』 バス乗車26分 新琴似8条6丁目 停 徒歩3分 (約240m)
札幌市北区新琴似七条5丁目一戸建て | 物件情報
◆◇新築4LDKの実力…仕事も遊びも昼寝すらグレードアップ!?◇◆
.
□ JR札沼線「新琴似」駅 徒歩12分
■ 地下鉄南北線「麻生」駅 徒歩14分
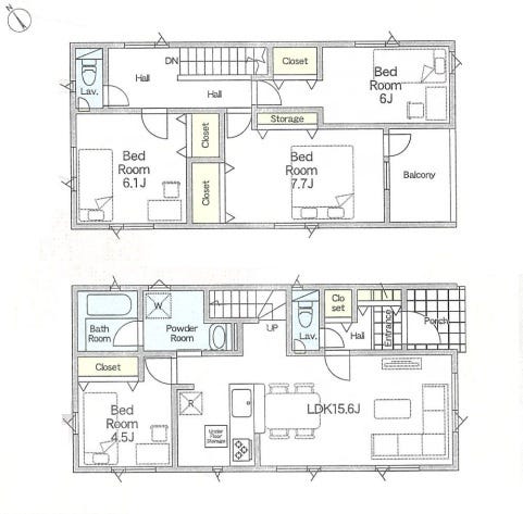
□ 土地面積:164.43㎡(約49.74坪)
■ 建物面積:95.17㎡(約28.78坪)の4LDK♪
□ 駐車スペース2台可能 ※車種による
■ 暮らしを守る、未来を守る。QUIEの耐震+制震
□ 防犯カメラで、家族の平和を見守り続けます
■ 日差しと風で心地よさ倍増。バルコニーがある幸せ
□ しまう場所に困らない。全居室収納でいつもスッキリ!
■ 家族みんなが快適!トイレ2ヶ所でストレスフリーな毎日
□ 忙しい日々に味方する、浴室換気乾燥暖房機付き
お気軽にお問い合わせください♪
物件の設備
- 電気
- 公営水道
- 公共下水
- プロパンガス
- 個別プロパン
- 給湯
- コンロ三口
- カウンターキッチン
- システムキッチン
- バス
- 浴室暖房
- 浴室乾燥機
- 浴室に窓
- トイレ
- トイレ2箇所
- 温水洗浄便座
- 高機能トイレ
- 室内洗濯機置場
- 洗髪洗面化粧台
- ディンプルキー
- モニタ付インターホン
- 防犯カメラ
- 火災警報器/報知機
- LDK15畳以上
- 2面採光
- 全室2面採光
- 複層ガラス
- 全居室複層ガラス
- フローリング
- 全室フローリング
- クローゼット
- 床下収納
- 全居室収納
- シューズボックス
- バルコニー
物件の特徴
- 小学校徒歩10分以内
- 前道6m以上
- 通風良好
- 陽当り良好
- 2階建
- フラット35Sに対応
物件詳細情報
| 価格 | 3,890万円 | 間取り | 4LDK |
|---|---|---|---|
| 物件種別 | 新築一戸建て | ||
| 所在地 | 北海道札幌市北区新琴似七条5丁目 | ||
| アクセス |
|
||
| 建物面積 | 公95.17㎡ | 駐車場 | あり 普通:2台 |
| 築年月 | 2026年(令和8年)04月予定 | 建築確認 | 第R07SHC112808号 |
| 建物構造 | 木造 2階建 | 工法 | |
| 主要採光 | 南東向 | バルコニー | 南東向4.86㎡ |
| 保証・評価 | |||
| 土地面積 | 公164.43㎡(49.74坪) | 接道 | 北東側(公道)幅 約10.8m 間口 約6.55m |
| 私道 | セットバック | ||
| 地目 | 宅地 | 地勢 | |
| 権利 | 所有権 |
||
| 都市計画 | 市街化区域 |
用途地域 | 近隣商業 |
| 建ぺい/容積率 | 80% / 200% | 土地国土法 | |
| 許可番号 | 建築基準法 | ||
| 法令制限 | 高度地区・準防火地域・22条指定区域・北側斜線高度地区・18m高度地区・絶対高さ10m・外壁後退1m | ||
| 小学区 | 新琴似小学校 徒歩4分 (約290m) | 中学区 | 新琴似中学校 徒歩4分 (約300m) |
| 現況 | 建築中 | 引渡 | 未記入 |
| その他費用 | |||
| 周辺環境 | ツルハドラッグ 新琴似7条店 徒歩4分 (約290m) セブンイレブン札幌新琴似4番通店 徒歩4分 (約260m) 札幌市立新琴似中学校 徒歩5分 (約360m) 札幌市立新琴似小学校 徒歩5分 (約380m) 新琴似幼稚園 徒歩6分 (約410m) 札幌新琴似八条郵便局 徒歩9分 (約650m) マックスバリュ新琴似店 徒歩14分 (約1110m) ラッキー新琴似四番通店 徒歩14分 (約1050m) 新琴似中央公園 徒歩14分 (約1070m) |
||
| 備考 | |||
| 物件番号 | 4395179 | 取引態様 | 媒介 |
取扱店舗情報
| 電話番号 | 011-299-9256 |
|---|---|
| 所在地 | 〒007-0842 北海道札幌市東区北42条東16丁目1-1 |
| 営業時間 | 9:00~18:00 |
| 定休日 | 水曜日、年末年始 |
| 宅建免許番号 | 北海道知事石狩(2)第8906号 |
| アクセス | 店舗への地図はこちら |

来店ご予約
北海道札幌市北区で価格が似ている物件はこちら
- 北海道
マイページ物件数 - 6,143件
最近見た物件
-
-

-
- 中古マンション
- 1,500万円
-
札幌市白石区南郷通3丁目南
-
札幌市東西線白石
-
北海道新築一戸建て新着物件
-
-

-
- 新築一戸建て
- 2,890万円
-
札幌市北区新琴似五条12丁目
-
札幌市南北線麻生駅
-
-
-

-
- 新築一戸建て
- 3,650万円
-
河東郡音更町柳町北区
-
JR根室本線帯広駅
-
-
-

-
- 新築一戸建て
- 3,650万円
-
河東郡音更町柳町北区
-
JR根室本線帯広駅
-
-
-

-
- 新築一戸建て
- 3,780万円
-
札幌市白石区北郷九条8丁目
-
JR函館本線白石駅
-
-
-

-
- 新築一戸建て
- 3,190万円
-
札幌市北区新琴似五条12丁目
-
札幌市南北線麻生駅
-
-
-

-
- 新築一戸建て
- 4,698万円
-
札幌市東区北十九条東10丁目
-
札幌市東豊線東区役所前駅
-
-
-

-
- 新築一戸建て
- 4,498万円
-
札幌市東区北十九条東10丁目
-
札幌市東豊線東区役所前駅
-
- お近くの店舗を探す
-
おすすめ物件
-
-

-
- 新築一戸建て
- 4,580万円
-
札幌市豊平区福住二条9丁目
-
札幌市東豊線福住
-
-
-

-
- 新築一戸建て
- 3,100万円
-
北見市東相内町
-
JR石北本線西北見
-
-
-

-
- 新築一戸建て
- 2,642.50万円
-
帯広市西十九条南2丁目
-
JR根室本線柏林台
-
-
-

-
- 新築一戸建て
- 3,450万円
-
北見市中央三輪2丁目
-
JR石北本線西北見
-
-
-

-
- 新築一戸建て
- 3,890万円
-
札幌市手稲区富丘一条7丁目
-
JR函館本線手稲
-
-
-

-
- 新築一戸建て
- 4,830万円
-
札幌市西区西野四条2丁目
-
札幌市東西線発寒南
-
-
-

-
- 新築一戸建て
- 2,698万円
-
函館市花園町
-
函館市電本線湯川線函館アリーナ前
-
-
-

-
- 新築一戸建て
- 3,790万円
-
札幌市手稲区富丘一条7丁目
-
JR函館本線手稲
-
-
-

-
- 新築一戸建て
- 3,490万円
-
札幌市北区北二十六条西15丁目
-
JR札沼線新川
-
-
-

-
- 新築一戸建て
- 3,845万円
-
北見市緑ケ丘1丁目
-
JR石北本線北見
-







担当エージェント:谷橋 力良
小中学校が徒歩4分と近いため、通学時にも交通の心配が少なく、子育て世帯にも嬉しい環境です♪
住宅ローン等住宅購入に関する事はなんでもご相談ください! ハウスドゥ札幌栄町 011-299-9256