新築戸建 リーブルガーデン高屋町高屋東 1号地
掲載情報更新日:2026年03月30日 次回更新予定日:2026年04月13日
- 2,380万円
-
- 借入ご希望金額
万円 - 借入期間
年 - 借入金利
% - 月々のお支払い金額
円
- 借入ご希望金額
※ 月々のお支払例は目安の試算となりますので、実際の金額とは異なる場合がございます。詳しくは店舗までお問合わせください。
- 東広島市高屋町高屋東
-
JR山陽本線『西高屋』 徒歩36分 (約2880m)
『四ツ堂バス停』 徒歩8分 (約640m)
新築戸建 リーブルガーデン高屋町高屋東 1号地一戸建て | 物件情報
物件の設備
- 公営水道
- 浄化槽
- 個別浄化槽
- 食器洗浄乾燥機
- コンロ三口
- カウンターキッチン
- システムキッチン
- バス
- ユニットバス
- オートバス
- バス1坪以上
- 追焚機能
- 浴室暖房
- 浴室乾燥機
- 浴室に窓
- トイレ
- トイレ2箇所
- 温水洗浄便座
- 室内洗濯機置場
- 洗髪洗面化粧台
- 室内物干機
- 照明器具
- ダウンライト
- 省エネ給湯器
- ディンプルキー
- モニタ付インターホン
- LDK15畳以上
- 2面採光
- 全居室複層ガラス
- フローリング
- 24時間換気システム
- 網戸
- クローゼット
- クローゼット2箇所
- クローゼット3箇所
- ウォークインクローゼット
- 床下収納
- 全居室収納
- シューズボックス
- バルコニー
- インナーバルコニー
物件の特徴
- 前道6m以上
- 閑静な住宅街
- 山が見える
- 田園風景
- 眺望良好
- 通風良好
- 陽当り良好
- 2階建
- 開発分譲地内
- 外壁サイディング
- 長期優良住宅
- 建築確認完了検査済証
- 新築
- 増改築設計図書
- 即入居可
- フラット35Sに対応
物件詳細情報
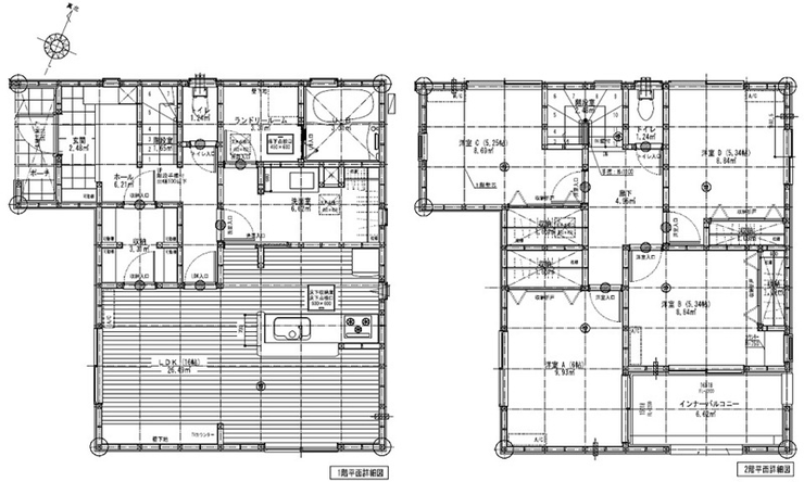
| 価格 | 2,380万円 | 間取り | 4LDK |
|---|---|---|---|
| 物件種別 | 新築一戸建て | ||
| 所在地 | 広島県東広島市高屋町高屋東 1 | ||
| アクセス |
|
||
| 建物面積 | 112.19㎡ | 駐車場 | あり 普通:2台 |
| 築年月 | 2026年(令和8年)02月予定 | 建築確認 | |
| 建物構造 | 木造 2階建 | 工法 | |
| 主要採光 | 南東向 | バルコニー | |
| 保証・評価 | 長期優良住宅認定通知書 |
||
| 分譲情報 | |||
| 土地面積 | 166.7㎡(50.42坪) | 接道 | 南西側(公道)幅 約6.0m |
| 私道 | セットバック | ||
| 地目 | 宅地 | 地勢 | |
| 権利 | 所有権 |
||
| 都市計画 | 調整区域 |
用途地域 | 指定無 |
| 建ぺい/容積率 | 60% / 200% | 土地国土法 | |
| 許可番号 | 【開発】指令東広開指(開宅)第55号 | 建築基準法 | |
| 法令制限 | |||
| 小学区 | 高屋東小学校 徒歩17分 (約1330m) | 中学区 | 高屋中学校 徒歩35分 (約2790m) |
| 現況 | 完工済 | 引渡 | 即 |
| その他費用 | |||
| 備考 | 設計・建設性能評価取得 耐震等級3 フラット35S(金利Aプラン) 地盤保証20年 主要構造部分35年住宅保証システム(有償修繕工事継続による) 引渡後無料点検実施(6ヶ月・2年・5年・10年の計4回) 認定長期優良住宅取得予定 |
||
| 物件番号 | 4396451 | 取引態様 | 媒介 |
取扱店舗情報
ハウスドゥ 八本松正力 株式会社ノア・コーポレーション 店舗詳細ページへ
| 電話番号 | 082-490-3341 |
|---|---|
| 所在地 | 〒739-0132 広島県東広島市八本松町正力1089-6 |
| 営業時間 | 9:00~18:00 |
| 定休日 | 水曜日、年末年始 |
| 宅建免許番号 | 広島県知事(1)第11474号 |
| アクセス | 店舗への地図はこちら |

来店ご予約
広島県東広島市で価格が似ている物件はこちら
- 広島県
マイページ物件数 - 4,653件
最近見た物件
-
-

-
- 新築一戸建て
- 4,250万円
-
大分市牧1丁目
-
JR日豊本線牧
-
広島県新築一戸建て新着物件
-
-

-
- 新築一戸建て
- 3,630万円
-
東広島市八本松南5丁目
-
JR山陽本線八本松駅
-
-
-

-
- 新築一戸建て
- 3,580万円
-
東広島市八本松南5丁目
-
JR山陽本線八本松駅
-
-
-

-
- 新築一戸建て
- 3,530万円
-
東広島市八本松南5丁目
-
JR山陽本線八本松駅
-
-
-

-
- 新築一戸建て
- 3,580万円
-
東広島市八本松南5丁目
-
JR山陽本線八本松駅
-
-
-

-
- 新築一戸建て
- 2,398万円
-
広島市東区上温品4丁目
-
上温品小学校入口バス停
-
-
-

-
- 新築一戸建て
- 2,398万円
-
広島市東区上温品4丁目
-
上温品小学校入口バス停
-
-
-

-
- 新築一戸建て
- 2,780万円
-
尾道市栗原町
-
JR山陽本線尾道駅
-
- お近くの店舗を探す
-
おすすめ物件
-
-

-
- 新築一戸建て
- 3,380万円
-
福山市草戸町4丁目
-
JR山陽本線福山
-
-
-

-
- 新築一戸建て
- 3,280万円
-
福山市本庄町中3丁目
-
JR福塩線備後本庄
-
-
-

-
- 新築一戸建て
- 3,290万円
-
福山市新涯町4丁目
-
JR山陽本線福山
-
-
-

-
- 新築一戸建て
- 3,850万円
-
福山市水呑町三新田1丁目
-
JR山陽本線福山
-
-
-

-
- 新築一戸建て
- 3,090万円
-
福山市新涯町4丁目
-
JR山陽本線福山
-
-
-

-
- 新築一戸建て
- 2,380万円
-
福山市神辺町字下御領
-
井原鉄道御領
-
-
-

-
- 新築一戸建て
- 2,890万円
-
福山市山手町3丁目
-
JR福塩線備後本庄
-
-
-

-
- 新築一戸建て
- 2,380万円
-
福山市新涯町4丁目
-
JR山陽本線東福山
-
-
-

-
- 新築一戸建て
- 2,990万円
-
福山市新涯町4丁目
-
JR山陽本線福山
-
-
-

-
- 新築一戸建て
- 3,480万円
-
福山市長者町
-
JR福塩線備後本庄
-










