新築戸建 リーブルガーデン高屋町高屋堀 1号地
掲載情報更新日:2026年05月12日 次回更新予定日:2026年05月26日
- 2,380万円
-
- 借入ご希望金額
万円 - 借入期間
年 - 借入金利
% - 月々のお支払い金額
円
- 借入ご希望金額
※ 月々のお支払例は目安の試算となりますので、実際の金額とは異なる場合がございます。詳しくは店舗までお問合わせください。
- 東広島市高屋町高屋堀
-
JR山陽本線『西高屋』 車6分(約2.6km)
『下堀バス停』 徒歩4分 (約320m)
新築戸建 リーブルガーデン高屋町高屋堀 1号地一戸建て | 物件情報
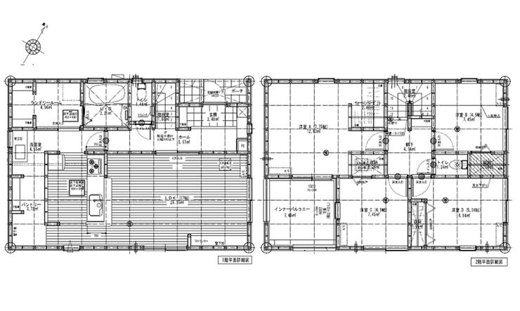
閑静な住宅街で陽当たり良好! 4LDKの110㎡超の広~い室内♪
〇おすすめ〇
限定2棟!!自然を感じられる場所♪
延床面積が110㎡以上の4LDKで家族それぞれのお部屋が持てますね。
キッチンには大容量収納できるパントリーはキッチンを一周できることや、
雨の日や寒い日でも安心のランドリールームなど『あったらいいなぁ』が揃う家♪
家事動線にも一カ所で完結できるこだわった間取りです♪収納も充実!
ぜひ一度ご内覧ください。
物件の設備
- 公営水道
- 浄化槽
- プロパンガス
- 個別プロパン
- 給湯
- パントリー
- コンロ三口
- カウンターキッチン
- システムキッチン
- バス
- ユニットバス
- オートバス
- バス1坪以上
- 追焚機能
- 浴室暖房
- 浴室乾燥機
- 浴室に窓
- トイレ
- トイレ2箇所
- 温水洗浄便座
- 室内洗濯機置場
- 洗髪洗面化粧台
- 洗面所独立
- 室内物干機
- 照明器具
- ダウンライト
- 省エネ給湯器
- ディンプルキー
- モニタ付インターホン
- 火災警報器/報知機
- LDK15畳以上
- 2面採光
- 全室2面採光
- 複層ガラス
- 全居室複層ガラス
- フローリング
- 24時間換気システム
- 網戸
- クローゼット
- クローゼット2箇所
- クローゼット3箇所
- ウォークインクローゼット
- 床下収納
- 全居室収納
- シューズボックス
- インナーバルコニー
物件の特徴
- 前道6m以上
- 緑豊かな住宅地
- 閑静な住宅街
- 山が見える
- 田園風景
- 陽当り良好
- 2階建
- 外壁サイディング
- 長期優良住宅
- 建築確認完了検査済証
- 新築
- 増改築設計図書
- 即入居可
- フラット35Sに対応
物件詳細情報
| 価格 | 2,380万円 | 間取り | 4LDK |
|---|---|---|---|
| 物件種別 | 新築一戸建て | ||
| 所在地 | 広島県東広島市高屋町高屋堀 1 | ||
| アクセス |
|
||
| 建物面積 | 113.44㎡ | 駐車場 | あり 普通:2台 |
| 築年月 | 2026年(令和8年)02月予定 | 建築確認 | |
| 建物構造 | 木造 2階建 | 工法 | |
| 主要採光 | 南東向 | バルコニー | |
| 保証・評価 | 長期優良住宅認定通知書 |
||
| 分譲情報 | |||
| 土地面積 | 165.87㎡(50.17坪) | 接道 | 北西側(公道)幅 約6.0m |
| 私道 | セットバック | ||
| 地目 | 宅地 | 地勢 | |
| 権利 | 所有権 |
||
| 都市計画 | 用途地域 | ||
| 建ぺい/容積率 | 土地国土法 | ||
| 許可番号 | 建築基準法 | ||
| 法令制限 | |||
| 小学区 | 高美が丘小学校 徒歩20分 (約1600m) | 中学区 | 高美が丘中学校 徒歩23分 (約1800m) |
| 現況 | 完工済 | 引渡 | 即 |
| その他費用 | |||
| 備考 | 設計・建設性能評価取得 耐震等級3 フラット35S(金利Aプラン) 地盤保証20年 主要構造部分35年住宅保証システム(有償修繕工事継続による) 引渡後無料点検実施(6ヶ月・2年・5年・10年の計4回) |
||
| 物件番号 | 4396478 | 取引態様 | 媒介 |
取扱店舗情報
ハウスドゥ 八本松正力 株式会社ノア・コーポレーション 店舗詳細ページへ
| 電話番号 | 082-490-3341 |
|---|---|
| 所在地 | 〒739-0132 広島県東広島市八本松町正力1089-6 |
| 営業時間 | 9:00~18:00 |
| 定休日 | 水曜日、年末年始 |
| 宅建免許番号 | 広島県知事(1)第11474号 |
| アクセス | 店舗への地図はこちら |

来店ご予約
広島県東広島市で価格が似ている物件はこちら
- 広島県
マイページ物件数 - 4,658件
最近見た物件
-
-

-
- 中古一戸建て
- 580万円
-
八戸市大字是川字坊ア坂
-
鍛冶畑バス停
-
-
-

-
- 土地
- 2,298万円
-
名護市宇茂佐の森4丁目
-
北部会館バス停
-
-
-

-
- 新築一戸建て
- 2,390万円
-
大垣市津村町1丁目
-
JR東海道本線大垣
-
広島県新築一戸建て新着物件
-
-

-
- 新築一戸建て
- 2,997万円
-
福山市山手町5丁目
-
JR福塩線備後本庄駅
-
-
-

-
- 新築一戸建て
- 2,895万円
-
福山市山手町5丁目
-
JR福塩線備後本庄駅
-
-
-

-
- 新築一戸建て
- 3,197万円
-
尾道市西藤町
-
JR山陽本線松永駅
-
-
-

-
- 新築一戸建て
- 2,998万円
-
福山市水呑町
-
JR山陽本線福山駅
-
-
-

-
- 新築一戸建て
- 2,980万円
-
東広島市八本松飯田4丁目
-
JR山陽本線八本松駅
-
-
-

-
- 新築一戸建て
- 2,980万円
-
東広島市八本松飯田4丁目
-
JR山陽本線八本松駅
-
-
-

-
- 新築一戸建て
- 3,180万円
-
広島市佐伯区藤の木2丁目
-
JR山陽本線五日市駅
-
- お近くの店舗を探す
-
おすすめ物件
-
-

-
- 新築一戸建て
- 3,850万円
-
福山市水呑町三新田1丁目
-
JR山陽本線福山
-
-
-

-
- 新築一戸建て
- 3,280万円
-
福山市長者町
-
JR福塩線備後本庄
-
-
-

-
- 新築一戸建て
- 2,990万円
-
福山市新涯町4丁目
-
JR山陽本線福山
-
-
-

-
- 新築一戸建て
- 3,090万円
-
福山市新涯町4丁目
-
JR山陽本線福山
-
-
-

-
- 新築一戸建て
- 3,080万円
-
福山市本庄町中3丁目
-
JR福塩線備後本庄
-
-
-

-
- 新築一戸建て
- 4,680万円
-
広島市佐伯区五日市中央3丁目
-
広島電鉄宮島線楽々園
-
-
-

-
- 新築一戸建て
- 2,998万円
-
広島市佐伯区五日市中央5丁目
-
JR山陽本線五日市
-
-
-

-
- 新築一戸建て
- 2,790万円
-
福山市山手町3丁目
-
JR福塩線備後本庄
-
-
-

-
- 新築一戸建て
- 3,290万円
-
福山市新涯町4丁目
-
JR山陽本線福山
-
-
-

-
- 新築一戸建て
- 2,380万円
-
福山市神辺町字下御領
-
井原鉄道御領
-













