新築戸建 八王子市子安町1丁目 全2棟 NO.2
掲載情報更新日:2026年01月28日 次回更新予定日:2026年02月11日
- 4,390万円
-
- 借入ご希望金額
万円 - 借入期間
年 - 借入金利
% - 月々のお支払い金額
円
- 借入ご希望金額
※ 月々のお支払例は目安の試算となりますので、実際の金額とは異なる場合がございます。詳しくは店舗までお問合わせください。
- 八王子市子安町1丁目
-
JR中央本線『八王子』 徒歩11分 (約880m)
京王線『京王八王子』 徒歩10分 (約800m)
JR中央本線『八王子』 車5分(約1.0km)
新築戸建 八王子市子安町1丁目 全2棟 NO.2一戸建て | 物件情報
\ハウスドゥ 八王子駅北/ 最大5000円分QUOカードPayプレゼント
\あれこれ不動産サイトを見なくても当店で解決/
当店はエリア内の物件の大半を最・新・情・報で掲載!
ほかのページで気になる物件もご相談ください。
◆お子様の足でもラクラクの距離!小学校まで徒歩約10分です♪
◆グルメシティ京王八王子店まで徒歩9分
・・・24時間営業しているスーパーです。
◆セブンイレブン八王子明神町3丁目店まで徒歩7分
◆クリエイトS・D八王子北野町店まで徒歩9分
物件の設備
- 電気
- 上水道
- 公営水道
- 下水道
- 公共下水
- プロパンガス
- 集中プロパン
- 給湯
- 食品庫
- コンロ三口
- システムキッチン
- バス
- ユニットバス
- バス1坪以上
- 追焚機能
- 浴室に窓
- トイレ
- トイレ2箇所
- 温水洗浄便座
- 室内洗濯機置場
- 洗髪洗面化粧台
- 洗面所独立
- モニタ付インターホン
- LDK15畳以上
- 2面採光
- フローリング
- 全室フローリング
- クローゼット
- 納戸
- 全居室収納
- シューズインクローク
物件の特徴
- 南向
- 3階建以上
- 即入居可
- フラット35Sに対応
物件詳細情報
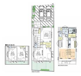
| 価格 | 4,390万円 | 間取り | 2LDK+S |
|---|---|---|---|
| 物件種別 | 新築一戸建て | ||
| 所在地 | 東京都八王子市子安町1丁目 NO.2 | ||
| アクセス |
|
||
| 建物面積 | 105.78㎡ | 駐車場 | あり 普通:1台 |
| 築年月 | 2025年(令和7年)11月築 | 建築確認 | 第2025SBC-確00156Y号 |
| 建物構造 | 木造 3階建 | 工法 | |
| 主要採光 | 南向 | バルコニー | |
| 保証・評価 | |||
| 分譲情報 | |||
| 土地面積 | 公60.08㎡(18.17坪) | 接道 | 東側(公道)幅 約5.0m 間口 約6.90m |
| 私道 | セットバック | ||
| 地目 | 宅地 | 地勢 | |
| 権利 | 所有権 |
||
| 都市計画 | 市街化区域 |
用途地域 | 2種住居 |
| 建ぺい/容積率 | 60% / 200% | 土地国土法 | |
| 許可番号 | 建築基準法 | ||
| 法令制限 | 高度地区・準防火地域 | ||
| 小学区 | いずみの森義務教育学校(小学校学区) 徒歩10分 (約750m) | 中学区 | いずみの森義務教育学校(中学校学区) 徒歩10分 (約750m) |
| 現況 | 完工済 | 引渡 | 即 |
| その他費用 | |||
| 周辺環境 | 八王子市立いずみの森義務教育学校 徒歩10分 (約750m) 八王子市立いずみの森義務教育学校 徒歩10分 (約750m) グルメシティ 京王八王子店 徒歩9分 (約650m) セブンイレブン 八王子明神町3丁目店 徒歩7分 (約500m) クリエイトS・D 八王子北野町店 徒歩9分 (約700m) 秋山内科医院 徒歩8分 (約600m) 愛光大和田保育園 ステーション 徒歩12分 (約900m) Gakkenこどもえん八王子北館 徒歩13分 (約1000m) 明神町なかよし公園 徒歩7分 (約500m) Bon・mu 徒歩11分 (約850m) |
||
| 備考 | ※完成物件は契約後3週間以内の決済が基本条件となります ※電波障害によるケーブルテレビ、共聴アンテナ申込はお客様負担となります ※住宅ローン減税ご利用の場合における 住宅省エネルギー性能証明書取得費用は55,000円(税込)となります ※フラット35ご利用の場合における 適合証明書取得費用は132,000円(税込)となります ※土地面積に関しては机上分筆のため、多少増減がある場合があります (増減精算はいたしません) |
||
| 物件番号 | 4438651 | 取引態様 | 媒介 |
取扱店舗情報
ハウスドゥ 八王子駅北 ファミリアホームサービス株式会社 店舗詳細ページへ
| 電話番号 | 042-649-3807 |
|---|---|
| 所在地 | 〒192-0063 東京都八王子市元横山町2丁目2-4 第8小池ビル1階 |
| 営業時間 | 10:00~18:00 |
| 定休日 | 年末年始 |
| 宅建免許番号 | 国土交通大臣(2)第9218号 |
| アクセス | 店舗への地図はこちら |

来店ご予約
東京都八王子市で価格が似ている物件はこちら
- 東京都
マイページ物件数 - 5,261件
最近見た物件
-
-

-
- 新築一戸建て
- 5,499万円
-
名古屋市瑞穂区萩山町2丁目
-
名古屋市名城線瑞穂運動場東
-
東京都新築一戸建て新着物件
-
-

-
- 新築一戸建て
- 1億580万円
-
調布市入間町1丁目
-
小田急小田原線成城学園前駅
-
-
-

-
- 新築一戸建て
- 1億380万円
-
調布市入間町1丁目
-
小田急小田原線成城学園前駅
-
-
-

-
- 新築一戸建て
- 1億380万円
-
調布市入間町1丁目
-
小田急小田原線成城学園前駅
-
-
-

-
- 新築一戸建て
- 3,980万円
-
立川市上砂町3丁目
-
西武拝島線武蔵砂川駅
-
-
-

-
- 新築一戸建て
- 9,980万円
-
調布市入間町1丁目
-
小田急小田原線成城学園前駅
-
-
-

-
- 新築一戸建て
- 6,999万円
-
調布市深大寺東町3丁目
-
京王線つつじヶ丘駅
-
-
-

-
- 新築一戸建て
- 6,699万円
-
調布市深大寺東町3丁目
-
京王線つつじヶ丘駅
-
- お近くの店舗を探す
-
おすすめ物件
-
-

-
- 新築一戸建て
- 6,499万円
-
調布市深大寺東町4丁目
-
京王線つつじヶ丘
-
-
-

-
- 新築一戸建て
- 1億4,500万円
-
世田谷区砧7丁目
-
小田急小田原線祖師ヶ谷大蔵
-
-
-

-
- 新築一戸建て
- 1億1,200万円
-
練馬区東大泉3丁目
-
西武池袋・豊島線大泉学園
-
-
-

-
- 新築一戸建て
- 3,780万円
-
足立区大谷田4丁目
-
東京メトロ千代田線北綾瀬
-
-
-

-
- 新築一戸建て
- 6,980万円
-
練馬区関町北4丁目
-
西武新宿線武蔵関
-
-
-

-
- 新築一戸建て
- 7,388万円
-
江戸川区南葛西5丁目
-
JR京葉線葛西臨海公園
-
-
-

-
- 新築一戸建て
- 5,299万円
-
八王子市高尾町
-
JR中央本線高尾
-
-
-

-
- 新築一戸建て
- 8,799万円
-
練馬区東大泉7丁目
-
西武池袋・豊島線大泉学園
-
-
-

-
- 新築一戸建て
- 6,499万円
-
調布市深大寺東町4丁目
-
京王線つつじヶ丘
-
-
-

-
- 新築一戸建て
- 3,780万円
-
八王子市泉町
-
JR中央本線西八王子
-




























担当エージェント:亘 大地
《ぜひ、現地をご見学してみてください》やはり「立地」は重要です。現地見学で「立地」をリアルに体感してみてください。