岡山市北区大内田の新築戸建
NEW 10.12掲載情報更新日:2025年10月12日 次回更新予定日:2025年10月26日
- 3,570万円
-
- 借入ご希望金額
万円 - 借入期間
年 - 借入金利
% - 月々のお支払い金額
円
- 借入ご希望金額
※ 月々のお支払例は目安の試算となりますので、実際の金額とは異なる場合がございます。詳しくは店舗までお問合わせください。
- 岡山市北区大内田
-
JR山陽本線『庭瀬』 徒歩19分 (約1510m)
『流通センター卸売団地停』 徒歩23分 (約1810m)
岡山市北区大内田一戸建て | 物件情報
◆並列3台駐車可能です! ◆WICでスッキリ収納できます!
物件の設備
- 電気
- 公営水道
- 浄化槽
- プロパンガス
- 個別プロパン
- カウンターキッチン
- トイレ2箇所
- エアコン2基
- 照明器具
- LDK15畳以上
- 和室
- ウォークインクローゼット
- バルコニー
物件の特徴
- 南側道路面す
- 2階建
物件詳細情報
| 価格 | 3,570万円 | 間取り | 4LDK |
|---|---|---|---|
| 物件種別 | 新築一戸建て | ||
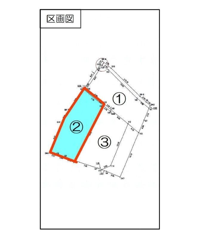
| 所在地 | 岡山県岡山市北区大内田 2号地 | ||
| アクセス |
|
||
| 建物面積 | 97.5㎡ | 駐車場 | あり 普通:3台 |
| 築年月 | 2025年(令和7年)10月予定 | 建築確認 | 第HP04-4025466号 |
| 建物構造 | 木造 2階建 | 工法 | |
| 主要採光 | バルコニー | ||
| 保証・評価 | |||
| 分譲情報 | |||
| 土地面積 | 160.03㎡(48.40坪) | 接道 | 南側幅 約4.9m |
| 私道 | セットバック | ||
| 地目 | 宅地 | 地勢 | |
| 権利 | 所有権 |
||
| 都市計画 | 調整区域 |
用途地域 | 指定無 |
| 建ぺい/容積率 | 60% / 200% | 土地国土法 | |
| 許可番号 | 建築基準法 | ||
| 法令制限 | |||
| 小学区 | 吉備小学校 徒歩32分 (約2510m) | 中学区 | 吉備中学校 徒歩37分 (約2910m) |
| 現況 | 建築中 | 引渡 | 期日指定:2025年11月 |
| その他費用 | |||
| 周辺環境 | 庭瀬駅 徒歩23分 (約1800m) 岡山市立吉備小学校 徒歩29分 (約2300m) 岡山市立吉備中学校 徒歩33分 (約2590m) 第二吉備こども園 徒歩12分 (約910m) マルナカ庭瀬店 徒歩22分 (約1710m) ファミリーマート岡山南庭瀬店 徒歩9分 (約720m) マツモトキヨシ庭瀬店 徒歩32分 (約2540m) かりや内科 徒歩24分 (約1870m) 中国銀行庭瀬支店 徒歩26分 (約2060m) MrMax岡山西店 徒歩40分 (約3140m) |
||
| 備考 | ◆並列3台駐車可能です! ◆WICでスッキリ収納できます! ※土地+建物/エアコン2台/家具/照明/レースカーテン/外構工事/消費税を含む ※延長敷地と側溝部分、北側法面部分の無償譲渡有 ※排水用地(122-16)は①号地へ無償譲渡、②③号地の排水地役権設定有。 ※排水用地、側溝部分の維持管理は3者で、①号地延長敷地の維持管理は①③の購入者にて行う ※①号地延長敷地へ③号地の地役権設定有、各号地の側溝部分へ互いに地役権設定行います。 ※初期保証20年対象 |
||
| 物件番号 | 4446377 | 取引態様 | 媒介 |
取扱店舗情報
ハウスドゥ 倉敷駅東 株式会社アールイープロジェクト 店舗詳細ページへ
| 電話番号 | 086-424-6400 |
|---|---|
| 所在地 | 〒710-0003 岡山県倉敷市平田681-4 |
| 営業時間 | 9:00~18:00 |
| 定休日 | 水曜日、年末年始 |
| 宅建免許番号 | 岡山県知事(2)第5855号 |
| アクセス | 店舗への地図はこちら |

来店ご予約
岡山県岡山市北区で価格が似ている物件はこちら
- 岡山県
マイページ物件数 - 4,354件
最近見た物件
-
-

-
- 中古マンション
- 4,190万円
-
福岡市東区香椎浜4丁目
-
西鉄貝塚線西鉄香椎
-
-
-

-
- 中古マンション
- 2,580万円
-
明石市小久保1丁目
-
JR山陽本線西明石
-
岡山県新築一戸建て新着物件
- お近くの店舗を探す
-
おすすめ物件
-
-

-
- 新築一戸建て
- 4,980万円
-
総社市中央1丁目
-
JR伯備線総社
-
-
-

-
- 新築一戸建て
- 2,950万円
-
岡山市北区今保
-
JR山陽本線庭瀬
-
-
-

-
- 新築一戸建て
- 3,080万円
-
岡山市北区庭瀬
-
JR山陽本線庭瀬
-
-
-

-
- 新築一戸建て
- 3,380万円
-
岡山市北区撫川
-
JR山陽本線庭瀬
-
-
-

-
- 新築一戸建て
- 2,780万円
-
岡山市中区湊
-
岡山電軌東山本線東山岡電ミュージアム
-
-
-

-
- 新築一戸建て
- 2,880万円
-
岡山市南区浜野4丁目
-
JR宇野線備前西市
-
-
-

-
- 新築一戸建て
- 2,880万円
-
岡山市中区山崎
-
JR赤穂線大多羅
-
-
-

-
- 新築一戸建て
- 2,880万円
-
岡山市中区湊
-
岡山電軌東山本線東山岡電ミュージアム
-
-
-

-
- 新築一戸建て
- 2,880万円
-
岡山市南区福富中2丁目
-
JR宇野線備前西市
-
-
-

-
- 新築一戸建て
- 2,598万円
-
津山市高野本郷
-
JR因美線高野
-











