新築戸建 倉敷市児島下の町10丁目第2 琴浦南小学校エリア
掲載情報更新日:2026年01月15日 次回更新予定日:2026年01月29日
- 2,580万円
-
- 借入ご希望金額
万円 - 借入期間
年 - 借入金利
% - 月々のお支払い金額
円
- 借入ご希望金額
※ 月々のお支払例は目安の試算となりますので、実際の金額とは異なる場合がございます。詳しくは店舗までお問合わせください。
- 倉敷市児島下の町10丁目
-
JR本四備讃線『児島』 車7分(約2.8km)
JR本四備讃線『児島』 バス乗車14分 下電バス [J1]ジーンズバス 新常盤橋 停 徒歩3分 (約240m)
新築戸建 倉敷市児島下の町10丁目第2 琴浦南小学校エリア一戸建て | 物件情報
物件の設備
- 電気
- 上水道
- 下水道
- 給湯
- 浄水器
- カウンターキッチン
- システムキッチン
- バス
- 追焚機能
- 浴室乾燥機
- 浴室に窓
- トイレ
- トイレ2箇所
- 温水洗浄便座
- 室内洗濯機置場
- 洗髪洗面化粧台
- 洗面所独立
- ダウンライト
- 人感照明センサー
- 省エネ給湯器
- ディンプルキー
- ダブルロックキー
- 非接触型ICカードキー
- モニタ付インターホン
- LDK15畳以上
- 和室
- 2面採光
- 複層ガラス
- 全居室複層ガラス
- フローリング
- 一部フローリング
- 24時間換気システム
- クローゼット
- クローゼット2箇所
- ウォークインクローゼット
- 納戸
- シューズボックス
物件の特徴
- ノンホルムアルデヒド
- 地盤調査済
- 耐震構造
- 陽当り良好
- 2階建
- 整形地
- 外壁サイディング
- 建築確認完了検査済証
- 新築
- 増改築設計図書
- 即入居可
- フラット35Sに対応
物件詳細情報
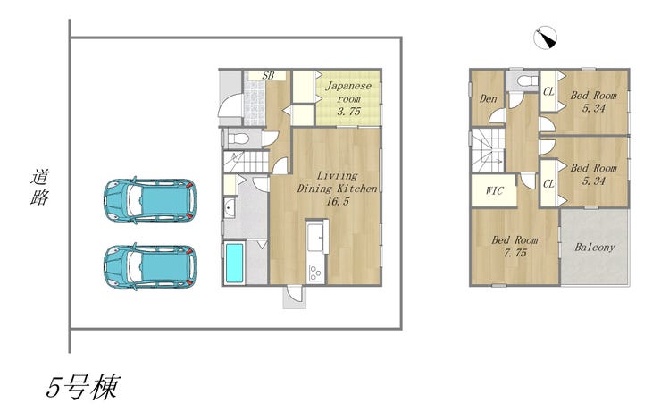
| 価格 | 2,580万円 | 間取り | 4LDK+S |
|---|---|---|---|
| 物件種別 | 新築一戸建て | ||
| 所在地 | 岡山県倉敷市児島下の町10丁目405-6 5号棟 | ||
| アクセス |
|
||
| 建物面積 | 99.36㎡ | 駐車場 | あり 普通:2台 |
| 築年月 | 2025年(令和7年)06月築 | 建築確認 | 第R06SHC126706号 |
| 建物構造 | 木造 在来軸組工法 2階建 | 工法 | |
| 主要採光 | バルコニー | ||
| 保証・評価 | |||
| 分譲情報 | 【販売戸数】:4戸 【価格】:2,380万円 ~2,580万円 |
||
| 土地面積 | 146.2㎡(44.22坪) | 接道 | 北西側幅 約5.0m |
| 私道 | セットバック | ||
| 地目 | 宅地 | 地勢 | |
| 権利 | 所有権 |
||
| 都市計画 | 市街化区域 |
用途地域 | 商業 |
| 建ぺい/容積率 | 80% / 400% | 土地国土法 | |
| 許可番号 | 建築基準法 | ||
| 法令制限 | 防火地域・景観法 | ||
| 小学区 | 琴浦南小学校 徒歩10分 (約750m) | 中学区 | 琴浦中学校 徒歩12分 (約900m) |
| 現況 | 完工済 | 引渡 | 即 |
| その他費用 | |||
| 備考 | |||
| 物件番号 | 4446447 | 取引態様 | 媒介 |
取扱店舗情報
| 電話番号 | 0866-95-2775 |
|---|---|
| 所在地 | 〒719-1131 岡山県総社市中央1丁目21-101 |
| 営業時間 | 10:00~18:00 |
| 定休日 | 火曜日、水曜日、年末年始 |
| 宅建免許番号 | 岡山県知事(2)第5846号 |
| アクセス | 店舗への地図はこちら |

来店ご予約
岡山県倉敷市で価格が似ている物件はこちら
- 岡山県
マイページ物件数 - 4,492件
最近見た物件
岡山県新築一戸建て新着物件
- お近くの店舗を探す
-


















