倉敷市連島町鶴新田の新築戸建
掲載情報更新日:2025年12月21日 次回更新予定日:2026年01月04日
- 2,950万円
-
- 借入ご希望金額
万円 - 借入期間
年 - 借入金利
% - 月々のお支払い金額
円
- 借入ご希望金額
※ 月々のお支払例は目安の試算となりますので、実際の金額とは異なる場合がございます。詳しくは店舗までお問合わせください。
- 倉敷市連島町鶴新田
-
水島臨海鉄道『水島』 車20分(約km)
倉敷市連島町鶴新田一戸建て | 物件情報
●近隣の交通量は少なく、閑静な場所です
●小学校まで徒歩10分圏内
●駐車場3台可能(車種による)
※景観法による規制有
物件の設備
- 上水道
- 公営水道
- プロパンガス
- 個別プロパン
- 食器洗浄乾燥機
- システムキッチン
- 浴室乾燥機
- LDK15畳以上
- ウォークインクローゼット
- 全居室収納
物件の特徴
- セキュリティ充実
- 南側道路面す
- 陽当り良好
- 2階建
- 角地
- フラット35
- S適合証明書
物件詳細情報
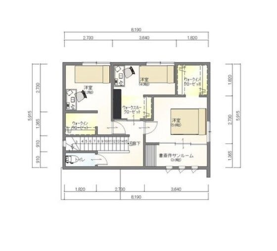
| 価格 | 2,950万円 | 間取り | 3LDK |
|---|---|---|---|
| 物件種別 | 新築一戸建て | ||
| 所在地 | 岡山県倉敷市連島町鶴新田 | ||
| アクセス |
|
||
| 建物面積 | 101.02㎡ | 駐車場 | あり |
| 築年月 | 2026年(令和8年)06月予定 | 建築確認 | 2025岡セ確建第001043号 |
| 建物構造 | 木造 2階建 | 工法 | |
| 主要採光 | バルコニー | ||
| 保証・評価 | フラット35S適合証明書 |
||
| 土地面積 | 公161.77㎡(48.93坪) | 接道 | 南側幅 約3.5m |
| 私道 | セットバック | ||
| 地目 | 宅地 | 地勢 | |
| 権利 | 所有権 |
||
| 都市計画 | 市街化区域 |
用途地域 | 準工業 |
| 建ぺい/容積率 | 60% / 200% | 土地国土法 | |
| 許可番号 | 建築基準法 | ||
| 法令制限 | |||
| 小学区 | 連島南小学校 徒歩10分 (約800m) | 中学区 | 連島南中学校 徒歩17分 (約1300m) |
| 現況 | 建築中 | 引渡 | 未記入 |
| その他費用 | |||
| 周辺環境 | 幼保連携型認定こども園 めばえ保育園 徒歩3分 (約230m) ニシナフードバスケット連島南店 徒歩4分 (約310m) セブンイレブン倉敷連島鶴新田店 徒歩4分 (約290m) くすりのレデイ 鶴新田店 徒歩6分 (約420m) ローソン倉敷鶴新田店 徒歩9分 (約670m) 倉敷リバーサイド病院 徒歩9分 (約670m) 倉敷市立連島南幼稚園 徒歩9分 (約690m) 水島信用金庫鶴の浦支店 徒歩17分 (約1330m) 倉敷鶴の浦郵便局 徒歩18分 (約1410m) ザ・ビッグ 連島店 徒歩19分 (約1500m) |
||
| 備考 | ●近隣の交通量は少なく、閑静な場所です ●小学校まで徒歩10分圏内 ●駐車場3台可能(車種による) ※景観法による規制有 |
||
| 物件番号 | 4455063 | 取引態様 | 媒介 |
取扱店舗情報
ハウスドゥ 倉敷駅東 株式会社アールイープロジェクト 店舗詳細ページへ
| 電話番号 | 086-424-6400 |
|---|---|
| 所在地 | 〒710-0003 岡山県倉敷市平田681-4 |
| 営業時間 | 9:00~18:00 |
| 定休日 | 水曜日、年末年始 |
| 宅建免許番号 | 岡山県知事(2)第5855号 |
| アクセス | 店舗への地図はこちら |

来店ご予約
岡山県倉敷市で価格が似ている物件はこちら
- 岡山県
マイページ物件数 - 4,490件
最近見た物件
-
-

-
- 土地
- 390万円
-
豊橋市高師町字西沢
-
豊橋鉄道渥美線高師
-
-
-

-
- 土地
- 900万円
-
中津川市茄子川
-
JR中央本線美乃坂本
-
-
-

-
- 土地
- 650万円
-
各務原市緑苑南2丁目
-
JR高山本線鵜沼
-
岡山県新築一戸建て新着物件
-
-

-
- 新築一戸建て
- 4,380万円
-
岡山市東区広谷
-
JR赤穂線大多羅駅
-
-
-

-
- 新築一戸建て
- 3,380万円
-
瀬戸内市邑久町山田庄
-
JR赤穂線邑久駅
-
-
-

-
- 新築一戸建て
- 3,380万円
-
瀬戸内市邑久町山田庄
-
JR赤穂線邑久駅
-
-
-

-
- 新築一戸建て
- 3,380万円
-
瀬戸内市邑久町山田庄
-
JR赤穂線邑久駅
-
-
-

-
- 新築一戸建て
- 3,280万円
-
瀬戸内市邑久町山田庄
-
JR赤穂線邑久駅
-
-
-

-
- 新築一戸建て
- 4,340万円
-
岡山市北区今4丁目
-
JR山陽本線北長瀬駅
-
-
-

-
- 新築一戸建て
- 4,450万円
-
岡山市北区大安寺東町
-
JR吉備線大安寺駅
-
- お近くの店舗を探す
-






















