宗像市ひかりヶ丘4丁目の新築戸建
掲載情報更新日:2026年01月23日 次回更新予定日:2026年02月06日
- 3,448万円
-
- 借入ご希望金額
万円 - 借入期間
年 - 借入金利
% - 月々のお支払い金額
円
- 借入ご希望金額
※ 月々のお支払例は目安の試算となりますので、実際の金額とは異なる場合がございます。詳しくは店舗までお問合わせください。
- 宗像市ひかりヶ丘4丁目
-
JR鹿児島本線『東郷』 徒歩47分 (約3700m)
JR鹿児島本線『東郷』 バス乗車12分 西鉄バス 上福崎 停 徒歩7分 (約500m)
JR鹿児島本線『赤間』 バス乗車35分 宗像市コミュニティバス 樟陽台1丁目 停 徒歩3分 (約170m)
宗像市ひかりヶ丘4丁目一戸建て | 物件情報
\室内物干しできるスペースあり♪/●○お庭スペース付き●○ご家族で使用できるクローゼット付き●○
河東西小学校まで徒歩3分。
毎日の通学が身近で、子育て世帯にうれしい立地です。
残り3棟となりました。
内覧予約受付中です。
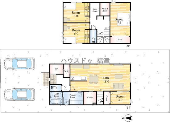
住まいの特徴は、玄関からシューズインクローク
→パントリー→キッチン→LDKへと回遊できる動線設計。
買い物帰りの収納や家事の流れを意識した配置で、
生活のリズムが整いやすい間取りです。
バルコニーは設けず、その分庭スペースを確保。
外遊びや家庭菜園、ちょっとした作業など、
地面とつながる使い方ができます。
駅までは徒歩47分と距離がありますが、
徒歩7分の場所にバス停があり、移動の選択肢を確保。
さらにそのバスはスーパー前まで直通運行しており、
日常の買い物もスムーズです。
立地の特性を理解したうえで、
動線や使い勝手を重視した住まいをお探しの方に、
ぜひご覧いただきたい物件です。
物件の設備
- 電気
- オール電化
- 上水道
- 下水道
- 浄水器
- 食器乾燥機
- 食器洗浄乾燥機
- 食品庫
- IHクッキングヒータ
- コンロ三口
- カウンターキッチン
- システムキッチン
- バス1坪以上
- 追焚機能
- 浴室暖房
- 浴室乾燥機
- トイレ2箇所
- 室内洗濯機置場
- 洗髪洗面化粧台
- 洗面所独立
- モニタ付インターホン
- 火災警報器/報知機
- LDK18畳以上
- 天井高2.7m以上
- 複層ガラス
- 全居室複層ガラス
- 全室フローリング
- シャッター雨戸
- クローゼット3箇所
- ウォークインクローゼット
- 床下収納
- 全居室収納
- シューズインクローク
物件の特徴
- 小学校徒歩10分以内
- 前道6m以上
- 閑静な住宅街
- 陽当り良好
- 2階建
- 即入居可
物件詳細情報
| 価格 | 3,448万円 | 間取り | 4LDK |
|---|---|---|---|
| 物件種別 | 新築一戸建て | ||
| 所在地 | 福岡県宗像市ひかりヶ丘4丁目 6号地 | ||
| アクセス |
|
||
| 建物面積 | 109.3㎡ | 駐車場 | あり 普通:2台 |
| 築年月 | 2026年(令和8年)01月築 | 建築確認 | 第R07確認建築福住セ北00237号 |
| 建物構造 | 木造 2階建 | 工法 | |
| 主要採光 | バルコニー | ||
| 保証・評価 | |||
| 分譲情報 | 【販売戸数】:3戸 【価格】:3,298万円 ~3,548万円 【最多価格】:3,200万円 ~3,300万円(1戸) 【土地面積】:201.46㎡ ~201.47㎡ |
||
| 土地面積 | 実201.46㎡(60.94坪) | 接道 | 北側(公道)幅 約6.0m 間口 約8.60m |
| 私道 | セットバック | ||
| 地目 | 宅地 | 地勢 | |
| 権利 | 所有権 |
||
| 都市計画 | 市街化区域 |
用途地域 | 1種低層 |
| 建ぺい/容積率 | 40% / 60% | 土地国土法 | |
| 許可番号 | 建築基準法 | ||
| 法令制限 | 高さ最高限度有・敷地面積最低限度有・法22条区域・壁面後退有 | ||
| 小学区 | 河東西小学校 徒歩3分 (約220m) | 中学区 | 河東中学校 徒歩37分 (約2900m) |
| 現況 | 完工済 | 引渡 | 即 |
| その他費用 | |||
| 周辺環境 | 河東西小学校 徒歩3分 (約220m) 河東中学校 徒歩37分 (約2900m) マルキョウ宗像店 徒歩28分 (約2200m) ルミエール赤間店 徒歩32分 (約2500m) デイリーヤマザキ宗像ひかりヶ丘店 徒歩12分 (約950m) セブンイレブン宗像東郷橋店 徒歩30分 (約2400m) 宗像ひかりヶ丘簡易郵便局 徒歩10分 (約750m) かとう西保育園 徒歩12分 (約950m) ドラッグストアモリ宗像店 徒歩30分 (約2400m) 北九州宗像中央病院 徒歩30分 (約2400m) |
||
| 備考 | |||
| 物件番号 | 4500022 | 取引態様 | 媒介 |
取扱店舗情報
| 電話番号 | 0940-62-6292 |
|---|---|
| 所在地 | 〒811-3217 福岡県福津市中央2丁目23番12号 |
| 営業時間 | 9:00~18:00 |
| 定休日 | 水曜日、年末年始 |
| 宅建免許番号 | 福岡県知事(1)第19529号 |
| アクセス | 店舗への地図はこちら |

来店ご予約
福岡県宗像市で価格が似ている物件はこちら
- 福岡県
マイページ物件数 - 9,057件
最近見た物件
福岡県新築一戸建て新着物件
-
-

-
- 新築一戸建て
- 3,699万円
-
福津市若木台1丁目
-
JR鹿児島本線東福間駅
-
-
-

-
- 新築一戸建て
- 4,999万円
-
福岡市東区香椎駅東1丁目
-
JR鹿児島本線香椎駅
-
-
-

-
- 新築一戸建て
- 2,898万円
-
福津市若木台2丁目
-
JR鹿児島本線東福間駅
-
-
-

-
- 新築一戸建て
- 4,788万円
-
福岡市西区小戸3丁目
-
福岡市空港線姪浜駅
-
-
-

-
- 新築一戸建て
- 3,698万円
-
福岡市東区奈多2丁目
-
JR香椎線奈多駅
-
-
-

-
- 新築一戸建て
- 4,598万円
-
福岡市東区香椎駅東4丁目
-
JR鹿児島本線香椎駅
-
-
-

-
- 新築一戸建て
- 5,098万円
-
糟屋郡粕屋町長者原東7丁目
-
JR香椎線長者原駅
-
- お近くの店舗を探す
-
おすすめ物件
-
-

-
- 新築一戸建て
- 3,498万円
-
古賀市千鳥6丁目
-
JR鹿児島本線千鳥
-
-
-

-
- 新築一戸建て
- 3,298万円
-
福津市光陽台6丁目
-
JR鹿児島本線東福間
-
-
-

-
- 新築一戸建て
- 3,498万円
-
宗像市田熊2丁目
-
JR鹿児島本線東郷
-
-
-

-
- 新築一戸建て
- 2,998万円
-
宗像市原町
-
JR鹿児島本線東郷
-
-
-

-
- 新築一戸建て
- 3,180万円
-
福津市福間南4丁目
-
JR鹿児島本線福間
-
-
-

-
- 新築一戸建て
- 3,398万円
-
北九州市小倉南区上貫1丁目
-
JR日豊本線下曽根
-
-
-

-
- 新築一戸建て
- 2,099万円
-
北九州市八幡西区沖田4丁目
-
筑豊電気鉄道永犬丸
-
-
-

-
- 新築一戸建て
- 4,298万円
-
北九州市小倉南区山手2丁目
-
北九州高速鉄道徳力公団前
-
-
-

-
- 新築一戸建て
- 3,198万円
-
宗像市徳重
-
JR鹿児島本線教育大前
-
-
-

-
- 新築一戸建て
- 4,190万円
-
福岡市東区美和台5丁目
-
西鉄貝塚線三苫
-









































担当エージェント:藤本春菜
この物件で特に注目していただきたいのは「回れる動線」です。
玄関からSIC、パントリー、キッチン、LDKへと自然につながるため、
荷物を持って帰宅した際の流れがとてもイメージしやすい設計になっています。
日々の家事や収納を考えると、
この動線は暮らしの中で大きな助けになると感じています。
また、バルコニーを設けず庭を重視した点も特徴です。
洗濯動線を室内中心に考えたい方や、
庭を生活の一部として使いたい方には相性の良い住まいです。
駅から距離がある点は正直なネックですが、
徒歩7分のバス停からスーパー前まで直通で行ける点は、
実際に現地をご案内すると評価されることが多いポイントです。
小学校が近く、周辺環境も落ち着いているため、
立地条件を理解した上で
「暮らし方」を重視される方におすすめしたい物件です。
残り3棟となっていますので、
ぜひ一度現地で動線と距離感を体感してみてください。