三苫2丁目 新築戸建
掲載情報更新日:2026年02月06日 次回更新予定日:2026年02月20日
- 4,298万円
-
- 借入ご希望金額
万円 - 借入期間
年 - 借入金利
% - 月々のお支払い金額
円
- 借入ご希望金額
※ 月々のお支払例は目安の試算となりますので、実際の金額とは異なる場合がございます。詳しくは店舗までお問合わせください。
- 福岡市東区三苫2丁目
-
西鉄貝塚線『三苫』 徒歩18分 (約1440m)
三苫2丁目 新築戸建一戸建て | 物件情報
物件の設備
- 電気
- 公営水道
- 下水道
- 側溝
- 都市ガス
- 給湯
- 浄水器
- 食器洗浄乾燥機
- 食品庫
- コンロ三口
- グリル
- カウンターキッチン
- システムキッチン
- ユニットバス
- オートバス
- 追焚機能
- 浴室暖房
- 浴室乾燥機
- トイレ
- トイレ2箇所
- 温水洗浄便座
- 室内洗濯機置場
- 洗髪洗面化粧台
- ダウンライト
- リビング階段
- 省エネ給湯器
- モニタ付インターホン
- 火災警報器/報知機
- LDK18畳以上
- 和室
- 全居室複層ガラス
- 24時間換気システム
- クローゼット
- ウォークインクローゼット
- 納戸
- 床下収納
- 全居室収納
- シューズボックス
- ワイドバルコニー
物件の特徴
- 前道6m以上
- 2階建
- 建築確認完了検査済証
- フラット35Sに対応
物件詳細情報
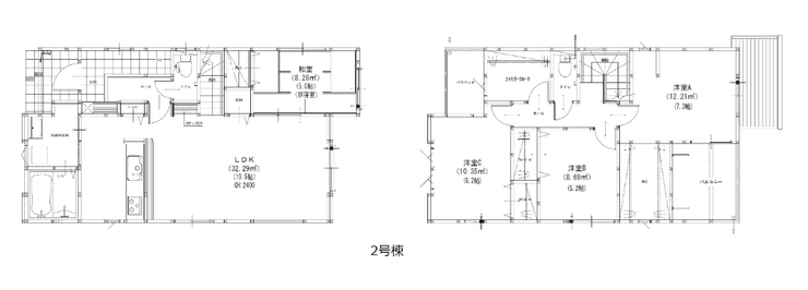
| 価格 | 4,298万円 | 間取り | 4LDK+S |
|---|---|---|---|
| 物件種別 | 新築一戸建て | ||
| 所在地 | 福岡県福岡市東区三苫2丁目 2号棟 | ||
| アクセス |
|
||
| 建物面積 | 112.42㎡ | 駐車場 | あり |
| 築年月 | 2026年(令和8年)01月築 | 建築確認 | 第KJH25-01044-1号 |
| 建物構造 | 木造 2階建 | 工法 | |
| 主要採光 | バルコニー | ||
| 保証・評価 | |||
| 土地面積 | 165.47㎡(50.05坪) | 接道 | 西側(公道)幅 約7.0m |
| 私道 | セットバック | ||
| 地目 | 畑 | 地勢 | |
| 権利 | 所有権 |
||
| 都市計画 | 市街化区域 |
用途地域 | 1種低層 |
| 建ぺい/容積率 | 50% / 80% | 土地国土法 | |
| 許可番号 | 建築基準法 | ||
| 法令制限 | 法22条区域 | ||
| 小学区 | 三苫小学校 徒歩18分 (約1400m) | 中学区 | 和白中学校 徒歩9分 (約680m) |
| 現況 | 完工済 | 引渡 | 期日指定:2026年02月下旬 |
| その他費用 | |||
| 周辺環境 | 吉田歯科医院 徒歩6分 (約480m) 和白中学校 徒歩9分 (約680m) オリーブ保育園 徒歩8分 (約590m) ドラッグストアモリ 三苫店 徒歩8分 (約590m) セブンイレブン福岡三苫3丁目店 徒歩9分 (約720m) 福岡銀行 美和台支店 徒歩10分 (約780m) 西鉄ストア レガネットマルシェ三苫 徒歩11分 (約820m) ホームワイド和白店 徒歩16分 (約1260m) 三苫小学校 徒歩18分 (約1400m) |
||
| 備考 | |||
| 物件番号 | 4526705 | 取引態様 | 媒介 |
取扱店舗情報
ハウスドゥ 福岡流通センター 有限会社セゾン 店舗詳細ページへ
| 電話番号 | 092-260-7722 |
|---|---|
| 所在地 | 〒813-0034 福岡県福岡市東区多の津4丁目9-1 103 |
| 営業時間 | 9:00~19:00 |
| 定休日 | 年末年始、GW、お盆休み |
| 宅建免許番号 | 福岡県知事(1)第20006号 |
| アクセス | 店舗への地図はこちら |

来店ご予約
福岡県福岡市東区で価格が似ている物件はこちら
- 福岡県
マイページ物件数 - 9,048件
最近見た物件
福岡県新築一戸建て新着物件
-
-

-
- 新築一戸建て
- 3,890万円
-
福岡市南区曰佐4丁目
-
西鉄天神大牟田線井尻駅
-
-
-

-
- 新築一戸建て
- 3,598万円
-
北九州市門司区稲積2丁目
-
JR鹿児島本線門司駅
-
-
-

-
- 新築一戸建て
- 3,260万円
-
飯塚市太郎丸
-
JR篠栗線天道駅
-
-
-

-
- 新築一戸建て
- 3,880万円
-
北九州市若松区浜町2丁目
-
JR筑豊本線若松駅
-
-
-

-
- 新築一戸建て
- 3,830万円
-
北九州市若松区浜町2丁目
-
JR筑豊本線若松駅
-
-
-

-
- 新築一戸建て
- 3,398万円
-
北九州市門司区稲積2丁目
-
JR鹿児島本線門司駅
-
-
-

-
- 新築一戸建て
- 3,398万円
-
北九州市小倉南区日の出町1丁目
-
北九州高速鉄道競馬場前駅
-
- お近くの店舗を探す
-
おすすめ物件
-
-

-
- 新築一戸建て
- 3,498万円
-
宗像市原町
-
JR鹿児島本線東郷
-
-
-

-
- 新築一戸建て
- 3,898万円
-
福岡市南区弥永2丁目
-
JR博多南線博多南
-
-
-

-
- 新築一戸建て
- 3,898万円
-
福岡市東区三苫4丁目
-
西鉄貝塚線三苫
-
-
-

-
- 新築一戸建て
- 3,398万円
-
大野城市南ケ丘6丁目
-
JR鹿児島本線水城
-
-
-

-
- 新築一戸建て
- 3,498万円
-
北九州市小倉南区葛原本町5丁目
-
西鉄バス葛原東1丁目停
-
-
-

-
- 新築一戸建て
- 3,298万円
-
北九州市小倉南区八重洲町
-
西鉄バス蜷田若園三丁目停
-
-
-

-
- 新築一戸建て
- 3,298万円
-
福津市福間南5丁目
-
JR鹿児島本線福間
-
-
-

-
- 新築一戸建て
- 2,898万円
-
宗像市原町
-
JR鹿児島本線東郷
-
-
-

-
- 新築一戸建て
- 4,298万円
-
北九州市小倉南区山手2丁目
-
北九州高速鉄道徳力公団前
-
-
-

-
- 新築一戸建て
- 3,198万円
-
北九州市小倉南区北方3丁目
-
北九州高速鉄道北方
-












