高岡市戸出町1丁目の新築戸建
NEW 12.18掲載情報更新日:2025年12月18日 次回更新予定日:2026年01月01日
- 2,860万円
-
- 借入ご希望金額
万円 - 借入期間
年 - 借入金利
% - 月々のお支払い金額
円
- 借入ご希望金額
※ 月々のお支払例は目安の試算となりますので、実際の金額とは異なる場合がございます。詳しくは店舗までお問合わせください。
- 高岡市戸出町1丁目
-
JR城端線『戸出』 徒歩8分 (約580m)
高岡市戸出町1丁目一戸建て | 物件情報
「家族のつながりと、自分時間を大切にできる住まい。」
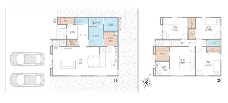
LDK18帖の4LDK・駐車並列2台
家族が集まるLDKは程よい広さで、家具配置もしやすい空間です。
リビング階段×対面キッチン
帰宅時や家事の合間に自然と会話が生まれ、家族の気配を感じられる間取り。
2帖パントリーの2WAY動線
キッチンと洗面室の両方から出入りでき、家事効率がアップ。食品・日用品のストックにも便利です。
洗面脱衣室にホスクリーン設置
室内干しができ、天候を気にせず洗濯が可能。忙しい毎日をしっかりサポート。
7帖寝室+2帖書斎+WIC
在宅ワークや趣味に使える書斎と、収納力のあるWICを備えた主寝室。プライベート空間も充実しています。
物件の設備
- 電気
- オール電化
- 公営水道
- 公共下水
- プロパンガス
- 浄水器
- 食器洗浄乾燥機
- 食品庫
- IHクッキングヒータ
- カウンターキッチン
- バス1坪以上
- 洗髪洗面化粧台
- 洗面所独立
- 省エネ給湯器
- モニタ付インターホン
- 天井高2.5m以上
- 複層ガラス
- クローゼット3箇所
- ウォークインクローゼット
- 全居室収納
物件の特徴
- 前道6m以上
- 2階建
物件詳細情報
| 価格 | 2,860万円 | 間取り | 4LDK |
|---|---|---|---|
| 物件種別 | 新築一戸建て | ||
| 所在地 | 富山県高岡市戸出町1丁目 2号棟 | ||
| アクセス |
|
||
| 建物面積 | 112.18㎡ | 駐車場 | あり 普通:2台 |
| 築年月 | 2025年(令和7年)09月築 | 建築確認 | |
| 建物構造 | 木造 2階建 | 工法 | |
| 主要採光 | バルコニー | ||
| 保証・評価 | |||
| 分譲情報 | |||
| 土地面積 | 公165.4㎡(50.03坪) | 接道 | 南西側(公道)幅 約8.1m |
| 私道 | セットバック | ||
| 地目 | 宅地 | 地勢 | |
| 権利 | 所有権 |
||
| 都市計画 | 市街化区域 |
用途地域 | 1種住居 |
| 建ぺい/容積率 | 60% / 200% | 土地国土法 | |
| 許可番号 | 建築基準法 | ||
| 法令制限 | 水防法・都市再生特別措置法・景観法・道路斜線制限・隣地斜線制限・日陰規制・土地区画整理法・高岡市政令都計第5号 | ||
| 小学区 | 戸出東部小学校 徒歩7分 (約510m) | 中学区 | 戸出中学校 徒歩12分 (約930m) |
| 現況 | 空 | 引渡 | 相談 |
| その他費用 | |||
| 備考 | ◆LDK18帖の4LDK・駐車並列2台 ◆2帖のパントリーはキッチンと洗面室への2WAY仕様 ◆洗面脱衣室に便利なホスクリーン設置 ◆7帖寝室は2帖の書斎とWIC付き |
||
| 物件番号 | 4530382 | 取引態様 | 媒介 |
取扱店舗情報
ハウスドゥ 高岡野村 株式会社ことぶき不動産 店舗詳細ページへ
| 電話番号 | 0766-23-2030 |
|---|---|
| 所在地 | 〒933-0014 富山県高岡市野村1536番地17 アーバンビル1階B号室 |
| 営業時間 | 10:00~18:00 |
| 定休日 | 水曜日・祝日 |
| 宅建免許番号 | 富山県知事(1)第3303号 |
| アクセス | 店舗への地図はこちら |

来店ご予約
富山県高岡市で価格が似ている物件はこちら
- 富山県
マイページ物件数 - 763件
最近見た物件
-
-

-
- 新築一戸建て
- 2,980万円
-
稲沢市梅須賀町西北切
-
名鉄名古屋本線奥田
-
-
-

-
- 中古一戸建て
- 3,350万円
-
裾野市茶畑
-
JR御殿場線裾野
-
-
-

-
- 新築一戸建て
- 3,280万円
-
高松市太田下町
-
高松琴平電鉄琴平線太田
-
富山県新築一戸建て新着物件
- お近くの店舗を探す
-
おすすめ物件
-
-

-
- 新築一戸建て
- 2,898万円
-
富山市大泉
-
富山地鉄不二越上滝線大泉
-
-
-

-
- 新築一戸建て
- 1,980万円
-
富山市犬島4丁目
-
富山地鉄富山港線犬島新町
-
-
-

-
- 新築一戸建て
- 3,170万円
-
富山市新庄町
-
富山地鉄本線東新庄
-
-
-

-
- 新築一戸建て
- 3,280万円
-
富山市新庄銀座2丁目
-
富山地鉄本線越中荏原
-
-
-

-
- 新築一戸建て
- 3,380万円
-
富山市新庄銀座2丁目
-
富山地鉄本線越中荏原
-
-
-

-
- 新築一戸建て
- 2,580万円
-
富山市常盤台
-
富山地鉄本線東新庄
-
-
-

-
- 新築一戸建て
- 2,980万円
-
富山市本郷町
-
富山地鉄不二越上滝線上堀
-
-
-

-
- 新築一戸建て
- 3,980万円
-
富山市婦中町田島
-
JR高山本線婦中鵜坂
-
-
-

-
- 新築一戸建て
- 2,990万円
-
高岡市駅南3丁目
-
JR城端線高岡
-
-
-

-
- 新築一戸建て
- 2,398万円
-
富山市本郷町
-
富山地鉄不二越上滝線上堀
-














家族が自然と顔を合わせるリビング階段と対面キッチンに加え、
2WAYパントリーや書斎付き寝室など、「暮らしやすさ」と「今のライフスタイル」を意識した新築戸建です。
家事動線がスムーズで、共働き世帯や子育て世帯はもちろん、
在宅ワークや趣味の時間を大切にしたい方にもおすすめできます。
図面だけでは伝わらない動線の良さや空間の心地よさを、
ぜひ現地でご確認ください。