調布市深大寺北町6丁目 新築戸建 3号棟
NEW 01.17掲載情報更新日:2026年01月17日 次回更新予定日:2026年01月31日
- 4,480万円
-
- 借入ご希望金額
万円 - 借入期間
年 - 借入金利
% - 月々のお支払い金額
円
- 借入ご希望金額
※ 月々のお支払例は目安の試算となりますので、実際の金額とは異なる場合がございます。詳しくは店舗までお問合わせください。
- 調布市深大寺北町6丁目
-
JR中央本線『吉祥寺』 バス乗車22分 小田急バス 山野 停 徒歩5分 (約400m)
JR中央本線『三鷹』 バス乗車28分 小田急バス 山野 停 徒歩5分 (約400m)
京王線『調布』 バス乗車27分 小田急バス 山野 停 徒歩5分 (約400m)
調布市深大寺北町6丁目 新築戸建 3号棟一戸建て | 物件情報
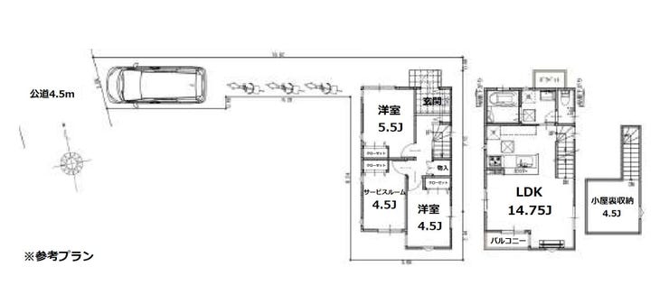
■緑豊かな低層住宅街!カースペース付♪ ■全室2面採光! ■2SLDK+屋根裏付きプラン
《Access》
・小田急バス「山野」停 徒歩5分
中央線「吉祥寺」駅 バス22分
中央線「三鷹」駅 バス28分
京王線「調布」駅 バス27分
《Point》
・閑静立地に佇む全4棟
・機能性を重視した間取り設計
・カースペースあり
・LDK3面採光 陽当たり・通風良好♪
・4.5帖の屋根裏収納
◎安心地盤保証20年
◎建物保証10年
◎省エネ・高断熱住宅
■気軽にお問い合わせください♪
物件の設備
- 公営水道
- 公共下水
- 都市ガス
- 給湯
- 浄水器
- 食器乾燥機
- 食器洗浄乾燥機
- コンロ三口
- グリル
- ガスコンロ付
- カウンターキッチン
- システムキッチン
- オープンキッチン
- バス
- オートバス
- 追焚機能
- 浴室暖房
- 浴室乾燥機
- 浴室に窓
- トイレ
- 温水洗浄便座
- 室内洗濯機置場
- 洗面所独立
- リビング階段
- 省エネ給湯器
- モニタ付インターホン
- 火災警報器/報知機
- グルニエ
- 2面採光
- 3面採光
- 全室2面採光
- 複層ガラス
- 全居室複層ガラス
- フローリング
- 全室フローリング
- シャッター雨戸
- 24時間換気システム
- 網戸
- クローゼット
- クローゼット3箇所
- 床下収納
- 全居室収納
- 屋根裏収納
- シューズボックス
- 庭
物件の特徴
- 南向
- 地盤調査済
- 耐震構造
- 2沿線利用可
- 緑豊かな住宅地
- 閑静な住宅街
- 周辺交通量少なめ
- 市街地が近い
- 都市近郊
- 眺望良好
- 通風良好
- 陽当り良好
- 2階建
- 平坦地
- フラット35Sに対応
物件詳細情報
| 価格 | 4,480万円 | 間取り | 2LDK+S |
|---|---|---|---|
| 物件種別 | 新築一戸建て | ||
| 所在地 | 東京都調布市深大寺北町6丁目 3号棟 | ||
| アクセス |
|
||
| 建物面積 | 実68.84㎡ | 駐車場 | あり 普通:1台 |
| 築年月 | 2026年(令和8年)03月予定 | 建築確認 | 第24UDI1C建7857号 |
| 建物構造 | 木造 2階建 | 工法 | |
| 主要採光 | 南向 | バルコニー | |
| 保証・評価 | |||
| 分譲情報 | 【販売戸数】:4戸 【価格】:3,080万円 ~4,980万円 |
||
| 土地面積 | 実87.18㎡(26.37坪) | 接道 | 西側(公道)幅 約4.5m |
| 私道 | セットバック | ||
| 地目 | 宅地 | 地勢 | 平坦 |
| 権利 | 所有権 |
||
| 都市計画 | 市街化区域 |
用途地域 | 1種低層 |
| 建ぺい/容積率 | 40% / 80% | 土地国土法 | |
| 許可番号 | 建築基準法 | ||
| 法令制限 | |||
| 小学区 | 北ノ台小学校 徒歩14分 (約1110m) | 中学区 | 神代中学校 徒歩39分 (約3120m) |
| 現況 | 建築中 | 引渡 | 未記入 |
| その他費用 | |||
| 周辺環境 | 山野公園 徒歩6分 (約460m) 深大寺保育園 徒歩12分 (約910m) 調布市立北ノ台小学校 徒歩14分 (約1110m) 業務スーパー深大寺東町店 徒歩22分 (約1690m) セブンイレブン調布富士見町店 徒歩22分 (約1740m) ウェルパーク調布深大寺店 徒歩24分 (約1870m) 調布市立神代中学校 徒歩39分 (約3120m) |
||
| 備考 | |||
| 物件番号 | 4557263 | 取引態様 | 媒介 |
取扱店舗情報
ハウスドゥ 千歳船橋 R2-CONNECT株式会社 店舗詳細ページへ
| 電話番号 | 03-5799-7621 |
|---|---|
| 所在地 | 〒156-0054 東京都世田谷区桜丘5丁目47-19 |
| 営業時間 | 9:00~19:00 |
| 定休日 | 火曜日、水曜日 |
| 宅建免許番号 | 東京都知事(1)第107079号 |
| アクセス | 店舗への地図はこちら |

来店ご予約
東京都調布市で価格が似ている物件はこちら
- 東京都
マイページ物件数 - 5,032件
東京都新築一戸建て新着物件
-
-

-
- 新築一戸建て
- 5,180万円
-
調布市深大寺東町6丁目
-
京王線調布駅
-
-
-

-
- 新築一戸建て
- 4,980万円
-
調布市深大寺東町6丁目
-
京王線調布駅
-
-
-

-
- 新築一戸建て
- 5,799万円
-
足立区神明南1丁目
-
東京メトロ千代田線北綾瀬駅
-
-
-

-
- 新築一戸建て
- 5,290万円
-
調布市深大寺元町4丁目
-
京王線調布駅
-
-
-

-
- 新築一戸建て
- 4,890万円
-
調布市深大寺南町4丁目
-
JR中央本線三鷹駅
-
-
-

-
- 新築一戸建て
- 4,790万円
-
調布市深大寺南町4丁目
-
JR中央本線三鷹駅
-
-
-

-
- 新築一戸建て
- 4,599万円
-
足立区花畑7丁目
-
東武伊勢崎・大師線
-
- お近くの店舗を探す
-
おすすめ物件
-
-

-
- 新築一戸建て
- 5,299万円
-
八王子市高尾町
-
JR中央本線高尾
-
-
-

-
- 新築一戸建て
- 4,899万円
-
八王子市富士見町
-
JR八高線北八王子
-
-
-

-
- 新築一戸建て
- 7,388万円
-
江戸川区南葛西5丁目
-
JR京葉線葛西臨海公園
-
-
-

-
- 新築一戸建て
- 1億4,500万円
-
世田谷区砧7丁目
-
小田急小田原線祖師ヶ谷大蔵
-
-
-

-
- 新築一戸建て
- 3,980万円
-
足立区大谷田4丁目
-
東京メトロ千代田線北綾瀬
-
-
-

-
- 新築一戸建て
- 4,990万円
-
調布市深大寺南町5丁目
-
京王線つつじヶ丘
-
-
-

-
- 新築一戸建て
- 5,990万円
-
調布市深大寺北町1丁目
-
京王相模原線調布
-
-
-

-
- 新築一戸建て
- 3,780万円
-
八王子市泉町
-
JR中央本線西八王子
-
-
-

-
- 新築一戸建て
- 1億399万円
-
世田谷区北烏山3丁目
-
京王線千歳烏山
-
-
-

-
- 新築一戸建て
- 6,390万円
-
三鷹市中原4丁目
-
京王線つつじヶ丘
-




















調布市の物件はハウスドゥ千歳船橋へお任せください。
物件、資金計画、周辺環境もご案内させて頂きます♪
資料請求、ご見学お気軽にお問合せください。