宮崎市大字本郷南方の新築戸建
NEW 01.22掲載情報更新日:2026年01月22日 次回更新予定日:2026年02月05日
- 2,690万円
-
- 借入ご希望金額
万円 - 借入期間
年 - 借入金利
% - 月々のお支払い金額
円
- 借入ご希望金額
※ 月々のお支払例は目安の試算となりますので、実際の金額とは異なる場合がございます。詳しくは店舗までお問合わせください。
- 宮崎市大字本郷南方
-
JR日南線『南方』 徒歩19分 (約1490m)
JR日南線『木花』 徒歩60分 (約4780m)
JR日南線『田吉』 徒歩20分 (約1570m)
『田元神社前バス停』 徒歩7分 (約550m)
宮崎市大字本郷南方一戸建て | 物件情報
\コスモスまで徒歩3分/《いつでもご案内可能です♪》お気軽にお問い合わせください♪
▼オススメポイント
◎スーパーやドラッグストアに近く、毎日のお買い物に便利
◎金融機関まで徒歩圏内♪
◎「ZEH水準」の高性能建売住宅♪
▼立地
◎国富小学校…徒歩20分(1600m)
◎本郷中学校…徒歩21分(1680m)
◆◇当店について◇◆
〇不動産売買仲介専門FCで
店舗数第1位のハウスドゥ加盟店です
安心してご相談ください
■弊社サービスご案内
〇資金計画の無料相談
〇ハウスメーカー・工務店のご紹介
〇オプション、リフォーム、太陽光発電
のお見積もりから施工まで
〇保険の加入や引越しの段取り
物件の設備
- 上水道
- 下水道
- プロパンガス
- 浄水器
- コンロ三口
- カウンターキッチン
- システムキッチン
- バス
- オートバス
- 追焚機能
- 浴室乾燥機
- 浴室に窓
- トイレ
- トイレ2箇所
- 温水洗浄便座
- 洗髪洗面化粧台
- モニタ付インターホン
- 複層ガラス
- 全室フローリング
- クローゼット
- ウォークインクローゼット
- 床下収納
物件の特徴
- 2階建
物件詳細情報
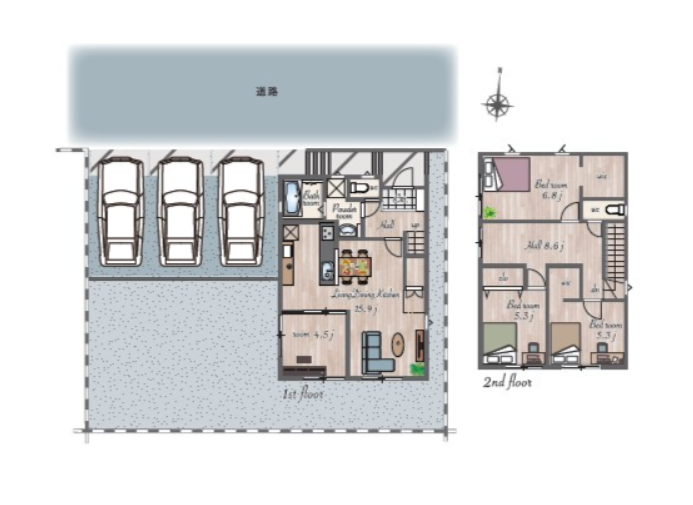
| 価格 | 2,690万円 | 間取り | 4LDK+S |
|---|---|---|---|
| 物件種別 | 新築一戸建て | ||
| 所在地 | 宮崎県宮崎市大字本郷南方 | ||
| アクセス |
|
||
| 建物面積 | 98.74㎡ | 駐車場 | あり 普通:3台 |
| 築年月 | 2026年(令和8年)01月築 | 建築確認 | 第ERI-25033363号 |
| 建物構造 | 木造 2階建 | 工法 | |
| 主要採光 | バルコニー | ||
| 保証・評価 | |||
| 土地面積 | 166.4㎡(50.33坪) | 接道 | 北側(公道)幅 約4.9m 間口 約14.50m |
| 私道 | セットバック | ||
| 地目 | 宅地 | 地勢 | 平坦 |
| 権利 | 所有権 |
||
| 都市計画 | 市街化区域 |
用途地域 | 準工業 |
| 建ぺい/容積率 | 60% / 200% | 土地国土法 | |
| 許可番号 | 建築基準法 | ||
| 法令制限 | |||
| 小学区 | 国富小学校 徒歩20分 (約1600m) | 中学区 | 本郷中学校 徒歩21分 (約1680m) |
| 現況 | 建築中 | 引渡 | 未記入 |
| その他費用 | |||
| 周辺環境 | マルイチ本郷店 徒歩13分 (約1010m) 宮崎空港駅 徒歩13分 (約970m) 宮崎銀行 希望ヶ丘出張所 徒歩18分 (約1430m) |
||
| 備考 | ◎「ZEH水準」の高性能建売住宅♪ ◎ハザードマップ外 |
||
| 物件番号 | 4562446 | 取引態様 | 媒介 |
取扱店舗情報
| 電話番号 | 0985-66-0753 |
|---|---|
| 所在地 | 〒880-0872 宮崎県宮崎市永楽町17 |
| 営業時間 | 9:00~18:00 |
| 定休日 | 水曜日、年末年始 |
| 宅建免許番号 | 宮崎県知事(1)第5078号 |
| アクセス | 店舗への地図はこちら |

来店ご予約
宮崎県宮崎市で価格が似ている物件はこちら
- 宮崎県
マイページ物件数 - 1,551件
最近見た物件
-
-

-
- 新築一戸建て
- 3,490万円
-
大分市大字下郡
-
JR日豊本線牧
-
-
-

-
- 中古一戸建て
- 5,780万円
-
さいたま市桜区大字神田
-
JR埼京線与野本町
-
-
-

-
- 中古マンション
- 6,950万円
-
江戸川区清新町1丁目
-
東京メトロ東西線西葛西
-
宮崎県新築一戸建て新着物件
-
-

-
- 新築一戸建て
- 3,700万円
-
宮崎市清武町岡3丁目
-
JR日豊本線清武駅
-
-
-

-
- 新築一戸建て
- 4,200万円
-
宮崎市清武町岡3丁目
-
JR日豊本線清武駅
-
-
-

-
- 新築一戸建て
- 4,380万円
-
宮崎市大塚町八所
-
JR日豊本線南宮崎駅
-
-
-

-
- 新築一戸建て
- 4,280万円
-
宮崎市大塚町八所
-
JR日豊本線南宮崎駅
-
-
-

-
- 新築一戸建て
- 4,380万円
-
宮崎市大塚町八所
-
JR日豊本線南宮崎駅
-
-
-

-
- 新築一戸建て
- 4,390万円
-
宮崎市大塚町八所
-
JR日豊本線南宮崎駅
-
-
-

-
- 新築一戸建て
- 3,288万円
-
宮崎市祇園4丁目
-
JR日豊本線宮崎神宮駅
-
- お近くの店舗を探す
-
おすすめ物件
-
-

-
- 新築一戸建て
- 2,690万円
-
宮崎市大字恒久
-
福祉センター前
-








◎弊社は不動産売買仲介専門No.1FCブランドHOUSEDOの加盟店です。無理のない返済計画、低金利ネット銀行も含めお客様の状況に合わせた住宅ローンをご提案し安心安全なお取引をサポートいたします。