佐賀市大財6丁目1期1号棟
NEW 01.29掲載情報更新日:2026年01月29日 次回更新予定日:2026年02月12日
- 3,498万円
-
- 借入ご希望金額
万円 - 借入期間
年 - 借入金利
% - 月々のお支払い金額
円
- 借入ご希望金額
※ 月々のお支払例は目安の試算となりますので、実際の金額とは異なる場合がございます。詳しくは店舗までお問合わせください。
- 佐賀市大財6丁目
-
JR長崎本線『佐賀』 徒歩18分 (約1440m)
佐賀市大財6丁目1期1号棟一戸建て | 物件情報
物件の設備
- 私設水道
- 下水道
- 側溝
- プロパンガス
- 食器洗浄乾燥機
- トイレ2箇所
- 洗髪洗面化粧台
- モニタ付インターホン
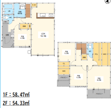
- LDK18畳以上
- 複層ガラス
- クローゼット
- ウォークインクローゼット
- シューズインクローク
物件の特徴
- 南側道路面す
- 2階建
- 即入居可
物件詳細情報
| 価格 | 3,498万円 | 間取り | 4LDK |
|---|---|---|---|
| 物件種別 | 新築一戸建て | ||
| 所在地 | 佐賀県佐賀市大財6丁目 1 | ||
| アクセス |
|
||
| 建物面積 | 112.8㎡ | 駐車場 | あり 普通:3台 |
| 築年月 | 2026年(令和8年)01月築 | 建築確認 | 第R07SHC118540号 |
| 建物構造 | 木造 2階建 | 工法 | |
| 主要採光 | 南向 | バルコニー | |
| 保証・評価 | |||
| 土地面積 | 164.68㎡(49.81坪) | 接道 | 南側(私道)幅 約4.0m(位置指定) |
| 私道 | セットバック | ||
| 地目 | 宅地 | 地勢 | |
| 権利 | 所有権 |
||
| 都市計画 | 市街化区域 |
用途地域 | 1種住居 |
| 建ぺい/容積率 | 60% / 200% | 土地国土法 | |
| 許可番号 | 建築基準法 | ||
| 法令制限 | |||
| 小学区 | 循誘小学校 徒歩15分 (約1200m) | 中学区 | 城東中学校 徒歩14分 (約1100m) |
| 現況 | 完工済 | 引渡 | 即 |
| その他費用 | |||
| 周辺環境 | 業務スーパー 大財店 徒歩4分 (約300m) マルキョウ 大財店 徒歩3分 (約180m) ミニストップ 佐賀大財2丁目店 徒歩7分 (約560m) 佐賀市立循誘小学校 徒歩14分 (約1090m) ダイレックス 兵庫店 徒歩15分 (約1170m) JCHO佐賀中部病院 徒歩16分 (約1210m) 佐賀市立城東中学校 徒歩22分 (約1760m) セブンイレブン佐賀兵庫南店 徒歩14分 (約1070m) 幼保連携型認定こども園 ふじかげこども園 徒歩17分 (約1310m) ドラッグストアモリ巨勢店 徒歩19分 (約1520m) |
||
| 備考 | ・網戸・照明器具・カーテンレール・CATV等は別途注文となります。図面と現況が異なる場合は現況優先となります。 ・私道負担あり |
||
| 物件番号 | 4576239 | 取引態様 | 媒介 |
取扱店舗情報
| 電話番号 | 0952-20-7791 |
|---|---|
| 所在地 | 〒842-0031 佐賀県神埼郡吉野ヶ里町吉田272-12 |
| 営業時間 | 9:30~18:00 |
| 定休日 | 火・水曜日,年末年始等 |
| 宅建免許番号 | 佐賀県知事(1)第2688号 |
| アクセス | 店舗への地図はこちら |

来店ご予約
佐賀県佐賀市で価格が似ている物件はこちら
- 佐賀県
マイページ物件数 - 1,461件
最近見た物件
-
-

-
- 中古一戸建て
- 4,080万円
-
明石市魚住町清水
-
JR山陽本線土山
-
-
-

-
- 土地
- 993万円
-
海部郡大治町大字東條字中切
-
名古屋市東山線中村公園
-
-
-

-
- 土地
- 2,450万円
-
柏市しいの木台5丁目
-
東武野田線高柳
-
佐賀県新築一戸建て新着物件
-
-

-
- 新築一戸建て
- 3,298万円
-
佐賀市田代1丁目
-
JR長崎本線佐賀駅
-
-
-

-
- 新築一戸建て
- 3,598万円
-
佐賀市南佐賀3丁目
-
JR長崎本線佐賀駅
-
-
-

-
- 新築一戸建て
- 3,498万円
-
佐賀市南佐賀3丁目
-
JR長崎本線佐賀駅
-
-
-

-
- 新築一戸建て
- 3,398万円
-
佐賀市大財6丁目
-
JR長崎本線佐賀駅
-
-
-

-
- 新築一戸建て
- 3,498万円
-
佐賀市大財6丁目
-
JR長崎本線佐賀駅
-
-
-

-
- 新築一戸建て
- 3,940万円
-
佐賀市巨勢町大字牛島
-
JR長崎本線佐賀駅
-
-
-

-
- 新築一戸建て
- 4,090万円
-
佐賀市巨勢町大字牛島
-
JR長崎本線佐賀駅
-
- お近くの店舗を探す
-
おすすめ物件
-
-

-
- 新築一戸建て
- 2,798万円
-
鳥栖市平田町
-
JR長崎本線肥前麓
-
-
-

-
- 新築一戸建て
- 3,460万円
-
鳥栖市山浦町
-
JR九州新幹線新鳥栖
-
-
-

-
- 新築一戸建て
- 4,099万円
-
鳥栖市宿町
-
JR九州新幹線新鳥栖
-
-
-

-
- 新築一戸建て
- 2,998万円
-
鳥栖市曽根崎町
-
JR鹿児島本線鳥栖
-
-
-

-
- 新築一戸建て
- 3,098万円
-
鳥栖市松原町
-
JR鹿児島本線田代
-
-
-

-
- 新築一戸建て
- 4,499万円
-
鳥栖市弥生が丘5丁目
-
JR鹿児島本線弥生が丘
-
-
-

-
- 新築一戸建て
- 3,398万円
-
鳥栖市桜町
-
JR鹿児島本線鳥栖
-
-
-

-
- 新築一戸建て
- 2,998万円
-
鳥栖市鎗田町
-
JR鹿児島本線田代
-
-
-

-
- 新築一戸建て
- 2,898万円
-
鳥栖市曽根崎町
-
JR鹿児島本線鳥栖
-
-
-

-
- 新築一戸建て
- 3,598万円
-
鳥栖市姫方町
-
JR鹿児島本線田代
-
























