佐賀市南佐賀3丁目 1号棟
掲載情報更新日:2026年03月26日 次回更新予定日:2026年04月09日
- 3,498万円
-
- 借入ご希望金額
万円 - 借入期間
年 - 借入金利
% - 月々のお支払い金額
円
- 借入ご希望金額
※ 月々のお支払例は目安の試算となりますので、実際の金額とは異なる場合がございます。詳しくは店舗までお問合わせください。
- 佐賀市南佐賀3丁目
-
JR長崎本線『佐賀』 バス乗車13分 西鉄柳川行 南佐賀 停 徒歩5分 (約400m)
JR長崎本線『鍋島』 徒歩99分 (約7920m)
JR長崎本線『佐賀』 徒歩61分 (約4880m)
佐賀市南佐賀3丁目 1号棟一戸建て | 物件情報
5月完成予定/平屋/車3台/収納充実4LDK/類似物件ご案内可/来場特典有
お家探しを始めたばかりで、
「何をしたらいいかわからない」という方も、
ゆっくり時間をかけてご相談いただけます。ご安心ください!
■ご案内について
店内の混雑をさけ、安心してご相談いただくため、
ご来店前のご予約をお願いしております。
ご希望の場所へお迎え、弊社へのご来店等ご相談ください。
■ご見学のお問合せ・ご相談
◎物件が未完成の場合、類似物件のご見学も可能です。
◎当日の物件へのご案内も可能です。ご相談下さい。
■住宅ローンについて
店頭で住宅ローン、資金計画のご相談、
住宅ローンのお申込みもお手伝いさせていただきます。
■ご売却について
売却のご相談・査定も無料で受付中です。
■キッズスペースもございます
お子様が退屈しないお遊びスペースがあります!
お菓子やジュースをお渡ししております。
是非ご家族でお越し下さい♪
なんでもお気軽にお申しつけくださいませ。
物件の設備
- 電気
- 公営水道
- 公共下水
- 側溝
- 都市ガス
- 給湯
- 浄水器
- 食器乾燥機
- 食器洗浄乾燥機
- コンロ三口
- カウンターキッチン
- システムキッチン
- バス
- ユニットバス
- オートバス
- バス1坪以上
- 追焚機能
- 浴室暖房
- 浴室乾燥機
- 浴室に窓
- 温水洗浄便座
- 室内洗濯機置場
- 洗髪洗面化粧台
- 洗面所独立
- ダウンライト
- ディンプルキー
- モニタ付インターホン
- LDK18畳以上
- 複層ガラス
- フローリング
- 全室フローリング
- シャッター雨戸
- クローゼット
- ウォークインクローゼット
- 床下収納
- 全居室収納
- シューズボックス
- シューズインクローク
- 庭
物件の特徴
- 緑豊かな住宅地
- スーパーが近い
- 閑静な住宅街
- 市街地が近い
- 通風良好
- 陽当り良好
- 整形地
- フラット35
- S適合証明書
- フラット35Sに対応
物件詳細情報
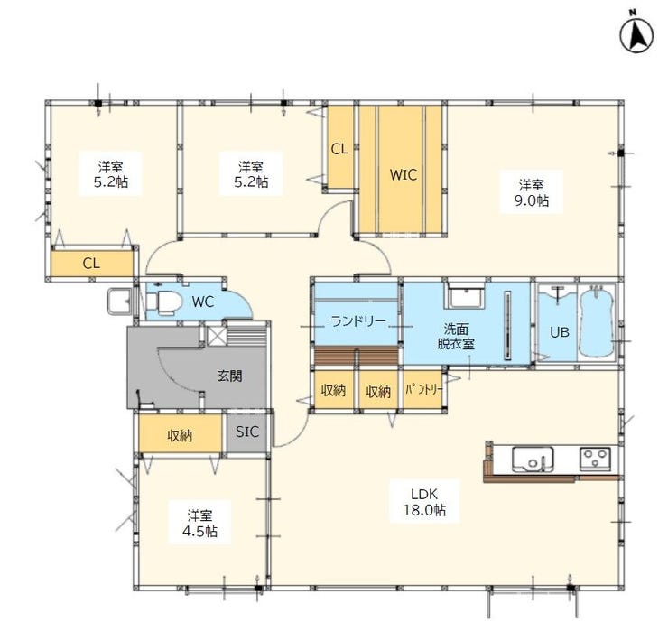
| 価格 | 3,498万円 | 間取り | 4LDK |
|---|---|---|---|
| 物件種別 | 新築一戸建て | ||
| 所在地 | 佐賀県佐賀市南佐賀3丁目 | ||
| アクセス |
|
||
| 建物面積 | 公104.34㎡ | 駐車場 | あり 普通:3台 |
| 築年月 | 2026年(令和8年)05月予定 | 建築確認 | 第R07SHC127057号 |
| 建物構造 | 木造 1階建 | 工法 | |
| 主要採光 | 南向 | バルコニー | |
| 保証・評価 | フラット35S適合証明書 |
||
| 土地面積 | 公245.3㎡(74.20坪) | 接道 | 西側(私道)幅 約4.0m |
| 私道 | セットバック | ||
| 地目 | 宅地 | 地勢 | |
| 権利 | 所有権 |
||
| 都市計画 | 市街化区域 |
用途地域 | 1種中高 |
| 建ぺい/容積率 | 60% / 160% | 土地国土法 | |
| 許可番号 | 建築基準法 | ||
| 法令制限 | |||
| 小学区 | 北川副小学校 徒歩14分 (約1050m) | 中学区 | 城南中学校 徒歩7分 (約500m) |
| 現況 | 建築中 | 引渡 | 期日指定:2026年06月 |
| その他費用 | |||
| 周辺環境 | セブンイレブン佐賀新郷本町店 徒歩7分 (約550m) 佐賀県立佐賀東高等学校 徒歩9分 (約720m) 佐賀市立城南中学校 徒歩7分 (約500m) 明林堂書店 徒歩8分 (約590m) ドラッグストアモリ南佐賀店 徒歩9分 (約660m) スーパーモリナガ南佐賀店 徒歩5分 (約350m) ダイレックス南佐賀店 徒歩10分 (約750m) あんくるふじや 佐賀本店 徒歩20分 (約1570m) セブンイレブン佐賀南佐賀店 徒歩8分 (約640m) |
||
| 備考 | |||
| 物件番号 | 4578479 | 取引態様 | 媒介 |
取扱店舗情報
ハウスドゥ 佐賀兵庫北 株式会社栗原木材店 店舗詳細ページへ
| 電話番号 | 0952-20-0725 |
|---|---|
| 所在地 | 〒849-0919 佐賀県佐賀市兵庫北7丁目18-2 |
| 営業時間 | 9:30~18:30 |
| 定休日 | 火曜日、水曜日 |
| 宅建免許番号 | 国土交通大臣(1)第010320号 |
| アクセス | 店舗への地図はこちら |

来店ご予約
佐賀県佐賀市で価格が似ている物件はこちら
- 佐賀県
マイページ物件数 - 1,574件
佐賀県新築一戸建て新着物件
-
-

-
- 新築一戸建て
- 2,498万円
-
鳥栖市田代外町
-
JR鹿児島本線田代駅
-
-
-

-
- 新築一戸建て
- 2,498万円
-
鳥栖市平田町
-
JR長崎本線肥前麓駅
-
-
-

-
- 新築一戸建て
- 3,698万円
-
鳥栖市鎗田町
-
JR鹿児島本線田代駅
-
-
-

-
- 新築一戸建て
- 2,399.80万円
-
佐賀市久保田町大字徳万
-
バス停「横江」
-
-
-

-
- 新築一戸建て
- 2,998万円
-
佐賀市金立町大字千布
-
バス停「金立団地前」
-
-
-

-
- 新築一戸建て
- 2,998万円
-
佐賀市金立町大字千布
-
金立団地前
-
-
-

-
- 新築一戸建て
- 3,880万円
-
佐賀市大和町大字尼寺
-
JR長崎本線佐賀駅
-
- お近くの店舗を探す
-
おすすめ物件
-
-

-
- 新築一戸建て
- 3,299万円
-
神埼郡吉野ヶ里町豆田
-
JR長崎本線吉野ヶ里公園
-
-
-

-
- 新築一戸建て
- 4,380万円
-
佐賀市高木瀬西5丁目
-
佐賀市営バス「高木瀬公民館前」
-
-
-

-
- 新築一戸建て
- 2,398万円
-
神埼市神埼町本堀
-
JR長崎本線神埼
-
-
-

-
- 新築一戸建て
- 3,300万円
-
三養基郡上峰町大字前牟田字上米多
-
JR長崎本線吉野ヶ里公園
-
-
-

-
- 新築一戸建て
- 2,498万円
-
鳥栖市平田町
-
JR長崎本線肥前麓
-
-
-

-
- 新築一戸建て
- 2,798万円
-
鳥栖市曽根崎町
-
JR鹿児島本線鳥栖
-
-
-

-
- 新築一戸建て
- 3,899万円
-
鳥栖市宿町
-
JR九州新幹線新鳥栖
-
-
-

-
- 新築一戸建て
- 3,799万円
-
鳥栖市宿町
-
JR九州新幹線新鳥栖
-
-
-

-
- 新築一戸建て
- 2,798万円
-
鳥栖市鎗田町
-
JR鹿児島本線田代
-
-
-

-
- 新築一戸建て
- 2,498万円
-
鳥栖市田代外町
-
JR鹿児島本線田代
-















担当エージェント:福田 拓也
【ご来場特典/QUOカード2,000円分】
※アンケート記入&当店で住宅ローン審査を行って頂く方対象
【ご成約特典/体験型カタログギフト「EXETIME Part5」をプレゼント】
\5万7860円分の旅行・デイナー・最新家具・家電をお届け! /
人気温泉旅館や五つ星ホテルでの宿泊、
高級レストランのディナー、貸し切りクルーズなど
掲載商品は500点以上!
欲しいものが見つかりますよ(*^-^*)
詳細はお気軽に問い合わせください♪
■北川副小学校まで徒歩14分/城南中学校まで徒歩7分
■WIC/パントリー/SIC完備で収納充実♪
■ランドリー、洗面、キッチン、リビングが回遊動線
◎「料理・洗濯・掃除」の距離が最短で家事効率が上がります
■玄関から洗面所が直結!
◎「ただいま手洗い」が習慣づきます♪
■LDK18帖!広々としたゆとりのあるリビング
◎システムカウンターキッチンには家事を時短する食洗器を完備
担当:福田(080-7651-9433)