岡山市中区海吉の新築戸建
NEW 02.24掲載情報更新日:2026年02月24日 次回更新予定日:2026年03月10日
- 3,290万円
-
- 借入ご希望金額
万円 - 借入期間
年 - 借入金利
% - 月々のお支払い金額
円
- 借入ご希望金額
※ 月々のお支払例は目安の試算となりますので、実際の金額とは異なる場合がございます。詳しくは店舗までお問合わせください。
- 岡山市中区海吉
-
『「海吉」バス停』 徒歩7分 (約560m)
岡山市中区海吉一戸建て | 物件情報
66坪のゆとりと、全室南向きの明るい暮らし。
■全室南向きで、家中に柔らかな陽光が差し込みます。
■ウォークインクローゼットを2か所備え、
さらに1階・2階それぞれにホール収納を設けた収納力の高い間取り。
■奥行のあるバルコニーは洗濯物もゆったり干せて快適です。
■駐車場は並列2台可能!バス停まで徒歩7分と利便性も良好です。
物件の設備
- 上水道
- 下水道
- 都市ガス
- カウンターキッチン
- システムキッチン
- 浴室乾燥機
- 温水洗浄便座
- 洗髪洗面化粧台
- 複層ガラス
- ウォークインクローゼット
- ウォークインクローゼット2箇所
- 床下収納
- 全居室収納
物件の特徴
- 前道6m以上
- 2階建
物件詳細情報
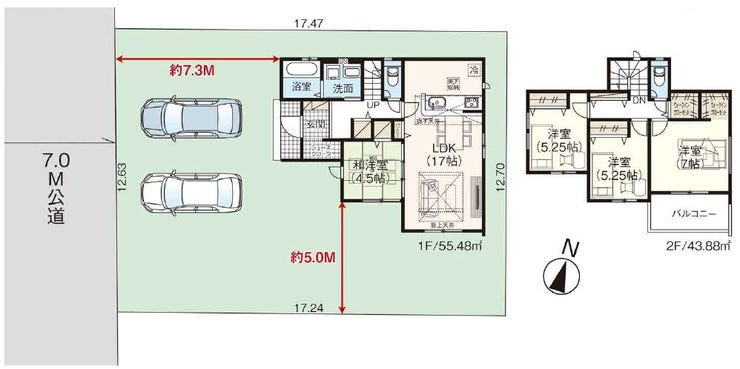
| 価格 | 3,290万円 | 間取り | 4LDK |
|---|---|---|---|
| 物件種別 | 新築一戸建て | ||
| 所在地 | 岡山県岡山市中区海吉 | ||
| アクセス |
|
||
| 建物面積 | 99.36㎡ | 駐車場 | あり 普通:2台 |
| 築年月 | 2026年(令和8年)05月予定 | 建築確認 | 第トラスト25-2072号 |
| 建物構造 | 木造 2階建 | 工法 | |
| 主要採光 | バルコニー | ||
| 保証・評価 | |||
| 土地面積 | 219.86㎡(66.50坪) | 接道 | 南西側(公道)幅 約7.0m |
| 私道 | セットバック | ||
| 地目 | 宅地 | 地勢 | |
| 権利 | 所有権 |
||
| 都市計画 | 市街化区域 |
用途地域 | 1種低層 |
| 建ぺい/容積率 | 50% / 100% | 土地国土法 | |
| 許可番号 | 建築基準法 | ||
| 法令制限 | |||
| 小学区 | 富山小学校 徒歩20分 (約1600m) | 中学区 | 富山中学校 徒歩12分 (約900m) |
| 現況 | 建築中 | 引渡 | 期日指定:2026年06月中旬以降 |
| その他費用 | |||
| 備考 | |||
| 物件番号 | 4611966 | 取引態様 | 媒介 |
取扱店舗情報
ハウスドゥ 岡山平井 株式会社インテックスホームズ 店舗詳細ページへ
| 電話番号 | 086-206-6710 |
|---|---|
| 所在地 | 〒703-8282 岡山県岡山市中区平井7丁目1-18 |
| 営業時間 | 9:00~18:00 |
| 定休日 | 毎週水曜日、第二火曜日 |
| 宅建免許番号 | 岡山県知事(2)第5693号 |
| アクセス | 店舗への地図はこちら |

来店ご予約
岡山県岡山市中区で価格が似ている物件はこちら
- 岡山県
マイページ物件数 - 4,424件
最近見た物件
-
-

-
- 新築一戸建て
- 3,398万円
-
菊池郡大津町大字大津
-
JR豊肥本線肥後大津
-
-
-

-
- 新築一戸建て
- 4,680万円
-
生駒市翠光台
-
近鉄生駒線一分
-
-
-

-
- 土地
- 2億5,000万円
-
吉川市中央1丁目
-
JR武蔵野線吉川
-
岡山県新築一戸建て新着物件
- お近くの店舗を探す
-
おすすめ物件
-
-

-
- 新築一戸建て
- 2,780万円
-
岡山市北区撫川
-
JR山陽本線庭瀬
-
-
-

-
- 新築一戸建て
- 2,280万円
-
岡山市中区湊
-
岡山電軌東山本線東山岡電ミュージアム
-
-
-

-
- 新築一戸建て
- 2,598万円
-
津山市高野本郷
-
JR因美線高野
-
-
-

-
- 新築一戸建て
- 2,380万円
-
岡山市南区福富中2丁目
-
JR宇野線備前西市
-
-
-

-
- 新築一戸建て
- 2,580万円
-
岡山市中区湊
-
岡山電軌東山本線東山岡電ミュージアム
-











担当エージェント:湯浅 浩市
《住宅ローンならハウスドゥ 岡山平井にお任せください!》
「いくら借りられるかわからない」「車のローンが残っている」など
ご不安がある方はお気軽にご相談ください!
大事な資金面のご相談もしっかりとご対応させて頂きます。
物件見学予約受付中!