NEW!セルリアンステージ下松市瑞穂町二丁目 全2棟
掲載情報更新日:2026年04月11日 次回更新予定日:2026年04月25日
- 3,980万円
-
- 借入ご希望金額
万円 - 借入期間
年 - 借入金利
% - 月々のお支払い金額
円
- 借入ご希望金額
※ 月々のお支払例は目安の試算となりますので、実際の金額とは異なる場合がございます。詳しくは店舗までお問合わせください。
- 下松市瑞穂町2丁目
-
JR山陽本線『下松』 車7分(約3.0km)
NEW!セルリアンステージ下松市瑞穂町二丁目 全2棟一戸建て | 物件情報
お問合せの増えている瑞穂町の新築戸建です♪
◇ガス乾燥機付(リンナイ乾太君)
◆便利なウォークインパントリー
◇駐車3台以上可
◆4.75帖相当のホビールーム付
物件の設備
- 電気
- 公営水道
- 都市ガス
- 給湯
- 食器乾燥機
- 食器洗浄乾燥機
- 食品庫
- コンロ一口
- コンロ二口
- コンロ三口
- カウンターキッチン
- システムキッチン
- バス
- オートバス
- 浴室乾燥機
- 浴室に窓
- トイレ
- トイレ2箇所
- 温水洗浄便座
- 室内洗濯機置場
- LDK15畳以上
- クローゼット
- クローゼット2箇所
- クローゼット3箇所
- 庭
物件の特徴
- 閑静な住宅街
- 市街地が近い
- 通風良好
- 陽当り良好
- 2階建
- 角地
- フラット35Sに対応
物件詳細情報
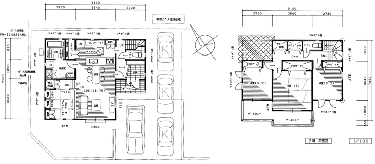
| 価格 | 3,980万円 | 間取り | 3LDK+S |
|---|---|---|---|
| 物件種別 | 新築一戸建て | ||
| 所在地 | 山口県下松市瑞穂町2丁目 ①号棟 | ||
| アクセス |
|
||
| 建物面積 | 104.33㎡ | 駐車場 | あり 普通:3台 |
| 築年月 | 2026年(令和8年)07月予定 | 建築確認 | R7建確建住セ岩第0331号 |
| 建物構造 | 木造 2階建 | 工法 | |
| 主要採光 | 南向 | バルコニー | |
| 保証・評価 | |||
| 分譲情報 | 【販売戸数】:2戸 |
||
| 土地面積 | 163.99㎡(49.60坪) | 接道 | |
| 私道 | セットバック | ||
| 地目 | 宅地 | 地勢 | |
| 権利 | 所有権 |
||
| 都市計画 | 市街化区域 |
用途地域 | 1種住居 |
| 建ぺい/容積率 | 60% / 200% | 土地国土法 | |
| 許可番号 | 建築基準法 | ||
| 法令制限 | |||
| 小学区 | 公集小学校 徒歩9分 (約660m) | 中学区 | 末武中学校 徒歩21分 (約1670m) |
| 現況 | 建築中 | 引渡 | 期日指定:2026年08月以降 |
| その他費用 | |||
| 周辺環境 | 公集小学校 徒歩9分 (約660m) 末武中学校 徒歩21分 (約1670m) セブン-イレブン 下松潮音町店 徒歩5分 (約360m) ウォンツ 下松店 徒歩5分 (約350m) A-プライス下松店 徒歩8分 (約580m) |
||
| 備考 | ※ZEH水準省エネ住宅 ※断熱等級5 ※外壁光セラ(KMEW) ※制振ダンパー(住友ゴム"MAMORY") ※フラット35S(金利Aプラン)対応 ※瑕疵担保責任保険(まもりすまい保険) ※オールLow-Eペアガラス ※アルミ樹脂複合サッシ ※玄関ドア電子錠 ※南西角地 ※都市ガス(エコジョーズ) ※ガス乾燥機付(リンナイ乾太君) ※3口ガスコンロ(グリル付) ※ホビールーム(1階リビング・4.75帖相当) ※ウォークインパントリー ※南向きのひろびろバルコニー ※外構付き |
||
| 物件番号 | 4613015 | 取引態様 | 媒介 |
取扱店舗情報
ハウスドゥ 周南城ケ丘 株式会社田村ビルズ 店舗詳細ページへ
| 電話番号 | 0834-34-1107 |
|---|---|
| 所在地 | 〒745-0807 山口県周南市城ケ丘1丁目2-32 |
| 営業時間 | 9:30~18:00 |
| 定休日 | 水曜日、第2・第3・第4・第5木曜日 |
| 宅建免許番号 | 国土交通大臣(2)第9501号 |
| アクセス | 店舗への地図はこちら |

来店ご予約
山口県下松市で価格が似ている物件はこちら
- 山口県
マイページ物件数 - 3,261件
最近見た物件
-
-

-
- 新築一戸建て
- 3,380万円
-
名古屋市中川区吉津3丁目
-
JR関西本線春田
-
-
-

-
- 新築一戸建て
- 3,490万円
-
大分市竹の上
-
JR久大本線南大分
-
-
-

-
- 収益
- 1,251万円
-
福岡市西区拾六町2丁目
-
福岡市七隈線橋本
-
山口県新築一戸建て新着物件
-
-

-
- 新築一戸建て
- 3,690万円
-
下関市一の宮本町2丁目
-
JR山陽本線新下関駅
-
-
-

-
- 新築一戸建て
- 2,080万円
-
光市光井5丁目
-
JR山陽本線光駅
-
-
-

-
- 新築一戸建て
- 3,480万円
-
周南市久米中央4丁目
-
JR山陽本線櫛ヶ浜駅
-
-
-

-
- 新築一戸建て
- 2,480万円
-
周南市松保町
-
JR山陽本線徳山駅
-
-
-

-
- 新築一戸建て
- 3,480万円
-
周南市久米中央4丁目
-
JR山陽本線櫛ヶ浜駅
-
-
-

-
- 新築一戸建て
- 4,380万円
-
周南市梅園町3丁目
-
JR山陽本線徳山駅
-
-
-

-
- 新築一戸建て
- 3,480万円
-
周南市久米中央4丁目
-
JR山陽本線櫛ヶ浜駅
-
- お近くの店舗を探す
-
おすすめ物件
-
-

-
- 新築一戸建て
- 3,980万円
-
下松市瑞穂町2丁目
-
JR山陽本線下松
-
-
-

-
- 新築一戸建て
- 2,780万円
-
下松市南花岡2丁目
-
JR岩徳線周防花岡
-
-
-

-
- 新築一戸建て
- 3,880万円
-
下松市瑞穂町2丁目
-
JR山陽本線下松
-
-
-

-
- 新築一戸建て
- 3,098万円
-
宇部市東梶返2丁目
-
JR宇部線東新川
-
-
-

-
- 新築一戸建て
- 3,398万円
-
山口市円政寺町
-
JR山口線上山口
-
-
-

-
- 新築一戸建て
- 2,698万円
-
宇部市大小路2丁目
-
JR宇部線東新川
-
-
-

-
- 新築一戸建て
- 3,198万円
-
山口市円政寺町
-
JR山口線上山口
-
-
-

-
- 新築一戸建て
- 2,998万円
-
防府市伊佐江町
-
JR山陽本線防府
-
-
-

-
- 新築一戸建て
- 3,580万円
-
下松市美里町3丁目
-
JR岩徳線周防花岡
-
-
-

-
- 新築一戸建て
- 2,998万円
-
防府市大字仁井令
-
JR山陽本線防府
-





担当エージェント:松尾 翔
気になる方はお早めにお問合せください♪
いつでも現地をご案内できます!建築中のため、参考物件をご案内致します。