春日井市東野町西2丁目の新築戸建
掲載情報更新日:2026年05月11日 次回更新予定日:2026年05月25日
- 4,598万円
-
- 借入ご希望金額
万円 - 借入期間
年 - 借入金利
% - 月々のお支払い金額
円
- 借入ご希望金額
※ 月々のお支払例は目安の試算となりますので、実際の金額とは異なる場合がございます。詳しくは店舗までお問合わせください。
- 春日井市東野町西2丁目
-
JR中央本線『春日井』 車11分(約3.5km)
JR中央本線『神領』 車10分(約3.9km)
名鉄小牧線『春日井』 車14分(約5.1km)
名鉄バス『「松原中学校」停』 徒歩5分 (約400m)
春日井市東野町西2丁目一戸建て | 物件情報
☆新生活応援キャンペーン実施中☆ ♪おうち探し・ローン・お引越しまでワンストップサービスをお約束♪
◎閑静な住宅地で穏やかな新生活を!
◎敷地面積39坪超♪
◎松原小学校まで徒歩10分(約750m)♪
◎松原中学校まで徒歩7分(約500m)♪
◆毎日お客様にあった見学ツアー開催中!
◆平日のご案内も可能です♪お気軽にお問い合わせください。
◆事前にご連絡頂ければ、スムーズにご案内できます!
◆メリット・デメリット、両方お伝えします。地域に詳しい担当者が、丁寧にお答えします。
◆住宅ローンなど、不動産を購入するにあたって不安なことなど、お気軽にお申し付けください。
◆見るだけ、でも構いません。お客様に合ったご提案をします。
◆お店の車でご案内できますので、お気軽にお申し付けください。
◆お客様に喜んで頂けるような接客を心がけます♪
◆キャンペーン適応には諸条件がございます。詳しくはお問い合わせください。
物件の設備
- 電気
- 上水道
- 公営水道
- 下水道
- 公共下水
- 都市ガス
- 浄水器
- パントリー
- コンロ三口
- システムキッチン
- アイランドキッチン
- オートバス
- バス1坪以上
- 追焚機能
- 浴室暖房
- 浴室乾燥機
- 浴室に窓
- トイレ2箇所
- 温水洗浄便座
- 室内洗濯機置場
- 洗髪洗面化粧台
- 床暖房
- キッチン床暖房
- リビング階段
- 人感照明センサー
- 省エネ給湯器
- モニタ付インターホン
- 火災警報器/報知機
- LDK18畳以上
- 2面採光
- 複層ガラス
- 全室フローリング
- 24時間換気システム
- クローゼット3箇所
- ウォークインクローゼット
- 全居室収納
- シューズボックス
- シューズインクローク
- 両面バルコニー
- 屋上テラス
- 宅配BOX
物件の特徴
- 耐震構造
- 2沿線利用可
- 小学校徒歩10分以内
- 前道6m以上
- スーパーが近い
- 閑静な住宅街
- 通風良好
- 陽当り良好
- 2階建
- 角地
- 整形地
- 長期優良住宅
- 建設住宅性能評価付
- 設計住宅性能評価付
- 建築確認完了検査済証
- フラット35
- S適合証明書
- フラット35Sに対応
物件詳細情報
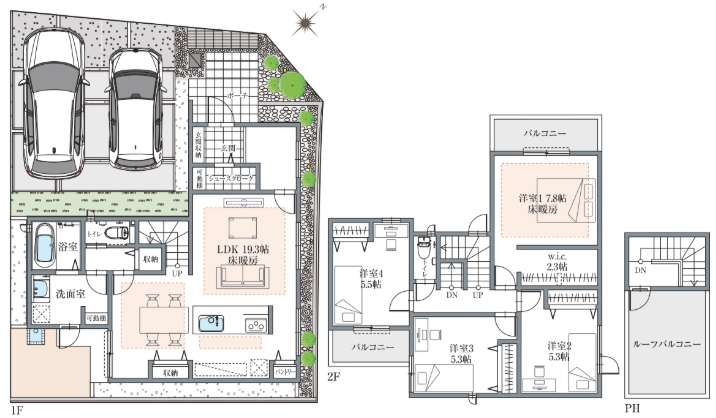
| 価格 | 4,598万円 | 間取り | 4LDK |
|---|---|---|---|
| 物件種別 | 新築一戸建て | ||
| 所在地 | 愛知県春日井市東野町西2丁目 4号棟 | ||
| アクセス |
|
||
| 建物面積 | 115.95㎡ | 駐車場 | あり 普通:2台 |
| 築年月 | 2025年(令和7年)12月築 | 建築確認 | 第R07確認建築愛建住セ50370号 |
| 建物構造 | 木造 2階建 | 工法 | |
| 主要採光 | 南東向 | バルコニー | |
| 保証・評価 | 長期優良住宅認定通知書・フラット35S適合証明書・設計住宅性能評価書・建設住宅性能評価書(新築時) |
||
| 分譲情報 | |||
| 土地面積 | 131.74㎡(39.85坪) | 接道 | 北西側(公道)幅 約9.0m 北東側(公道)幅 約13.0m |
| 私道 | セットバック | ||
| 地目 | 宅地 | 地勢 | |
| 権利 | 所有権 |
||
| 都市計画 | 市街化区域 |
用途地域 | 1種中高 |
| 建ぺい/容積率 | 60% / 200% | 土地国土法 | |
| 許可番号 | 建築基準法 | ||
| 法令制限 | 準防火地域 | ||
| 小学区 | 松原小学校 徒歩10分 (約750m) | 中学区 | 松原中学校 徒歩7分 (約500m) |
| 現況 | 完工済 | 引渡 | 相談 |
| その他費用 | |||
| 周辺環境 | 松原小学校 徒歩10分 (約750m) 松原中学校 徒歩7分 (約500m) 業務スーパー 春日井店 徒歩10分 (約800m) ファミリーマート春日井丁田橋店 徒歩6分 (約410m) スギ薬局東野店 徒歩5分 (約370m) 春日井東野郵便局 徒歩7分 (約550m) 大垣共立銀行東野支店 徒歩9分 (約710m) 西島公園 徒歩4分 (約270m) 松原保育園 徒歩8分 (約610m) 石川内科クリニック 徒歩8分 (約570m) |
||
| 備考 | |||
| 物件番号 | 4613530 | 取引態様 | 媒介 |
取扱店舗情報
ハウスドゥ 春日井鳥居松 株式会社サンキューライフ 店舗詳細ページへ
| 電話番号 | 0568-44-0888 |
|---|---|
| 所在地 | 〒486-0844 愛知県春日井市鳥居松町5丁目114番地4 |
| 営業時間 | 9:00~19:00 |
| 定休日 | 年中無休 |
| 宅建免許番号 | 愛知県知事(2)第23502号 |
| アクセス | 店舗への地図はこちら |

来店ご予約
愛知県春日井市で価格が似ている物件はこちら
- 愛知県
マイページ物件数 - 32,281件
愛知県新築一戸建て新着物件
-
-

-
- 新築一戸建て
- 3,790万円
-
春日井市花長町1丁目
-
名鉄小牧線味美駅
-
-
-

-
- 新築一戸建て
- 3,790万円
-
春日井市花長町1丁目
-
名鉄小牧線味美駅
-
-
-

-
- 新築一戸建て
- 3,790万円
-
春日井市花長町1丁目
-
名鉄小牧線味美駅
-
-
-

-
- 新築一戸建て
- 2,790万円
-
一宮市玉野字平
-
名鉄尾西線玉野駅
-
-
-

-
- 新築一戸建て
- 2,790万円
-
一宮市玉野字平
-
名鉄尾西線玉野駅
-
-
-

-
- 新築一戸建て
- 2,990万円
-
一宮市玉野字平
-
名鉄尾西線玉野駅
-
-
-

-
- 新築一戸建て
- 3,550万円
-
豊田市堤町宮崎
-
名鉄三河線竹村駅
-
- お近くの店舗を探す
-
おすすめ物件
-
-

-
- 新築一戸建て
- 3,999万円
-
名古屋市守山区天子田3丁目
-
名鉄瀬戸線大森・金城学院前
-
-
-

-
- 新築一戸建て
- 3,690万円
-
岡崎市森越町字河原
-
愛知環状鉄道北岡崎
-
-
-

-
- 新築一戸建て
- 3,890万円
-
岡崎市矢作町字猫田
-
名鉄名古屋本線矢作橋
-
-
-

-
- 新築一戸建て
- 2,590万円
-
一宮市三条字ヱグロ
-
名鉄尾西線奥町
-
-
-

-
- 新築一戸建て
- 4,799万円
-
名古屋市緑区浦里5丁目
-
名鉄名古屋本線本星崎
-
-
-

-
- 新築一戸建て
- 2,290万円
-
一宮市北方町北方字中土取
-
名鉄名古屋本線木曽川堤
-
-
-

-
- 新築一戸建て
- 2,890万円
-
一宮市下沼町3丁目
-
名鉄名古屋本線名鉄一宮
-
-
-

-
- 新築一戸建て
- 5,799万円
-
名古屋市昭和区吹上町1丁目
-
名古屋市桜通線吹上
-
-
-

-
- 新築一戸建て
- 4,680万円
-
岡崎市上地6丁目
-
JR東海道本線相見
-
-
-

-
- 新築一戸建て
- 3,590万円
-
みよし市西陣取山
-
名鉄豊田線三好ヶ丘
-









担当エージェント:鶴見 晃良
落合公園の花火をルーフバルコニーの特等席からお楽しみいただけます♪
お探しの条件、資金計画などお気軽にご相談ください。
見るだけ聞くだけOK!ハウスドゥ 春日井鳥居松にお気軽にお問い合わせください!