オール電化♪セルリアンステージ周南市楠木一丁目
掲載情報更新日:2026年04月16日 次回更新予定日:2026年04月30日
- 2,980万円
-
- 借入ご希望金額
万円 - 借入期間
年 - 借入金利
% - 月々のお支払い金額
円
- 借入ご希望金額
※ 月々のお支払例は目安の試算となりますので、実際の金額とは異なる場合がございます。詳しくは店舗までお問合わせください。
- 周南市楠木1丁目
-
JR山陽本線『徳山』 車7分(約2.7km)
オール電化♪セルリアンステージ周南市楠木一丁目一戸建て | 物件情報
人気エリアに新築戸建がでました♪ZEH水準省エネ住宅!
◇オール電化
◆カップボード付の16帖LDK
◇南向きバルコニー
物件の設備
- 電気
- オール電化
- 公営水道
- 公共下水
- 給湯
- 食器乾燥機
- 食器洗浄乾燥機
- IHクッキングヒータ
- カウンターキッチン
- システムキッチン
- バス
- オートバス
- 浴室乾燥機
- 浴室に窓
- トイレ
- トイレ2箇所
- 温水洗浄便座
- 室内洗濯機置場
- LDK15畳以上
- クローゼット
- クローゼット2箇所
- クローゼット3箇所
物件の特徴
- 前道6m以上
- 南側道路面す
- 閑静な住宅街
- 市街地が近い
- 通風良好
- 陽当り良好
- 2階建
- フラット35Sに対応
物件詳細情報
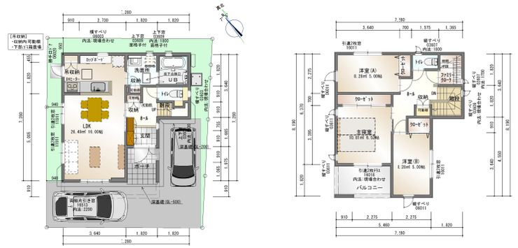
| 価格 | 2,980万円 | 間取り | 3LDK |
|---|---|---|---|
| 物件種別 | 新築一戸建て | ||
| 所在地 | 山口県周南市楠木1丁目 | ||
| アクセス |
|
||
| 建物面積 | 89.97㎡ | 駐車場 | あり 普通:2台 |
| 築年月 | 2026年(令和8年)08月予定 | 建築確認 | R7建確建住セ岩第0338号 |
| 建物構造 | 木造 2階建 | 工法 | |
| 主要採光 | 南向 | バルコニー | |
| 保証・評価 | |||
| 分譲情報 | |||
| 土地面積 | 101.01㎡(30.55坪) | 接道 | 南側(公道)幅 約6.0m |
| 私道 | セットバック | ||
| 地目 | 宅地 | 地勢 | |
| 権利 | 所有権 |
||
| 都市計画 | 市街化区域 |
用途地域 | 1種中高 |
| 建ぺい/容積率 | 60% / 200% | 土地国土法 | |
| 許可番号 | 建築基準法 | ||
| 法令制限 | |||
| 小学区 | 岐山小学校 徒歩10分 (約750m) | 中学区 | 岐陽中学校 徒歩12分 (約900m) |
| 現況 | 建築中 | 引渡 | 期日指定:2026年08月以降 |
| その他費用 | |||
| 周辺環境 | 岐山小学校 徒歩9分 (約720m) 岐陽中学校 徒歩12分 (約900m) ファミリーマート 周南楠木一丁目店 徒歩2分 (約110m) クスリ岩崎チェーン - 徳山一の井手店 徒歩16分 (約1240m) アルク 秋月店 徒歩12分 (約960m) |
||
| 備考 | ※南道路 ※ZEH水準省エネ住宅 ※断熱等級5 ※制振ダンパー(住友ゴム"MAMORY") ※フラット35S(金利Aプラン)対応 ※瑕疵担保責任保険(まもりすまい保険) ※食器洗浄乾燥機 ※カップボード ※浴室乾燥機 ※オール電化(エコキュート) ※オールLow-Eペアガラス ※アルミ樹脂複合サッシ ※ファミリークローク ※玄関ドア電子錠 ※外構付き |
||
| 物件番号 | 4625083 | 取引態様 | 媒介 |
取扱店舗情報
ハウスドゥ 周南城ケ丘 株式会社田村ビルズ 店舗詳細ページへ
| 電話番号 | 0834-34-1107 |
|---|---|
| 所在地 | 〒745-0807 山口県周南市城ケ丘1丁目2-32 |
| 営業時間 | 9:30~18:00 |
| 定休日 | 水曜日、第2・第3・第4・第5木曜日 |
| 宅建免許番号 | 国土交通大臣(2)第9501号 |
| アクセス | 店舗への地図はこちら |

来店ご予約
山口県周南市で価格が似ている物件はこちら
- 山口県
マイページ物件数 - 3,259件
最近見た物件
-
-

-
- 新築一戸建て
- 4,280万円
-
岡山市北区平田
-
JR宇野線備前西市
-
-
-

-
- 土地
- 2,100万円
-
堺市西区原田
-
JR阪和線富木
-
-
-

-
- 土地
- 1,860万円
-
熊本市東区八反田2丁目
-
JR豊肥本線東海学園前
-
山口県新築一戸建て新着物件
- お近くの店舗を探す
-
おすすめ物件
-
-

-
- 新築一戸建て
- 2,598万円
-
防府市大字牟礼
-
JR山陽本線防府
-
-
-

-
- 新築一戸建て
- 2,998万円
-
防府市大字仁井令
-
JR山陽本線防府
-
-
-

-
- 新築一戸建て
- 2,388万円
-
防府市大字田島
-
JR山陽本線防府
-
-
-

-
- 新築一戸建て
- 2,598万円
-
防府市大字牟礼
-
JR山陽本線防府
-
-
-

-
- 新築一戸建て
- 2,180万円
-
宇部市床波4丁目
-
JR宇部線床波
-
-
-

-
- 新築一戸建て
- 2,998万円
-
防府市伊佐江町
-
JR山陽本線防府
-
-
-

-
- 新築一戸建て
- 2,898万円
-
宇部市東梶返2丁目
-
JR宇部線東新川
-
-
-

-
- 新築一戸建て
- 3,880万円
-
下松市瑞穂町2丁目
-
JR山陽本線下松
-
-
-

-
- 新築一戸建て
- 2,388万円
-
宇部市床波4丁目
-
JR宇部線床波
-
-
-

-
- 新築一戸建て
- 2,480万円
-
防府市新田1丁目
-
JR山陽本線防府
-









担当エージェント:松尾 翔
楠木エリアにトーシン住宅の建売が登場です!
気になる方はお早めにお問合せください♪0120-927-118